4 pièces - LUPINS (LUPINS1)
Présentation
ST MARTIN DE BELLEVILLE - Quartier de Villarencel
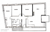
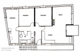
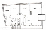
Résidence Les Lupins (N°1), 4 pièces pour 5 personnes 85m², au 1er étage, petite terrasse (3m²) exposée Ouest. A 300m du téléski au centre du village de St Martin, possibilité de navette gratuite (à 50m environ - en saison d'hiver uniquement - horaires à l'office du tourisme). Parking public gratuit à proximité du logement.
PRESTATIONS INCLUSES (en saison d'hiver / de décembre à avril) : fourniture de linge de lit, ménage de fin de séjour, serviettes de toilette, tapis de bains, torchons, kit entretien (éponge, produit vaisselle, produit multi-usages et des tablettes lave-vaisselle). Prestations sur demande en dehors de cette période.
AUTRES SERVICES DISPONIBLES SUR RESERVATION : linge complémentaire (lit, toilette, cuisine...), services para-hôteliers et autres prestations (sous réserve de disponibilité).
Cuisine ouverte sur le séjour : plaques vitrocéramiques (x4), hotte, four, micro-ondes, réfrigérateur, lave-vaisselle, cafetière, bouilloire, grille-pain, appareil à raclette, appareil à pierrade
Salon : canapé et fauteuils, télévision écran plat
Chambre 1 : 2 lits simples (2x 90x190cm)
Chambre 2 : 2 lits simples (2x 90x190cm)
Chambre 3 : 1 lit simple (80x180cm)
Salle de bains 1 : lavabo, baignoire, sèche-serviettes
Salle de bains 2 : lavabo, douche, sèche-serviettes
Toilettes séparées
Informations complémentaires :
Appartement non fumeur
Equipé de couettes, 1 par couchage
Mobilier sur la terrasse, 1 table et 3 chaises
Casier à skis
Animaux autorisés : 25€ /animal /semaine
Possibilité de louer un appartement équipé pour 6 personnes au niveau +1 (nous consulter ou rèf. LUPINS-2 sur www.agencedesalpes.com)
Catégorie : CONFORT
Label qualité station : 4 flocons "Argent"
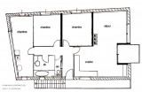
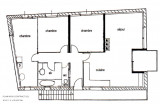
Résidence Les Lupins (N°1), 4 pièces pour 5 personnes 85m², au 1er étage, petite terrasse (3m²) exposée Ouest. A 300m du téléski au centre du village de St Martin, possibilité de navette gratuite (à 50m environ - en saison d'hiver uniquement - horaires à l'office du tourisme). Parking public gratuit à proximité du logement.
PRESTATIONS INCLUSES (en saison d'hiver / de décembre à avril) : fourniture de linge de lit, ménage de fin de séjour, serviettes de toilette, tapis de bains, torchons, kit entretien (éponge, produit vaisselle, produit multi-usages et des tablettes lave-vaisselle). Prestations sur demande en dehors de cette période.
AUTRES SERVICES DISPONIBLES SUR RESERVATION : linge complémentaire (lit, toilette, cuisine...), services para-hôteliers et autres prestations (sous réserve de disponibilité).
Cuisine ouverte sur le séjour : plaques vitrocéramiques (x4), hotte, four, micro-ondes, réfrigérateur, lave-vaisselle, cafetière, bouilloire, grille-pain, appareil à raclette, appareil à pierrade
Salon : canapé et fauteuils, télévision écran plat
Chambre 1 : 2 lits simples (2x 90x190cm)
Chambre 2 : 2 lits simples (2x 90x190cm)
Chambre 3 : 1 lit simple (80x180cm)
Salle de bains 1 : lavabo, baignoire, sèche-serviettes
Salle de bains 2 : lavabo, douche, sèche-serviettes
Toilettes séparées
Informations complémentaires :
Appartement non fumeur
Equipé de couettes, 1 par couchage
Mobilier sur la terrasse, 1 table et 3 chaises
Casier à skis
Animaux autorisés : 25€ /animal /semaine
Possibilité de louer un appartement équipé pour 6 personnes au niveau +1 (nous consulter ou rèf. LUPINS-2 sur www.agencedesalpes.com)
Catégorie : CONFORT
Label qualité station : 4 flocons "Argent"
Vos avantages avec cet hébergement
- Vos avantages :
- Jusqu'à - 27% sur vos forfaits de ski (selon périodes, uniquement en prévente).
- Toute la saison, des réductions sur vos locations de matériel de ski et vos activités
Situation
- Etage :
- 1er étage
- Exposition :
- Ouest
- Station :
- St Martin de Belleville
En Résumé
- Animaux admis

- Lave-vaisselle

- Balcon / Terrasse

- Animaux :
- Animal admis
Équipements
- Equipement Cuisine :
- Micro-ondes
- Lave-vaisselle
- Equipement Séjour :
- Télévision
- Balcon/Terrasse :
- Balcon / terrasse
- Local à ski :
- Casier à ski
Plan de la station
Destination
VILLARENCEL
6 Rue Batolaz
73440
SAINT-MARTIN-DE-BELLEVILLE
Coordonnées GPS
Latitude : 45.382040
Longitude : 6.503150
Avis
Note :
(3 avis)
4,33
/ 5
Mars 2026
Peter
Note :
5
/ 5
The accommodation was clean, very comfortable & had almost all the facilities we might have needed. It was very useful to have end of stay cleaning and hire of sheets & towels was included in the cost. The only issues we had was a comparative lack of large cereal bowls & the car parking was tricky
Qualité de l'accueil
Le logement correspond au descriptif
Propreté du logement
Décoration du logement
Équipement du logement
Confort de la literie
Avis écrit le 31/03/2026
Avril 2023
Christophe
Note :
4
/ 5
Qualité de l'accueil
Le logement correspond au descriptif
Propreté du logement
Décoration du logement
Équipement du logement
Confort de la literie
Avis écrit le 11/04/2023
Avis par type de profil















































