6 pièces - CASEBLANCHE (CS0C23)
- Non classé
Présentation
Magnifique chalet MONTE CORONA au pied de la télécabine de St-Martin de Belleville. Accès direct aux pistes par le skiroom de Caseblanche.
Confortable, décoré et meublé avec grand soin, ce chalet de 130m² peut accueillir 10 personnes. Sauna privatif, et jacuzzi sur la terrasse.
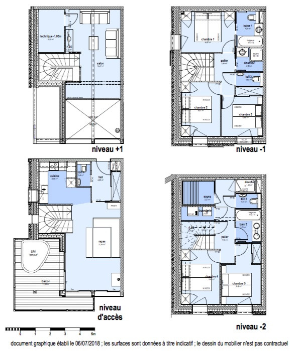
Rez de chaussée :
Coin repas lumineux avec vue magnifique sur les montagnes.
Il donne sur une terrasse d'environ 20m² équipée d'un jacuzzi, et d'un coin repas outdoor.
Cuisine ouverte avec 4 plaques à induction, réfrigérateur, lave-vaisselle, four, micro-ondes, bouilloire, grille-pain, cafetière à filtre et machine Nespresso.
Au 1er étage :
Agréable salon de 20m² avec télévision, console de jeux, grand canapé d’angle et fauteuils tout confort. Vue panoramique.
Au niveau -1:
Chambre 1 en suite : 2 lits jumeaux (90x200) avec de nombreux rangements, baignoire et toilettes.
Chambre 2 : 2 lits jumeaux (80x200) avec de nombreux rangements.
Chambre 3 : 2 lits jumeaux (90x200) avec un grand placard.
Salle d'eau séparée avec douche et toilettes.
Toilettes séparées.
Au niveau -2 :
Chambre 4 : 2 lits jumeaux (80x200) avec de nombreux rangements.
Chambre 5 : 2 lits jumeaux (90x200) avec un grand placard.
Salle d'eau avec douche et double vasque. Toilettes séparées.
Buanderie avec lave linge et sèche linge.
Sauna avec sa grande douche à l’italienne.
Prestations incluses :
2 places de parking couvertes incluses. WIFI.
En hiver: Lits faits à l'arrivée, serviettes de toilette, torchons et tapis de bain.
Autre : Chalet non fumeur. Animaux non admis.
Confortable, décoré et meublé avec grand soin, ce chalet de 130m² peut accueillir 10 personnes. Sauna privatif, et jacuzzi sur la terrasse.
Rez de chaussée :
Coin repas lumineux avec vue magnifique sur les montagnes.
Il donne sur une terrasse d'environ 20m² équipée d'un jacuzzi, et d'un coin repas outdoor.
Cuisine ouverte avec 4 plaques à induction, réfrigérateur, lave-vaisselle, four, micro-ondes, bouilloire, grille-pain, cafetière à filtre et machine Nespresso.
Au 1er étage :
Agréable salon de 20m² avec télévision, console de jeux, grand canapé d’angle et fauteuils tout confort. Vue panoramique.
Au niveau -1:
Chambre 1 en suite : 2 lits jumeaux (90x200) avec de nombreux rangements, baignoire et toilettes.
Chambre 2 : 2 lits jumeaux (80x200) avec de nombreux rangements.
Chambre 3 : 2 lits jumeaux (90x200) avec un grand placard.
Salle d'eau séparée avec douche et toilettes.
Toilettes séparées.
Au niveau -2 :
Chambre 4 : 2 lits jumeaux (80x200) avec de nombreux rangements.
Chambre 5 : 2 lits jumeaux (90x200) avec un grand placard.
Salle d'eau avec douche et double vasque. Toilettes séparées.
Buanderie avec lave linge et sèche linge.
Sauna avec sa grande douche à l’italienne.
Prestations incluses :
2 places de parking couvertes incluses. WIFI.
En hiver: Lits faits à l'arrivée, serviettes de toilette, torchons et tapis de bain.
Autre : Chalet non fumeur. Animaux non admis.
Vos avantages avec cet hébergement
- Situation :
- Départ skis aux pieds (sous condition d'ouverture de la piste)
- A moins de 200m des pistes
- Vos avantages :
- Jusqu'à - 27% sur vos forfaits de ski (selon périodes, uniquement en prévente).
- Toute la saison, des réductions sur vos locations de matériel de ski et vos activités
Situation
- Etage :
- 1er étage
- Exposition :
- Ouest
- Situation :
- Départ skis aux pieds (sous condition d'ouverture de la piste)
- A moins de 200m des pistes
- De 200 à 400m des pistes
- Station :
- St Martin de Belleville
En Résumé
- Accès wifi

- Lave-vaisselle

- Balcon / Terrasse

- Espace bien être/piscine

- Station de recharge pour véhicule électrique

- Parking :
- Place de parking
- Animaux :
- Animal interdit
Équipements
- Equipement Cuisine :
- Micro-ondes
- Lave-vaisselle
- Lave Linge
- Equipement Séjour :
- Télévision
- Connexion Wi-Fi
- Balcon/Terrasse :
- Balcon / terrasse
- Salle de Bains :
- Sèche-cheveux
- Local à ski :
- Casier à ski
- Piscine, Sauna, Hammam :
- Sauna
Plan de la station
Destination
CHALETS CASEBLANCHE
RUE CASEBLANCHE
73440
SAINT-MARTIN-DE-BELLEVILLE
Coordonnées GPS
Latitude : 45.375767
Longitude : 6.505932










































