7 pièces mezzanine - CASEBLANCHE (CS00K3)
- Non classé
Présentation
Baigné de lumière, à la décoration raffinée, Chalet CHANTARELLA, au pied du téléphérique, vous offre des vacances dans un luxe discret. Partez sur les pistes skis aux pieds, profitez de son sauna et de son jacuzzi en plein air pour vous relacher, ou retrouvez vous en famille autour de sa cheminée.
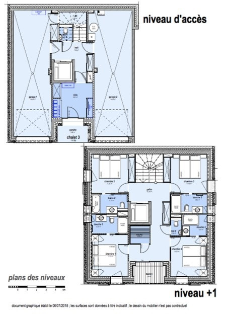
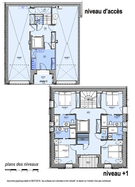
Avec sa surface généreuse de 200m², Chalet Chanterella dispose d'un ascenseur déservant ses 3 niveaux.
Niveau 0 :
Casier à skis privatif avec sèche-chaussures et sèche gants.
2 garages pouvant accueillir de 2 à 4 véhicules.
Toilettes séparés.
Niveau 1 :
Chambre 1 en suite avec douche et toilettes : 2 lits jumeaux (90*200).
Chambre 2 en suite avec douche italienne : 2 lits jumeaux (90*200).
Chambre 3 en suite avec douche et toilettes : 2 lits jumeaux (90*200).
Chambre 4 en suite avec baignoire et toilettes : 2 lits jumeaux (90*200).
Sauna. Toilettes séparés.
Balcon.
Niveau 2 :
Belle pièce à vivre d'environ 50m² composée d'un salon cosy avec cheminée et d'une salle à manger, agréable et lumineuse.
Cuisine : lave-vaisselle, four, four micro-ondes, plaques induction 3 feux, bouilloire, grille-pain et cafetière Nespresso.
Salon télé. Chaines anglaises uniquement.
Grande terrasse de 40m² équipée d'un jacuzzi.
Niveau 3 :
Chambre 5 en suite avec douche, baignoire et toilettes : 1 lit double (180*200). Dressing.
Chambre 6 en suite avec douche italienne et toilettes : 2 x 2 lits superposés (90x190).
Prestations incluses :
WIFI. 2 garages privés.
En hiver: Lits faits à l'arrivée. Serviettes de toilette, torchons et tapis de bain.
Autre : Chalet non fumeur. Animaux non admis.
5 flocons d'OR
Avec sa surface généreuse de 200m², Chalet Chanterella dispose d'un ascenseur déservant ses 3 niveaux.
Niveau 0 :
Casier à skis privatif avec sèche-chaussures et sèche gants.
2 garages pouvant accueillir de 2 à 4 véhicules.
Toilettes séparés.
Niveau 1 :
Chambre 1 en suite avec douche et toilettes : 2 lits jumeaux (90*200).
Chambre 2 en suite avec douche italienne : 2 lits jumeaux (90*200).
Chambre 3 en suite avec douche et toilettes : 2 lits jumeaux (90*200).
Chambre 4 en suite avec baignoire et toilettes : 2 lits jumeaux (90*200).
Sauna. Toilettes séparés.
Balcon.
Niveau 2 :
Belle pièce à vivre d'environ 50m² composée d'un salon cosy avec cheminée et d'une salle à manger, agréable et lumineuse.
Cuisine : lave-vaisselle, four, four micro-ondes, plaques induction 3 feux, bouilloire, grille-pain et cafetière Nespresso.
Salon télé. Chaines anglaises uniquement.
Grande terrasse de 40m² équipée d'un jacuzzi.
Niveau 3 :
Chambre 5 en suite avec douche, baignoire et toilettes : 1 lit double (180*200). Dressing.
Chambre 6 en suite avec douche italienne et toilettes : 2 x 2 lits superposés (90x190).
Prestations incluses :
WIFI. 2 garages privés.
En hiver: Lits faits à l'arrivée. Serviettes de toilette, torchons et tapis de bain.
Autre : Chalet non fumeur. Animaux non admis.
5 flocons d'OR
Vos avantages avec cet hébergement
- Situation :
- Départ skis aux pieds (sous condition d'ouverture de la piste)
- A moins de 200m des pistes
- Vos avantages :
- Jusqu'à - 27% sur vos forfaits de ski (selon périodes, uniquement en prévente).
- Toute la saison, des réductions sur vos locations de matériel de ski et vos activités
Situation
- Exposition :
- Ouest
- Situation :
- Départ skis aux pieds (sous condition d'ouverture de la piste)
- A moins de 200m des pistes
- De 200 à 400m des pistes
- Station :
- St Martin de Belleville
En Résumé
- Accès wifi

- Lave-vaisselle

- Balcon / Terrasse

- Espace bien être/piscine

- Station de recharge pour véhicule électrique

- Parking :
- Place de parking
- Animaux :
- Animal interdit
Équipements
- Ascenseur :
- Ascenseur
- Equipement Cuisine :
- Four
- Micro-ondes
- Lave-vaisselle
- Lave Linge
- Grille-pain
- Equipement Séjour :
- Télévision
- Connexion Wi-Fi
- Balcon/Terrasse :
- Balcon / terrasse
- Salle de Bains :
- Sèche-cheveux
- Piscine, Sauna, Hammam :
- Sauna
Plan de la station
Destination
CHALETS CASEBLANCHE
RUE CASEBLANCHE
73440
SAINT-MARTIN-DE-BELLEVILLE
Coordonnées GPS
Latitude : 45.375767
Longitude : 6.505932










































