Studio coin montagne - DANCHET (DC0426)
Présentation
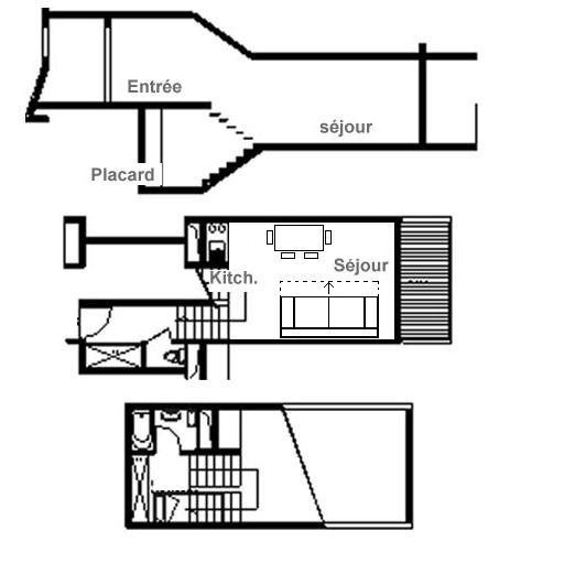
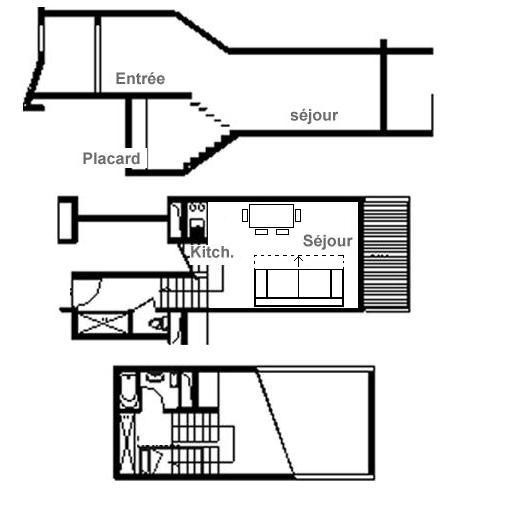
Studio avec coin montagne de 29m² pour 4 personnes avec un balcon orienté Sud/Ouest situé au 5ème étage avec ascenseur.
Vue et ensoleillement exceptionnels.
Label : 1 Flocon Bronze.
Séjour : 2 lits simples. Equipé d'une télévision.
Coin montagne sous escalier : 2 lits simples superposés.
Cuisine incorporée 2 plaques, four combiné, réfrigérateur, bouilloire, grille-pain et cafetière.
Salle de bains avec baignoire.
WC indépendant
Appartement non fumeur
Animaux non admis
Appartement équipé de couvertures
WIFI station payant (sous réserve de couverture de réseau)
Le couchage en hauteur ne convient pas à des enfants de moins de 6 ans
CASIER A SKI MONTEE CHALLE (niveau rez de piste)
Classement ministériel : 1 Etoile
Vue et ensoleillement exceptionnels.
Label : 1 Flocon Bronze.
Séjour : 2 lits simples. Equipé d'une télévision.
Coin montagne sous escalier : 2 lits simples superposés.
Cuisine incorporée 2 plaques, four combiné, réfrigérateur, bouilloire, grille-pain et cafetière.
Salle de bains avec baignoire.
WC indépendant
Appartement non fumeur
Animaux non admis
Appartement équipé de couvertures
WIFI station payant (sous réserve de couverture de réseau)
Le couchage en hauteur ne convient pas à des enfants de moins de 6 ans
CASIER A SKI MONTEE CHALLE (niveau rez de piste)
Classement ministériel : 1 Etoile
Vos avantages avec cet hébergement
- Situation :
- Départ skis aux pieds (sous condition d'ouverture de la piste)
- A moins de 200m des pistes
- Vos avantages :
- Jusqu'à - 27% sur vos forfaits de ski (selon périodes, uniquement en prévente).
- Toute la saison, des réductions sur vos locations de matériel de ski et vos activités
Situation
- Quartier Les Menuires :
- Brelin
- Nom de Résidence Les Menuires :
- Le Danchet
- Etage :
- 5ème étage
- Exposition :
- Sud
- Situation :
- Départ skis aux pieds (sous condition d'ouverture de la piste)
- A moins de 200m des pistes
- De 200 à 400m des pistes
- Station :
- Les Menuires
En Résumé
- Exposition Sud

- Balcon / Terrasse

- Animaux :
- Animal interdit
Équipements
- Ascenseur :
- Ascenseur
- Equipement Cuisine :
- Micro-ondes
- Bouilloire Electrique
- Grille-pain
- Equipement Séjour :
- Télévision
- Balcon/Terrasse :
- Balcon / terrasse
- Local à ski :
- Casier à ski
Plan de la station
Destination
BRELIN
10 Route de Brelin
73440
LES MENUIRES
Coordonnées GPS
Latitude : 45.32549003360621
Longitude : 6.541628837585449
Avis
Note :
(2 avis)
4
/ 5
Février 2022
Christine
Note :
4
/ 5
Une banquette lit, style clic-clac serait mieux. Pourquoi ne pas accrocher des portes manteaux ds la descente vers la salle de bains ? Changer les baies vitrées ! Le froid qui passe dessous et qui va vers le couchage est très désagréable. De plus nous avons eu beaucoup de mal à l'ouvrir.
Qualité de l'accueil
Le logement correspond au descriptif
Propreté du logement
Décoration du logement
Équipement du logement
Confort de la literie
Avis écrit le 13/02/2022
Août 2021
Marion
Note :
4
/ 5
Qualité de l'accueil
Le logement correspond au descriptif
Propreté du logement
Décoration du logement
Équipement du logement
Confort de la literie
Avis écrit le 18/08/2021
Avis par type de profil











































