Studio - ARAVIS (AV0210)
- Non classé
Présentation
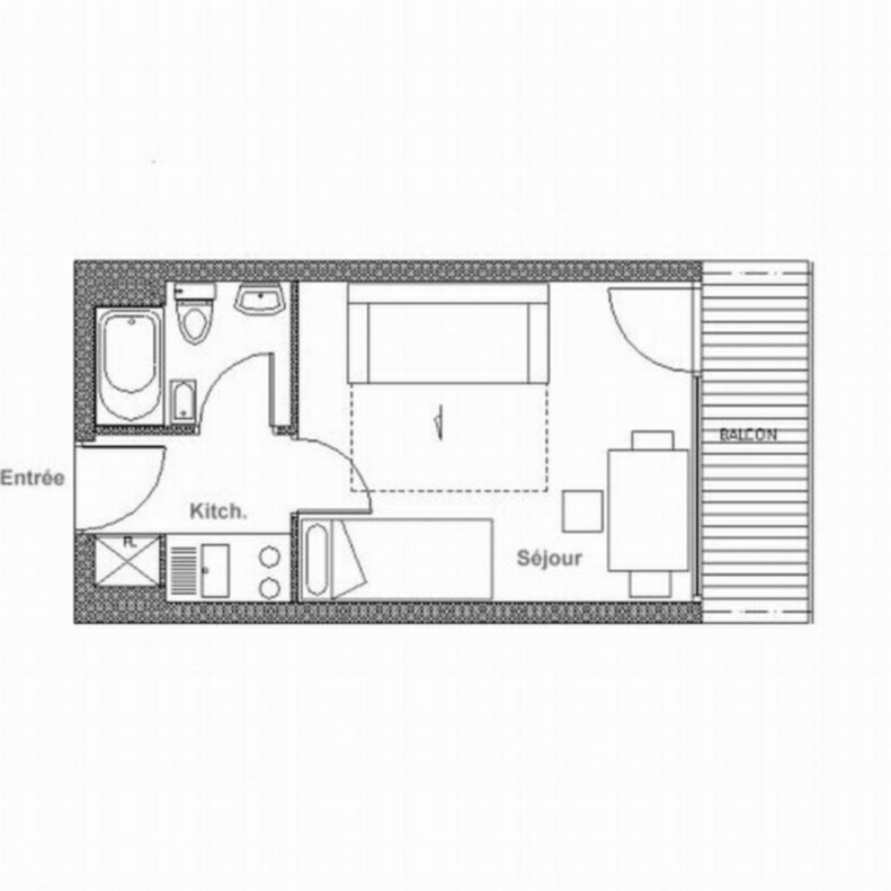
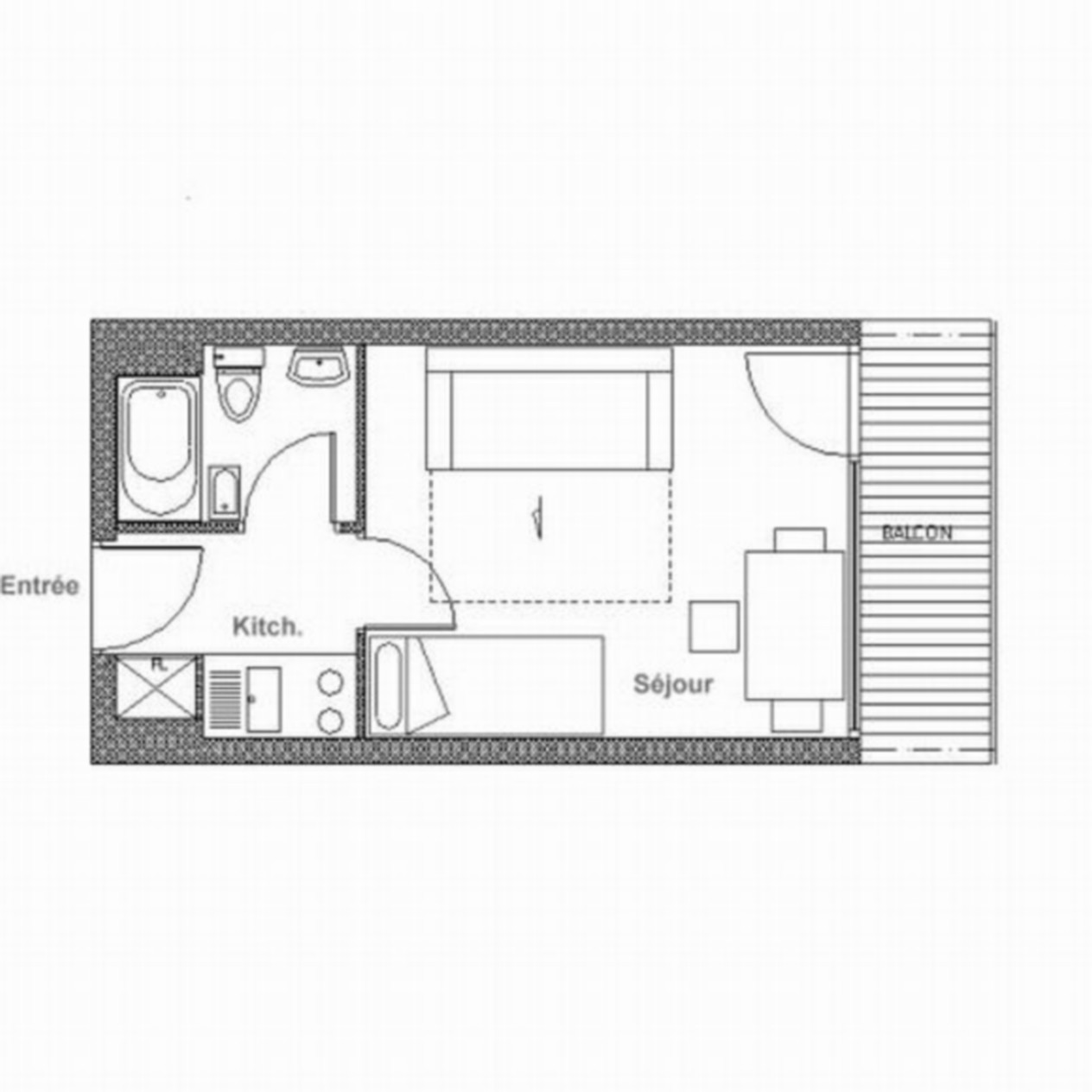
Studio de 22 m² pour 3 personnes il est situé au 2ème étage avec ascenseur avec un balcon Sud / ouest.
Séjour : 1canapé-lit 2 personnes+ 1 lit 1 personne. Equipé d'une télévision.
(sol moquette)
Cuisine incorporée 2 plaques, réfrigérateur, combi four/ four micro ondes, grille-pain, bouilloire et cafetière.
Salle de bains avec baignoire et WC.
Appartement non-fumeur.
Appartement équipé de couvertures.
WIFI Station payant (sous réserve d'une couverture de réseau)
casier à ski: sous sol
Séjour : 1canapé-lit 2 personnes+ 1 lit 1 personne. Equipé d'une télévision.
(sol moquette)
Cuisine incorporée 2 plaques, réfrigérateur, combi four/ four micro ondes, grille-pain, bouilloire et cafetière.
Salle de bains avec baignoire et WC.
Appartement non-fumeur.
Appartement équipé de couvertures.
WIFI Station payant (sous réserve d'une couverture de réseau)
casier à ski: sous sol
Vos avantages avec cet hébergement
- Situation :
- Départ skis aux pieds (sous condition d'ouverture de la piste)
- A moins de 200m des pistes
- Vos avantages :
- Jusqu'à - 27% sur vos forfaits de ski (selon périodes, uniquement en prévente).
- Toute la saison, des réductions sur vos locations de matériel de ski et vos activités
Situation
- Quartier Les Menuires :
- La Croisette
- Nom de Résidence Les Menuires :
- Les Aravis
- Etage :
- 2ème étage
- Exposition :
- Sud
- Situation :
- Départ skis aux pieds (sous condition d'ouverture de la piste)
- A moins de 200m des pistes
- Station :
- Les Menuires
En Résumé
- Balcon / Terrasse

- Exposition Sud

- Animaux :
- Animal interdit
Équipements
- Ascenseur :
- Ascenseur
- Equipement Cuisine :
- Micro-ondes
- Bouilloire Electrique
- Equipement Séjour :
- Télévision
- Balcon/Terrasse :
- Balcon / terrasse
- Local à ski :
- Casier à ski
Plan de la station
Destination
LA CROISETTE
1 Avenue de la Croisette
73440
LES MENUIRES
Coordonnées GPS
Latitude : 45.324313
Longitude : 6.5397
Avis
Note :
(2 avis)
4
/ 5
Février 2025
SUZANNE
Note :
4
/ 5
Bel appartement, parcontre literie à changer(énormément de bruit).
Douche bouchée.
Qualité de l'accueil
Le logement correspond au descriptif
Propreté du logement
Décoration du logement
Équipement du logement
Confort de la literie
Avis écrit le 04/02/2025
Février 2021
Delphine
Note :
4
/ 5
Frigo très sonore
Il manquait un oreiller
Reste de confiture sur la table
Qualité de l'accueil
Le logement correspond au descriptif
Propreté du logement
Décoration du logement
Équipement du logement
Confort de la literie
Avis écrit le 23/02/2021
Avis par type de profil



























