Studio - CHANTENEIGE (CHA507)
Présentation
LES MENUIRES - Croisette
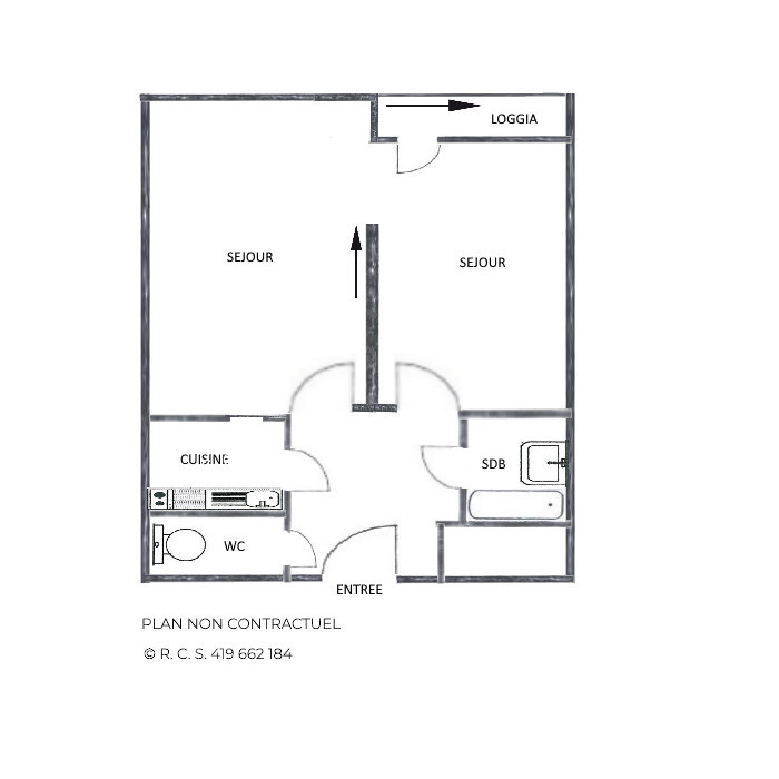
Résidence Chanteneige (N° 507), studio divisible pour 4 personnes, 32m², au 5ème étage avec ascenseur, balcon exposé Est (3ème niveau escalier et balcon)
SERVICES DISPONIBLES SUR RESERVATION : ménage de fin de séjour, linge (lit, toilette, cuisine...), services para-hôteliers et autres prestations (sous réserve de disponibilité).
Cuisine : plaques de cuisson vitrocéramique (x2), four traditionnel, micro onde, lave-vaisselle, cafetière, bouilloire ,grille pain
Séjour divisible : deux canapé-lit gigogne (4x80 cm), télévision écran plat, lecteur DVD
Salle de bain : lavabo, baignoire, douchette, lave linge
Toilettes séparées
Informations complémentaires :
Appartement équipé de couettes
Animaux refusés
Appartement non fumeur
Casier à ski
Catégorie : CONFORT
Label qualité station : 3 flocons "Argent"
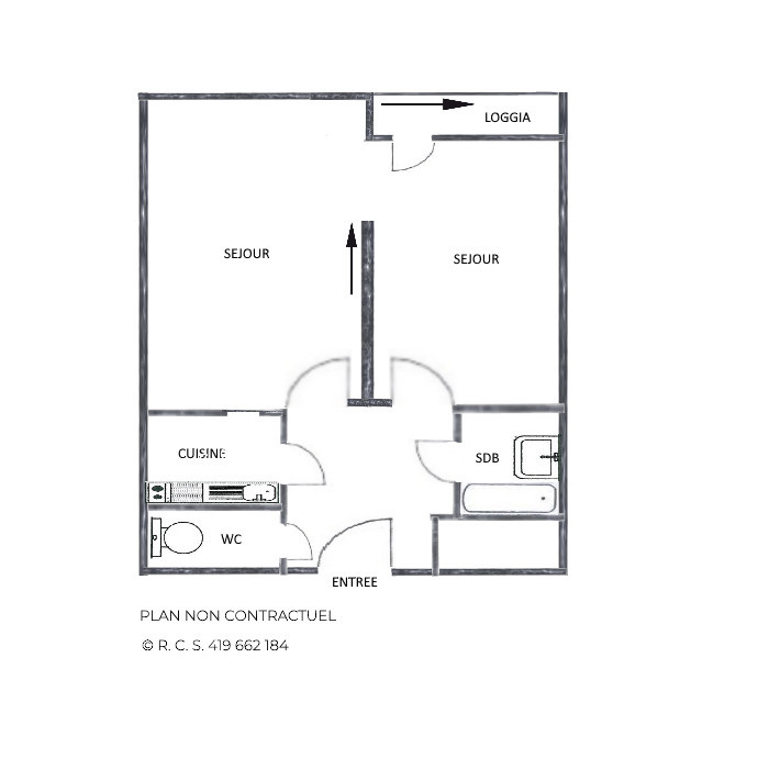
Résidence Chanteneige (N° 507), studio divisible pour 4 personnes, 32m², au 5ème étage avec ascenseur, balcon exposé Est (3ème niveau escalier et balcon)
SERVICES DISPONIBLES SUR RESERVATION : ménage de fin de séjour, linge (lit, toilette, cuisine...), services para-hôteliers et autres prestations (sous réserve de disponibilité).
Cuisine : plaques de cuisson vitrocéramique (x2), four traditionnel, micro onde, lave-vaisselle, cafetière, bouilloire ,grille pain
Séjour divisible : deux canapé-lit gigogne (4x80 cm), télévision écran plat, lecteur DVD
Salle de bain : lavabo, baignoire, douchette, lave linge
Toilettes séparées
Informations complémentaires :
Appartement équipé de couettes
Animaux refusés
Appartement non fumeur
Casier à ski
Catégorie : CONFORT
Label qualité station : 3 flocons "Argent"
Vos avantages avec cet hébergement
- Situation : 
- Départ skis aux pieds (sous condition d'ouverture de la piste)
 
 - Vos avantages : 
- Jusqu'à - 27% sur vos forfaits de ski (selon périodes, uniquement en prévente).
 - Toute la saison, des réductions sur vos locations de matériel de ski et vos activités
 
 
Situation
- Quartier Les Menuires : 
- La Croisette
 
 - Nom de Résidence Les Menuires : 
- Chanteneige / Croisette
 
 - Etage : 
- 5ème étage
 
 - Exposition : 
- Est
 
 - Situation : 
- Départ skis aux pieds (sous condition d'ouverture de la piste)
 
 - Station : 
- Les Menuires
 
 
En Résumé
- Lave-vaisselle

 - Balcon / Terrasse

 
- Animaux : 
- Animal interdit
 
 
Équipements
- Ascenseur : 
- Ascenseur
 
 - Equipement Cuisine : 
- Micro-ondes
 - Lave-vaisselle
 - Lave Linge
 - Bouilloire Electrique
 - Grille-pain
 
 - Equipement Séjour : 
- Télévision
 
 - Balcon/Terrasse : 
- Balcon / terrasse
 
 - Local à ski : 
- Casier à ski
 
 
Plan de la station
Destination
              LA CROISETTE
  73440
  LES MENUIRES
              Coordonnées GPS
Latitude : 45.322692
Longitude : 6.538023
Avis
                                    Note :
                    
                                                        
                                                                
                                                                
                                                                
                                                                    
                                
                        
                            
                            
                    
                                          (9  avis)
                                
                4,56
                             / 5
                        
                                    Mars 2025                            
                            
                                Sylva                            
                            
                            Note :
                                5
                                         / 5
                                    Qualité de l'accueil
Le logement correspond au descriptif
Propreté du logement
Décoration du logement
Équipement du logement
Confort de la literie
                            Avis écrit le 04/03/2025                                                    
                                            
                                    Février 2025                            
                            
                                Aline                            
                            
                            Note :
                                5
                                         / 5
                                    Qualité de l'accueil
Le logement correspond au descriptif
Propreté du logement
Décoration du logement
Équipement du logement
Confort de la literie
                            Avis écrit le 18/02/2025                                                    
                                            Avis par type de profil
                                    
                






























