3 pièces cabine - BIELLAZ (BZ4344)
Présentation
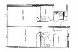
Bel appartement de 3 pièces avec cabine (2 séjours/cuisines) de 60 m² pour 8 personnes. Il est situé au 4ème étage exposé Sud-Ouest.
Label : Famille plus * Label : 3 flocons or
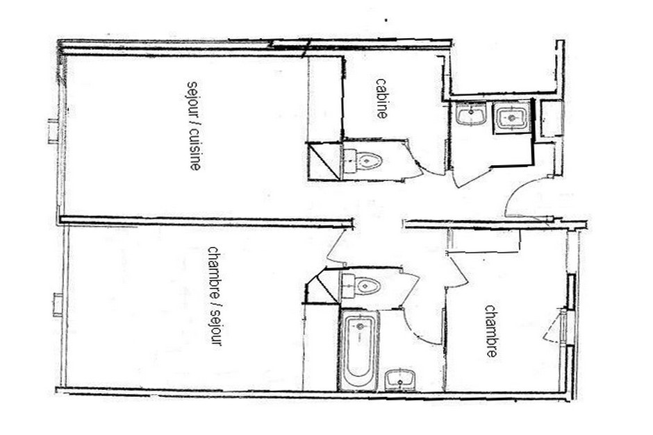
Séjour 1 (avec coin cuisine) : 1 banquette-lit 1 personne et 1 lit-tiroir 1 personne non relevable. Equipé d'une télévision et chaine HIFI. Sans balcon.
Cuisine équipée d'un grand réfrigérateur combiné avec petit congel, 3 plaques vitro-céramiques, four, micro-ondes, lave-vaisselle, cafetière, grille-pain et bouilloire.
Séjour 2 (avec coin cuisine) : 1 banquette-lit 1 personne et 1 lit gigogne 1 personne relevable. Equipé d'une télévision, chaine HIFI et lecteur DVD. Sans balcon.
Coin cuisine équipé d'un frigo, 2 plaques vitro-céramiques, petit lave-vaisselle, four, micro-ondes, cafetière et bouilloire.
Cabine (séparée de l'entrée par une porte) : 2 lits 1 personne superposés.
Chambre : 2 lits 1 personne superposés. Equipée d'une télévision.
Salle d'eau avec douche. Salle de bains avec baignoire.
2 WC indépendants.
Sol stratifié.
Appartement non fumeur.
Animaux non admis.
Appartement équipé de couvertures
Serviettes non fournies.
Le couchage en hauteur ne convient pas aux enfants de moins de 6 ans.
Label : Famille plus * Label : 3 flocons or
Séjour 1 (avec coin cuisine) : 1 banquette-lit 1 personne et 1 lit-tiroir 1 personne non relevable. Equipé d'une télévision et chaine HIFI. Sans balcon.
Cuisine équipée d'un grand réfrigérateur combiné avec petit congel, 3 plaques vitro-céramiques, four, micro-ondes, lave-vaisselle, cafetière, grille-pain et bouilloire.
Séjour 2 (avec coin cuisine) : 1 banquette-lit 1 personne et 1 lit gigogne 1 personne relevable. Equipé d'une télévision, chaine HIFI et lecteur DVD. Sans balcon.
Coin cuisine équipé d'un frigo, 2 plaques vitro-céramiques, petit lave-vaisselle, four, micro-ondes, cafetière et bouilloire.
Cabine (séparée de l'entrée par une porte) : 2 lits 1 personne superposés.
Chambre : 2 lits 1 personne superposés. Equipée d'une télévision.
Salle d'eau avec douche. Salle de bains avec baignoire.
2 WC indépendants.
Sol stratifié.
Appartement non fumeur.
Animaux non admis.
Appartement équipé de couvertures
Serviettes non fournies.
Le couchage en hauteur ne convient pas aux enfants de moins de 6 ans.
Vos avantages avec cet hébergement
- Situation :
- Départ skis aux pieds (sous condition d'ouverture de la piste)
- Vos avantages :
- Jusqu'à - 27% sur vos forfaits de ski (selon périodes, uniquement en prévente).
- Toute la saison, des réductions sur vos locations de matériel de ski et vos activités
Situation
- Quartier Les Menuires :
- Les Bouquetins
- Nom de Résidence Les Menuires :
- La Biellaz
- Etage :
- 4ème étage
- Exposition :
- Sud
- Ouest
- Situation :
- Départ skis aux pieds (sous condition d'ouverture de la piste)
- Station :
- Les Menuires
En Résumé
- Exposition Sud
- Lave-vaisselle
- Animaux :
- Animal interdit
Équipements
- Ascenseur :
- Ascenseur
- Equipement Cuisine :
- Four
- Micro-ondes
- Lave-vaisselle
- Bouilloire Electrique
- Grille-pain
- Cafetière à filtre
- Equipement Séjour :
- Télévision
- Local à ski :
- Casier à ski
Plan de la station
Destination
PLACE DES BOUQUETINS
24 Rue du Panorama
73440
LES MENUIRES
Coordonnées GPS
Latitude : 45.316204
Longitude : 6.540827