2 pièces cabine - SKI SOLEIL (SK2302)
Présentation
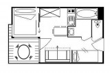
Appartement 2 pièces cabine de 24m2 pour 4 personnes situé au 3ème étage de la résidence Ski et Soleil exposé sud ouest avec un balcon.
Départ skis aux pieds depuis ce niveau. Accès aux casiers à ski.
Label : 2 flocons Argent
Entrée : 1 lit simple
Séjour équipé d'unlit gigogne et d'une télévision.
Cuisine équipée de plaques vitro, réfrigérateur, lave-vaisselle, hotte, Four Combi cafetière, bouilloire et grille-pain.
Chambre (séparée par une porte coulissante ) : 1 lit double
Salle de bain avec baignoire et séche serviette mural.
WC séparés.
Sol : lino
Appartement non fumeur.
Animaux non admis.
Appartement équipé de couettes et de couvertures
WIFI Station payant, sous réserve de couverture du réseau.
Départ skis aux pieds depuis ce niveau. Accès aux casiers à ski.
Label : 2 flocons Argent
Entrée : 1 lit simple
Séjour équipé d'unlit gigogne et d'une télévision.
Cuisine équipée de plaques vitro, réfrigérateur, lave-vaisselle, hotte, Four Combi cafetière, bouilloire et grille-pain.
Chambre (séparée par une porte coulissante ) : 1 lit double
Salle de bain avec baignoire et séche serviette mural.
WC séparés.
Sol : lino
Appartement non fumeur.
Animaux non admis.
Appartement équipé de couettes et de couvertures
WIFI Station payant, sous réserve de couverture du réseau.
Vos avantages avec cet hébergement
- Situation :
- Départ skis aux pieds (sous condition d'ouverture de la piste)
- Vos avantages :
- Jusqu'à - 27% sur vos forfaits de ski (selon périodes, uniquement en prévente).
- Toute la saison, des réductions sur vos locations de matériel de ski et vos activités
Situation
- Quartier Les Menuires :
- Les Bruyères
- Nom de Résidence Les Menuires :
- Ski Soleil
- Exposition :
- Sud
- Ouest
- Situation :
- Départ skis aux pieds (sous condition d'ouverture de la piste)
- Station :
- Les Menuires
En Résumé
- Lave-vaisselle

- Exposition Sud

- Balcon / Terrasse

- Animaux :
- Animal interdit
Équipements
- Ascenseur :
- Ascenseur
- Equipement Cuisine :
- Micro-ondes
- Lave-vaisselle
- Bouilloire Electrique
- Grille-pain
- Equipement Séjour :
- Télévision
- Balcon/Terrasse :
- Balcon / terrasse
- Salle de Bains :
- Sèche-cheveux
Plan de la station
Destination
LES BRUYERES
19 Rue des Bruyères
73440
LES MENUIRES
Coordonnées GPS
Latitude : 45.315083215550366
Longitude : 6.540255546569824
Avis
Note :
(3 avis)
4
/ 5
Mars 2024
valerie
Note :
4
/ 5
il manque un congelateur
Qualité de l'accueil
Le logement correspond au descriptif
Propreté du logement
Décoration du logement
Équipement du logement
Confort de la literie
Avis écrit le 02/04/2024
Février 2023
valerie
Note :
4
/ 5
il manque un congélateur ( ou petit bac à glaçon), frigo vieillissant;
en général dans l'immeuble ski soleil: il y fait TROP chaud!!!!
Qualité de l'accueil
Le logement correspond au descriptif
Propreté du logement
Décoration du logement
Équipement du logement
Confort de la literie
Avis écrit le 28/03/2023
Avis par type de profil





































