2 pièces - BALCONS D'OLYMPIE (OL0307)
Présentation
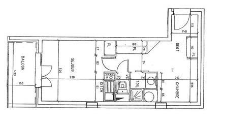
Appartement 2 pièces 27 m² pour 4 personnes. Situé au 3ème étage, il possède un
balcon orienté Ouest.
Entrée A.
Label : 1 flocon Argent
Séjour : 1 canapé lit pour 2 personnes, type BZ. Equipé d'une télévision écran plat.
Coin chambre fermé par une porte coulissante : 2 lits simples superposés et 1 lit 1 personne.
Salle de bains avec baignoire. Toilettes séparées.
Cuisine équipée : réfrigérateur, 2 plaques électriques, four et micro-ondes, lave-vaisselle, cafetière et bouilloire électriques.
Appartement non-fumeur.
Appartement équipé de couettes et couvertures
WIFI station payant (sous réserve de couverture du réseau).
Le couchage en hauteur ne convient pas à des enfants de moins de 6 ans.
Classement ministériel : 2 Etoiles
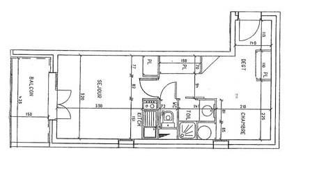
balcon orienté Ouest.
Entrée A.
Label : 1 flocon Argent
Séjour : 1 canapé lit pour 2 personnes, type BZ. Equipé d'une télévision écran plat.
Coin chambre fermé par une porte coulissante : 2 lits simples superposés et 1 lit 1 personne.
Salle de bains avec baignoire. Toilettes séparées.
Cuisine équipée : réfrigérateur, 2 plaques électriques, four et micro-ondes, lave-vaisselle, cafetière et bouilloire électriques.
Appartement non-fumeur.
Appartement équipé de couettes et couvertures
WIFI station payant (sous réserve de couverture du réseau).
Le couchage en hauteur ne convient pas à des enfants de moins de 6 ans.
Classement ministériel : 2 Etoiles
Vos avantages avec cet hébergement
- Vos avantages :
- Jusqu'à - 27% sur vos forfaits de ski (selon périodes, uniquement en prévente).
- Toute la saison, des réductions sur vos locations de matériel de ski et vos activités
Situation
- Quartier Les Menuires :
- Preyerand
- Nom de Résidence Les Menuires :
- Les Balcons d'Olympie
- Exposition :
- Ouest
- Station :
- Les Menuires
En Résumé
- Balcon / Terrasse

- Lave-vaisselle

Équipements
- Ascenseur :
- Ascenseur
- Equipement Cuisine :
- Mini four
- Micro-ondes
- Lave-vaisselle
- Bouilloire Electrique
- Grille-pain
- Equipement Séjour :
- Télévision
- Balcon/Terrasse :
- Balcon / terrasse
- Local à ski :
- Casier à ski
Destination
PREYERAND
8 Rue des Blanchots
73440
LES MENUIRES
Coordonnées GPS
Latitude : 45.329092
Longitude : 6.533569































