4 pièces - HAMEAU DES MARMOTTES (HDMA7)
Présentation
LES MENUIRES - Quartier de Preyerand
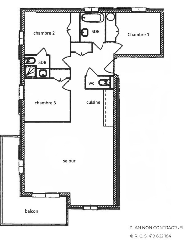
Résidence le Hameau des Marmottes bâtiment A (N°7), 4 pièces pour 6 personnes 75m², au 1er étage par escaliers, balcon exposé Ouest, vue dégagée sur La Masse et la Vallée des Belleville
PRESTATION INCLUSE (en saison d'hiver / de décembre à avril) : ménage de fin de séjour. Prestations sur demande en dehors de cette période.
AUTRES SERVICES DISPONIBLES SUR RESERVATION : linge (lit, toilette, cuisine...), services para-hôteliers et autres prestations (sous réserve de disponibilité).
Cuisine ouverte sur le séjour : plaques vitrocéramiques (x4), micro-ondes, four, réfrigérateur, lave-vaisselle, cafetière, bouilloire, grille-pain
Séjour : canapé et fauteuils, télévision, lecteur DVD avec port USB
Chambre 1 : 1 lit double (160cm), placard, salle de douche attenante avec lavabo, douche, sèche-serviettes, toilettes
Chambre 2 : 2 lits jumeaux (80cm), placard
Chambre 3 : 2 lits jumeaux (80cm), placard
Salle de bains : lavabo, baignoire, sèche cheveux
Toilettes séparées
Informations complémentaires :
Animaux refusés
Appartement non fumeur
Equipé de couettes
Accès wifi gratuit et illimité (sous réserve de bon fonctionnement du service de l'opérateur)
Casier à skis individuel au niveau -1 de la résidence
Équipé d'un lave-linge/sèche-linge combiné
Place de parking couvert N° 40
Catégorie : CONFORT
Label qualité station : 4 flocons "Or"
Résidence le Hameau des Marmottes bâtiment A (N°7), 4 pièces pour 6 personnes 75m², au 1er étage par escaliers, balcon exposé Ouest, vue dégagée sur La Masse et la Vallée des Belleville
PRESTATION INCLUSE (en saison d'hiver / de décembre à avril) : ménage de fin de séjour. Prestations sur demande en dehors de cette période.
AUTRES SERVICES DISPONIBLES SUR RESERVATION : linge (lit, toilette, cuisine...), services para-hôteliers et autres prestations (sous réserve de disponibilité).
Cuisine ouverte sur le séjour : plaques vitrocéramiques (x4), micro-ondes, four, réfrigérateur, lave-vaisselle, cafetière, bouilloire, grille-pain
Séjour : canapé et fauteuils, télévision, lecteur DVD avec port USB
Chambre 1 : 1 lit double (160cm), placard, salle de douche attenante avec lavabo, douche, sèche-serviettes, toilettes
Chambre 2 : 2 lits jumeaux (80cm), placard
Chambre 3 : 2 lits jumeaux (80cm), placard
Salle de bains : lavabo, baignoire, sèche cheveux
Toilettes séparées
Informations complémentaires :
Animaux refusés
Appartement non fumeur
Equipé de couettes
Accès wifi gratuit et illimité (sous réserve de bon fonctionnement du service de l'opérateur)
Casier à skis individuel au niveau -1 de la résidence
Équipé d'un lave-linge/sèche-linge combiné
Place de parking couvert N° 40
Catégorie : CONFORT
Label qualité station : 4 flocons "Or"
Vos avantages avec cet hébergement
- Situation :
- Départ skis aux pieds (sous condition d'ouverture de la piste)
- Vos avantages :
- Jusqu'à - 27% sur vos forfaits de ski (selon périodes, uniquement en prévente).
- Toute la saison, des réductions sur vos locations de matériel de ski et vos activités
Situation
- Quartier Les Menuires :
- Preyerand
- Nom de Résidence Les Menuires :
- Le Hameau des Marmottes
- Etage :
- 1er étage
- Exposition :
- Ouest
- Situation :
- Départ skis aux pieds (sous condition d'ouverture de la piste)
- Station :
- Les Menuires
En Résumé
- Balcon / Terrasse

- Lave-vaisselle

- Accès wifi

- Animaux :
- Animal interdit
Équipements
- Equipement Cuisine :
- Micro-ondes
- Lave-vaisselle
- Lave Linge
- Bouilloire Electrique
- Grille-pain
- Equipement Séjour :
- Télévision
- Connexion Wi-Fi
- Balcon/Terrasse :
- Balcon / terrasse
- Local à ski :
- Casier à ski
Plan de la station
Destination
PREYERAND
73440
LES MENUIRES
Coordonnées GPS
Latitude : 45.331432
Longitude : 6.534235
Avis
Note :
(10 avis)
4,7
/ 5
Mars 2025
Thomas
Note :
5
/ 5
Qualité de l'accueil
Le logement correspond au descriptif
Propreté du logement
Décoration du logement
Équipement du logement
Confort de la literie
Avis écrit le 11/03/2025
Août 2024
AHMID
Note :
4
/ 5
Qualité de l'accueil
Le logement correspond au descriptif
Propreté du logement
Décoration du logement
Équipement du logement
Confort de la literie
Avis écrit le 27/08/2024
Avis par type de profil











































