Appartements & Chalets
Nous vous proposons une large gamme d'hébergements tout confort dans le village de Saint-Martin de Belleville, à réserver en ligne pour votre prochain séjour dans les 3 Vallées.
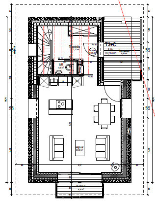
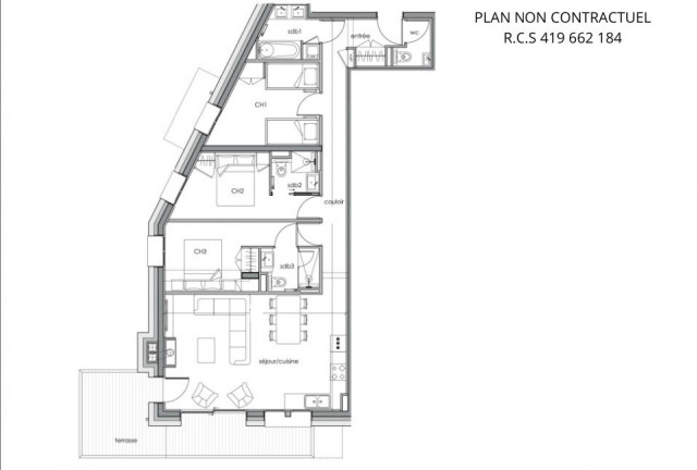
Les Places 10 personnes 107 m2
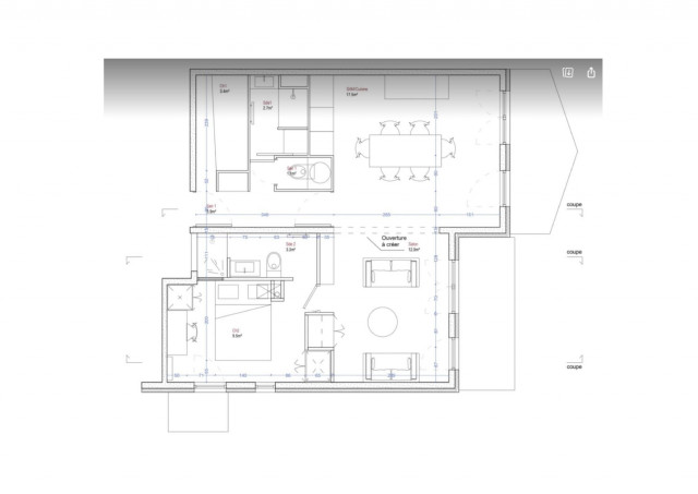
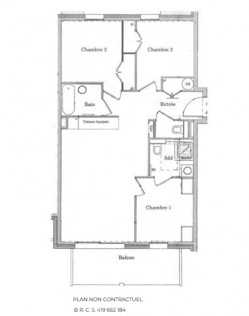
Centre Village Saint-Martin 10 personnes 145 m2
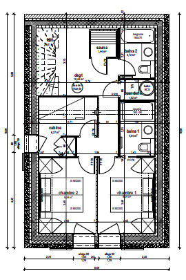
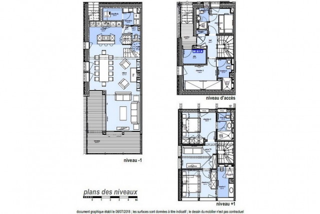
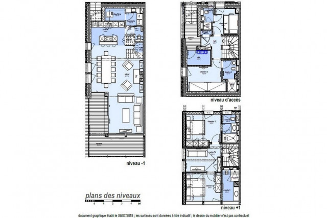
Les Places 10 personnes 143 m2

































































































































































































































































































































































































































































































































