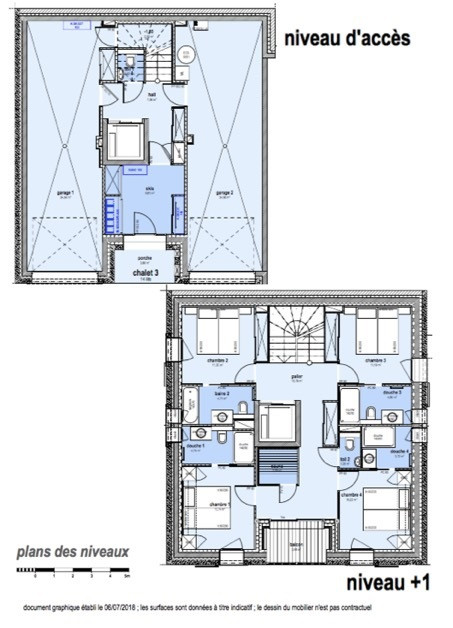
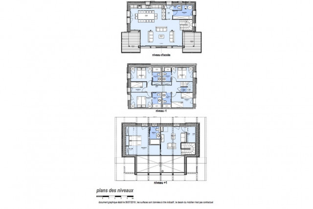
Appartements & Chalets - Page 2
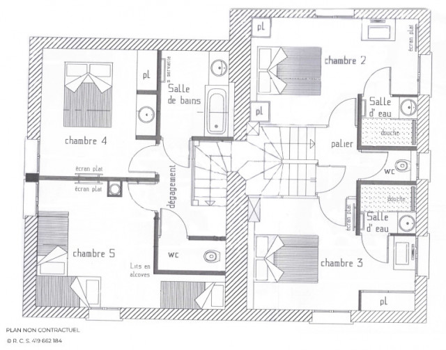
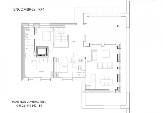
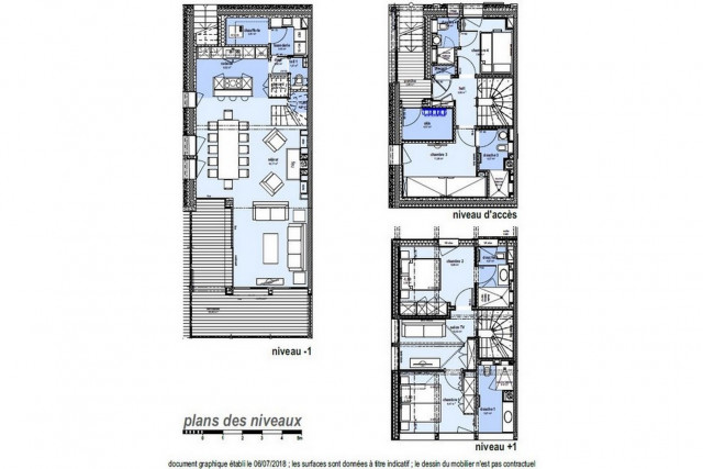
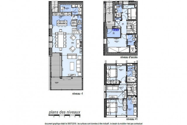
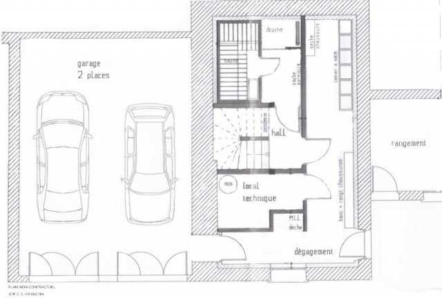
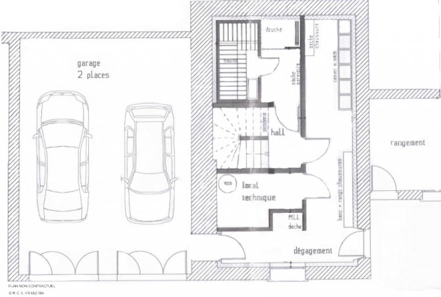
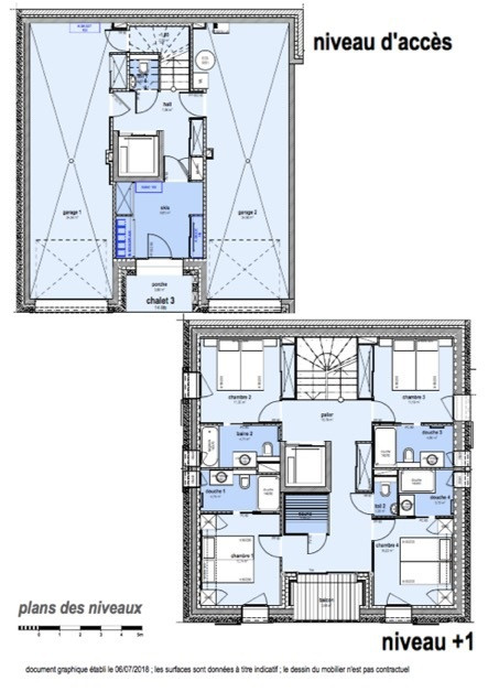
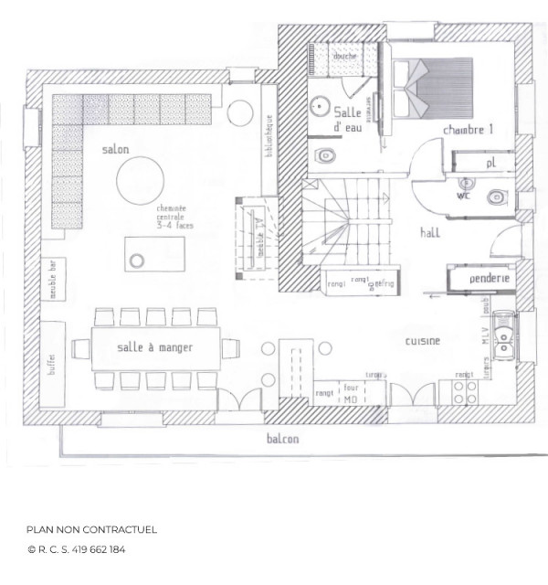
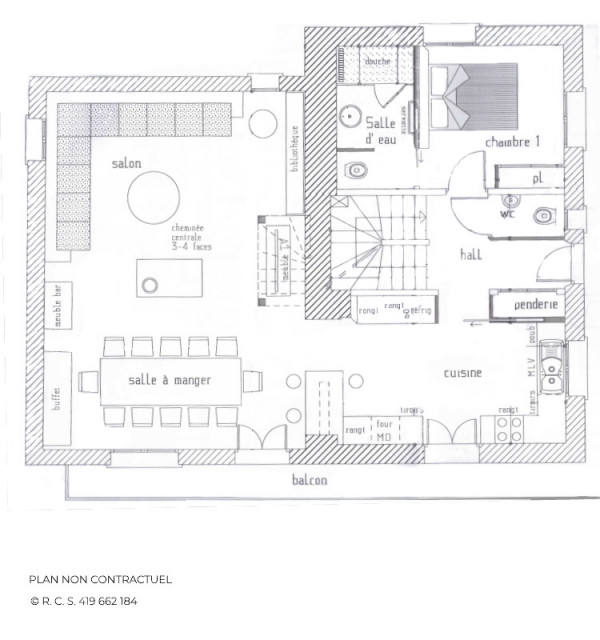
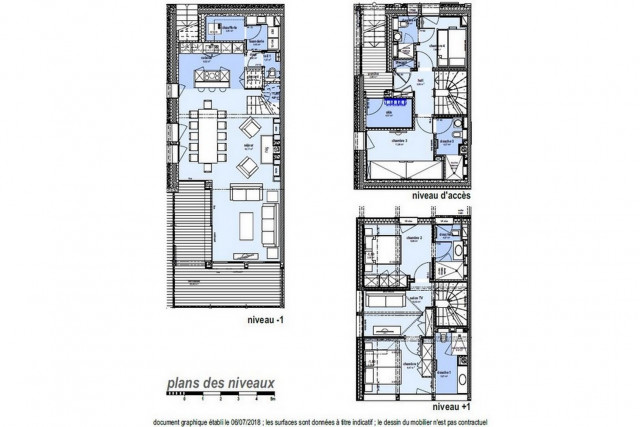
Les Places 280,00 m2
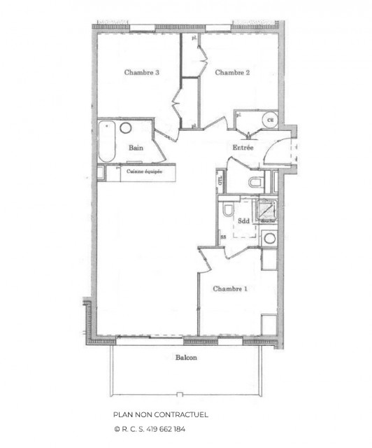
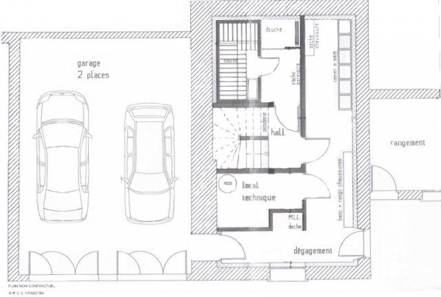
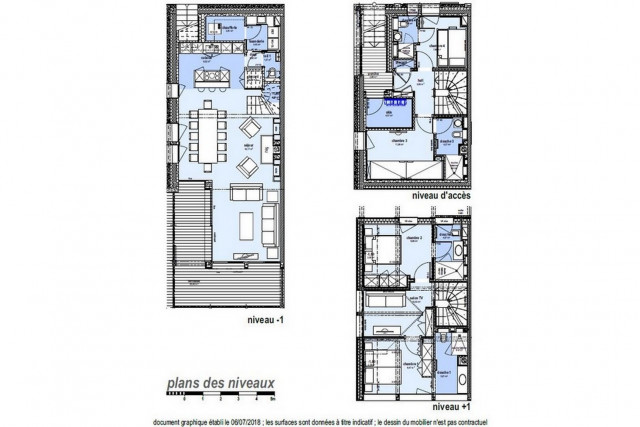
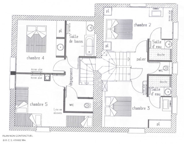
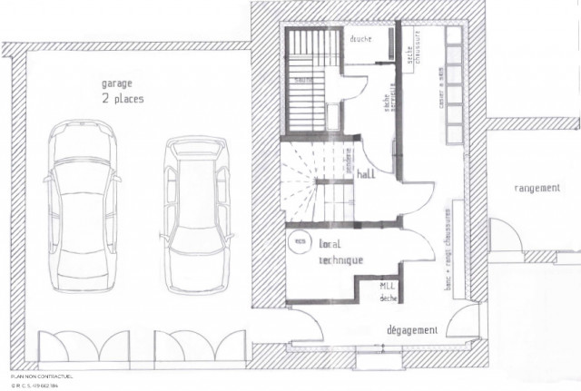
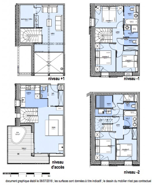
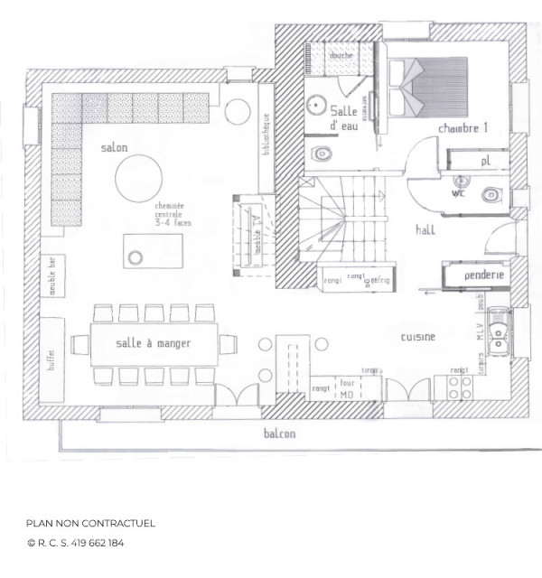
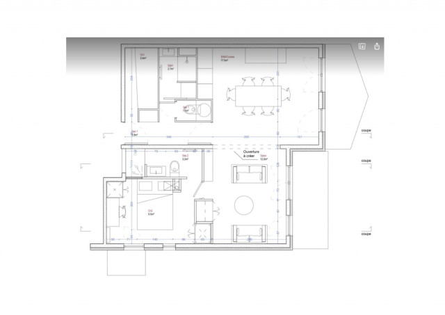
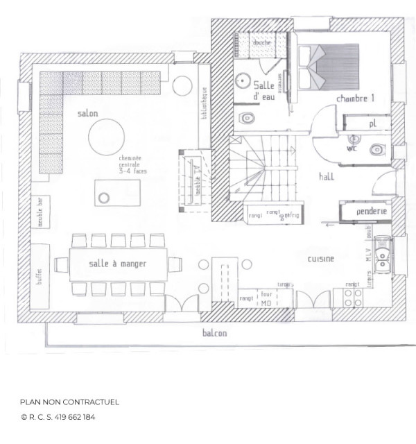
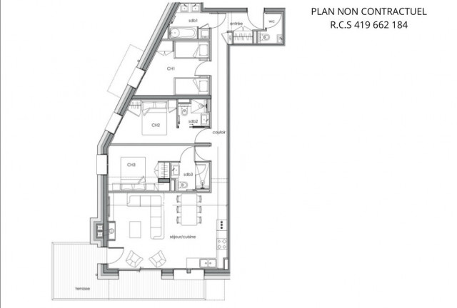
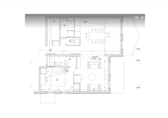
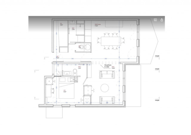
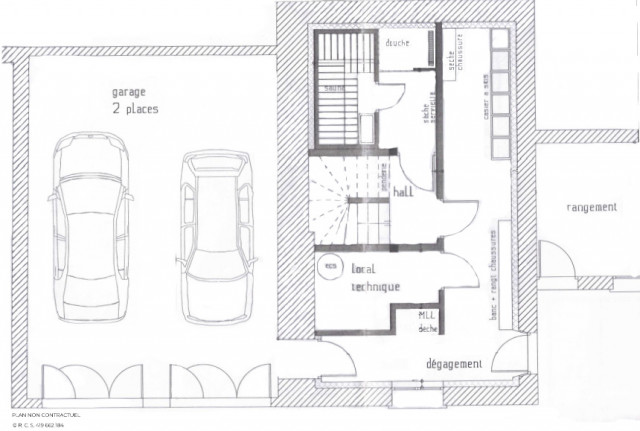
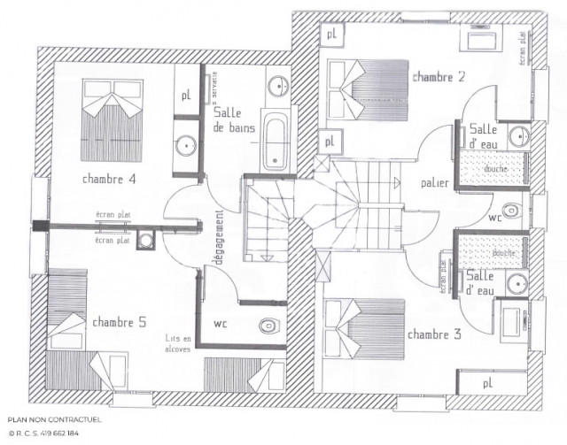
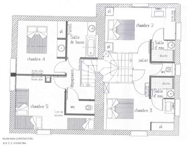
Les Places 8 personnes 125 m2
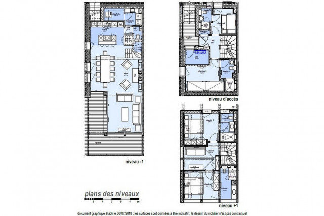
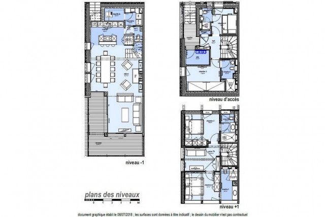
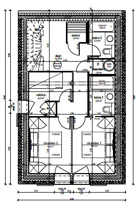
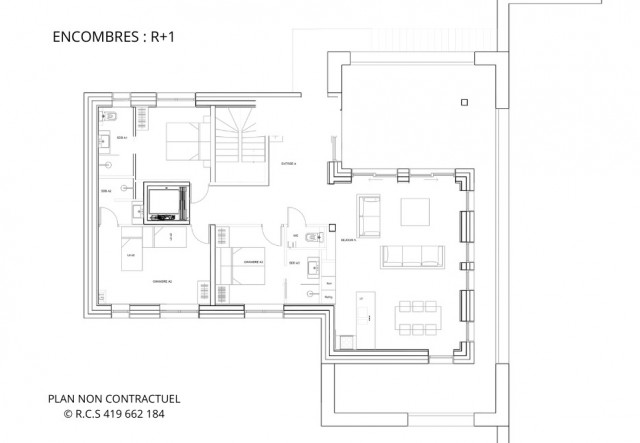
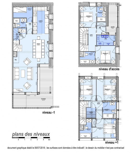
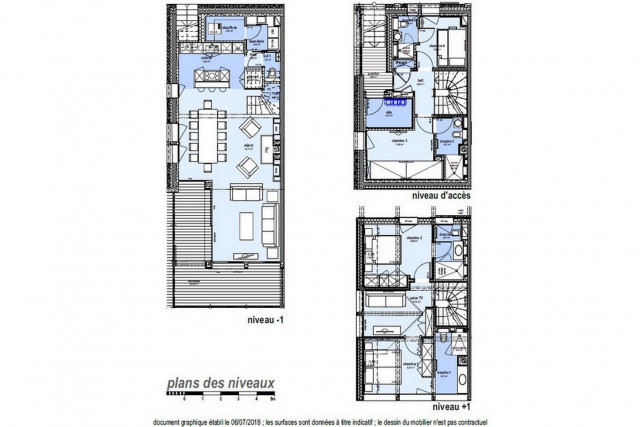
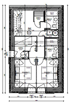
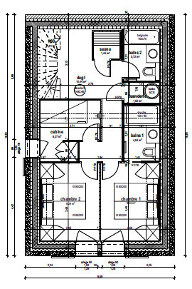
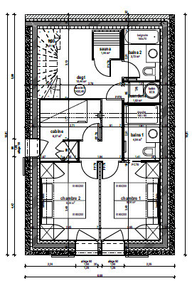
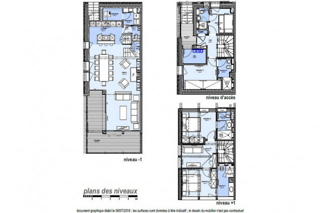
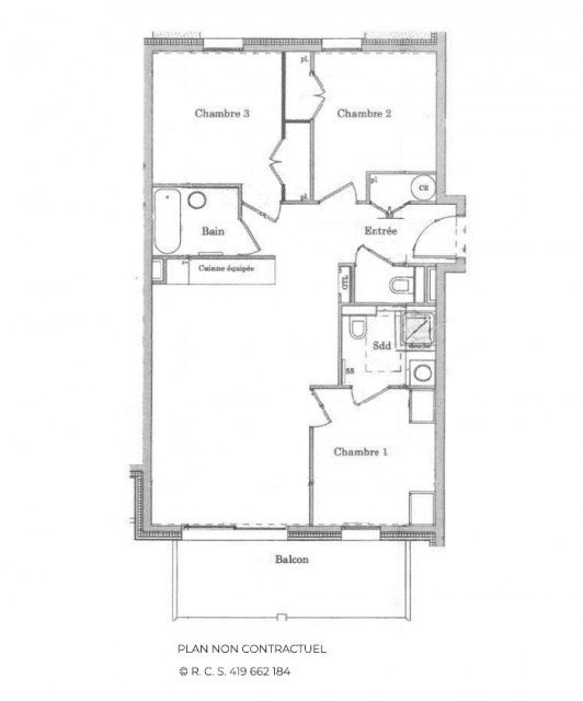
Les Grangeraies 8 personnes 120 m2
-
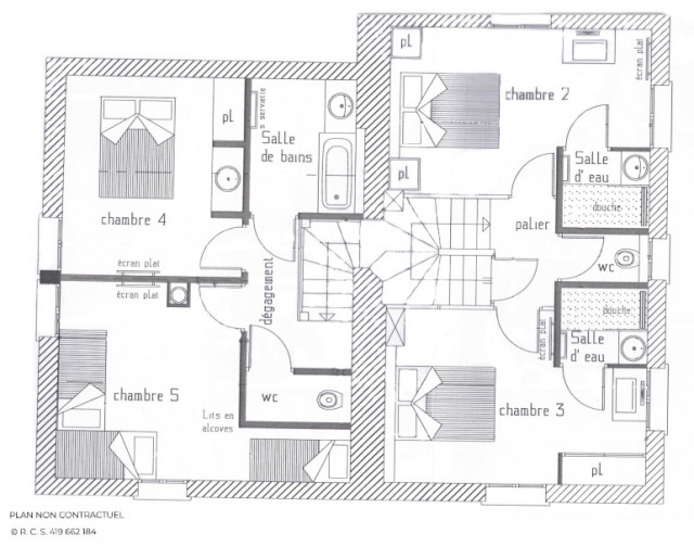
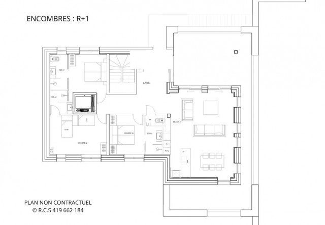
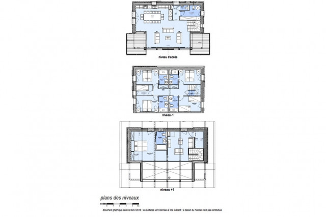
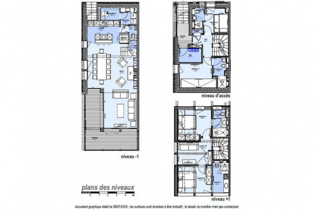
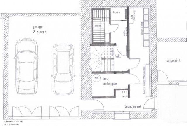
Nom de Résidence Les Menuires :
- Charmettes
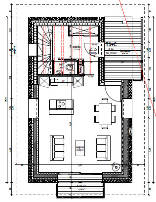
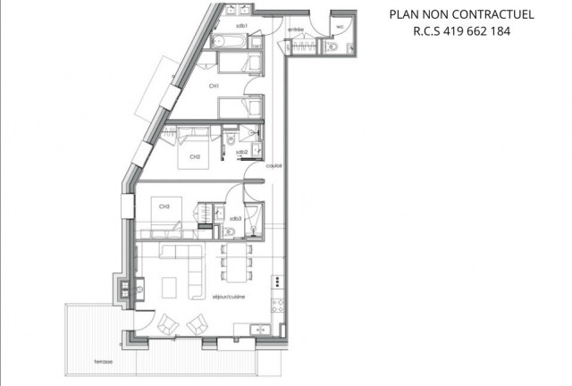
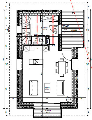
Les Grangeraies 6 personnes 40 m2
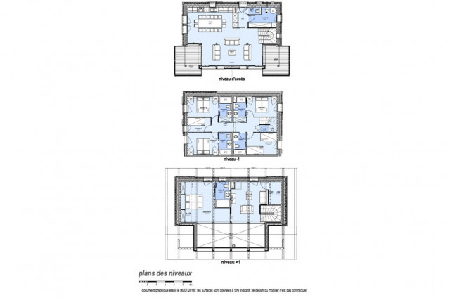
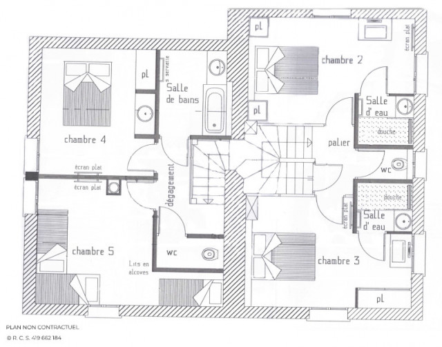
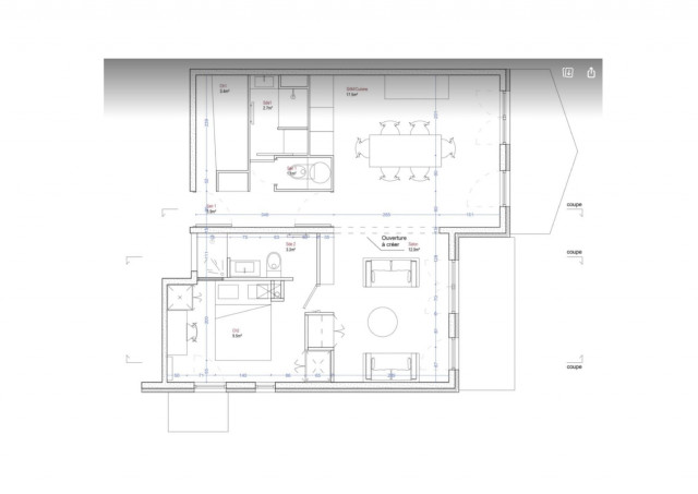
Les Grangeraies 4 personnes 66 m2
-
Nom de Résidence Les Menuires :
- Charmettes
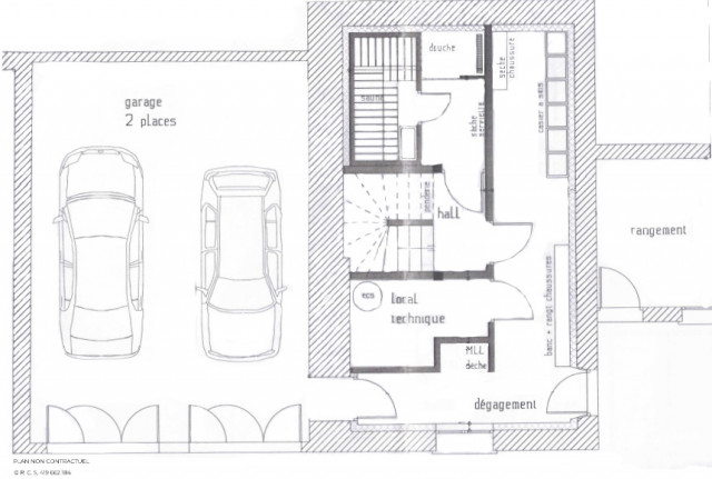
Les Places 10 personnes 107 m2



























































































































































































































































































































































































































































































