Appartements & Chalets
Nous vous proposons une large gamme d'hébergements tout confort dans le village de Saint-Martin de Belleville, à réserver en ligne pour votre prochain séjour dans les 3 Vallées.
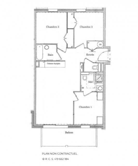
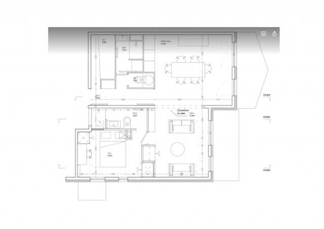
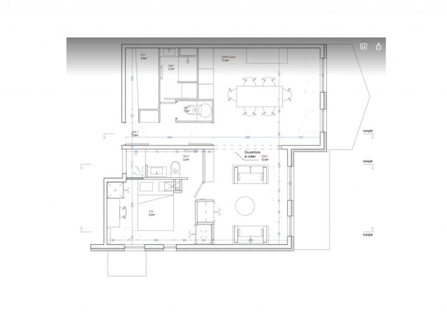
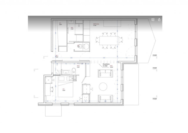
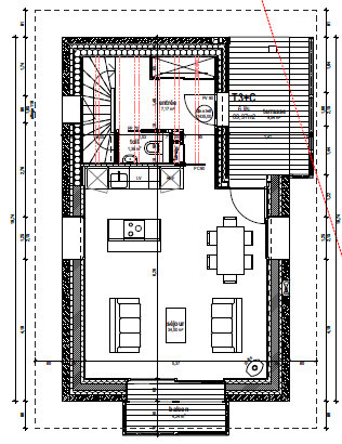
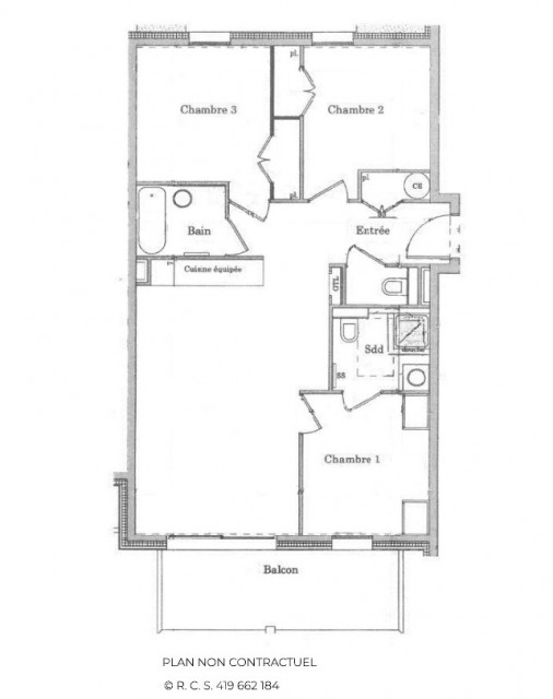
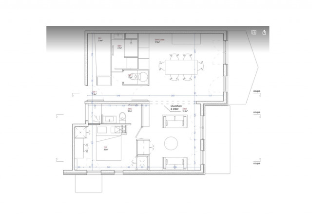
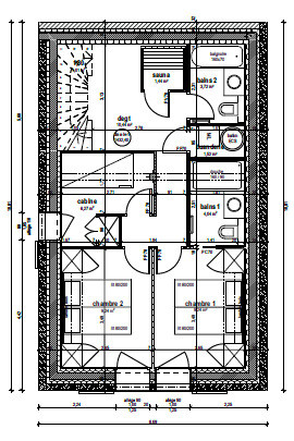
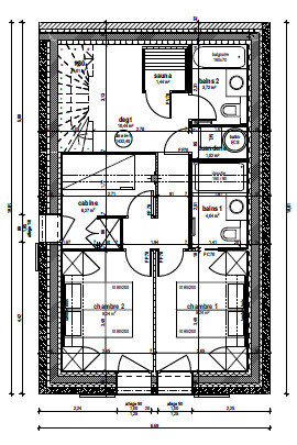
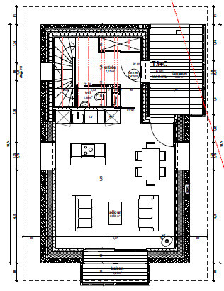
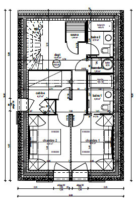
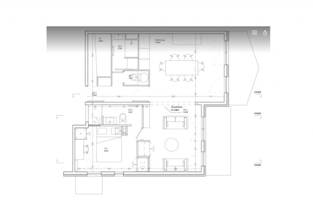
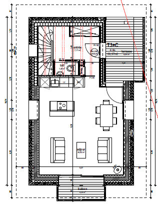
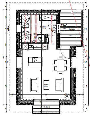
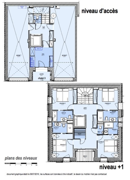
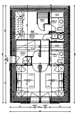
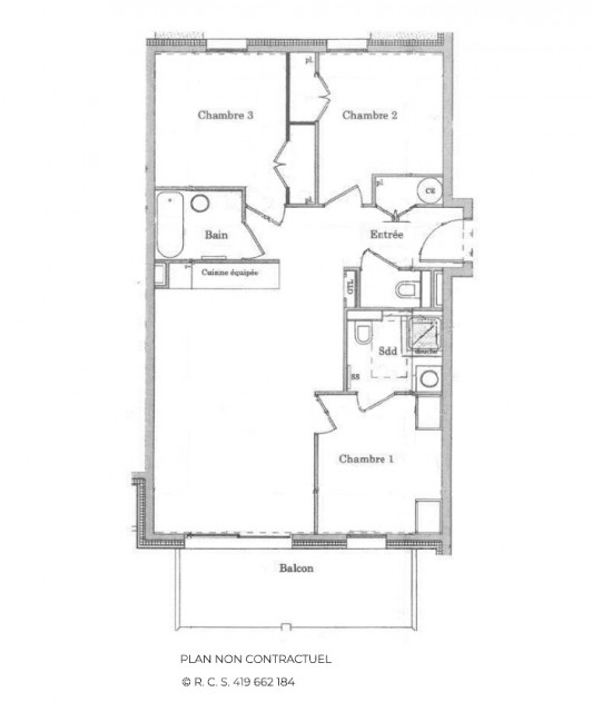
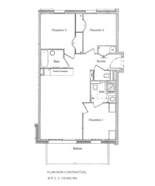
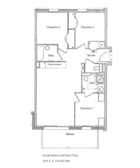
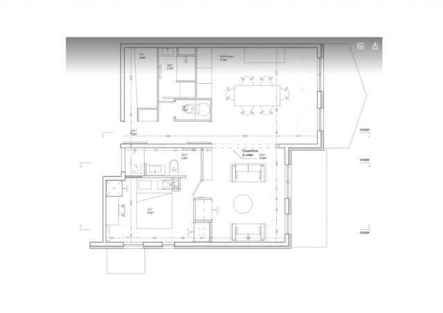
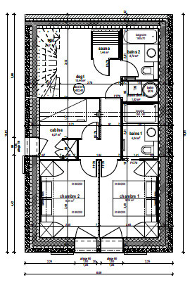
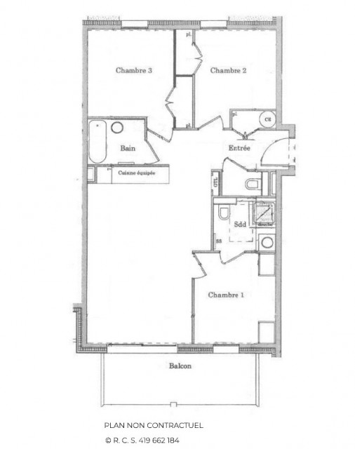
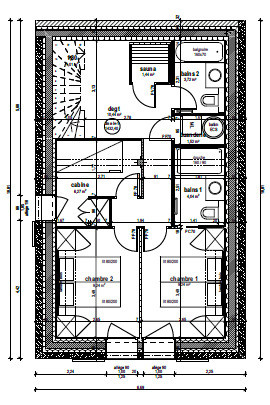
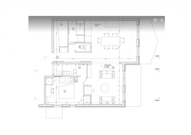
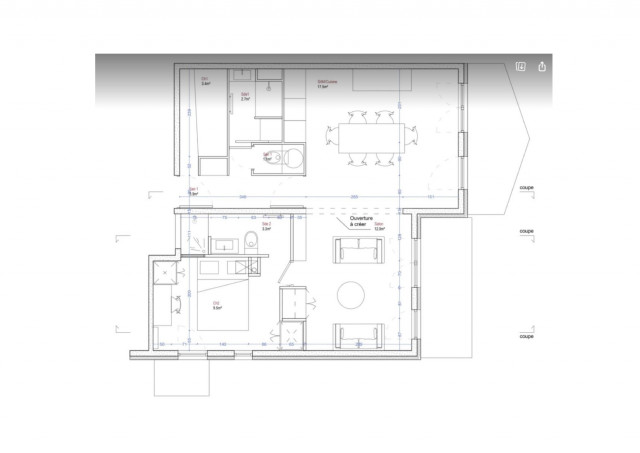
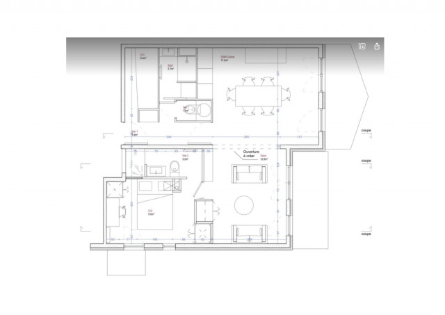
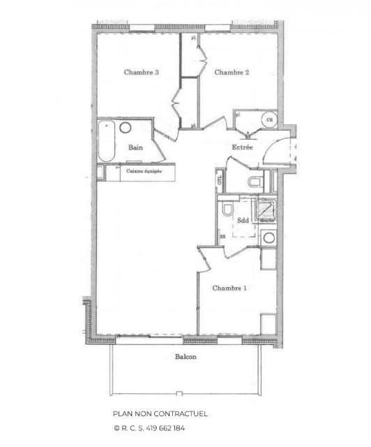
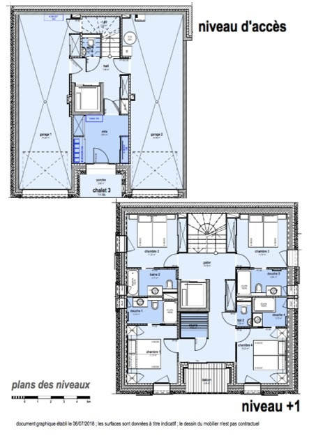
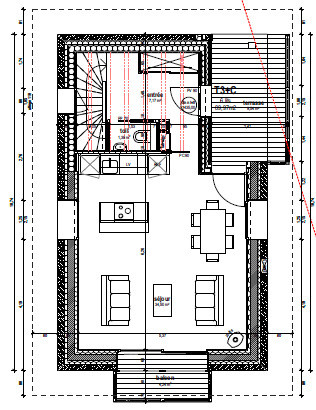
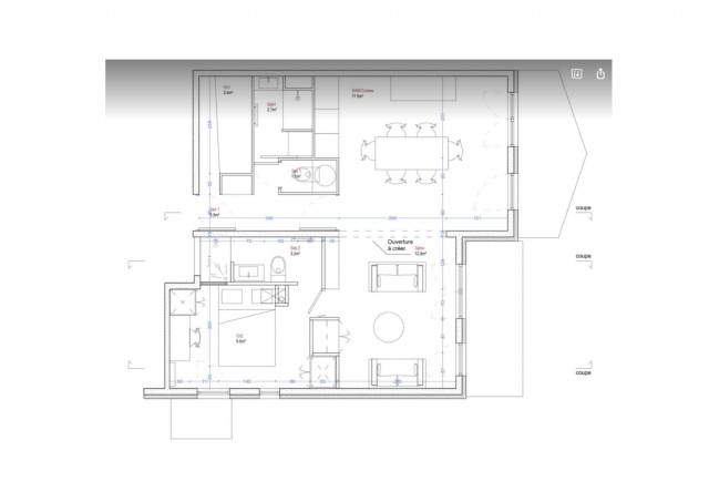
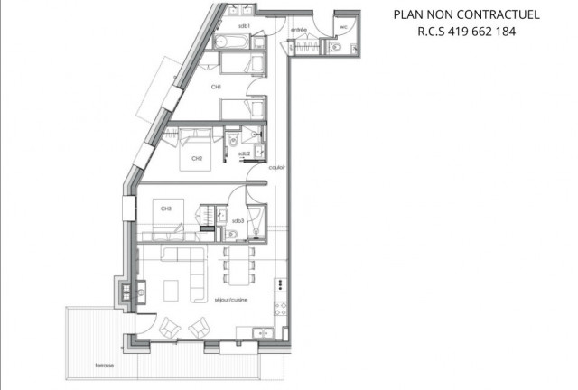
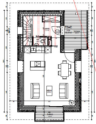
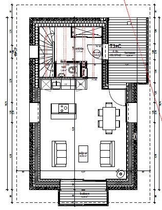
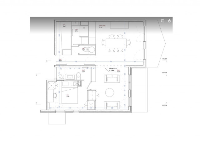
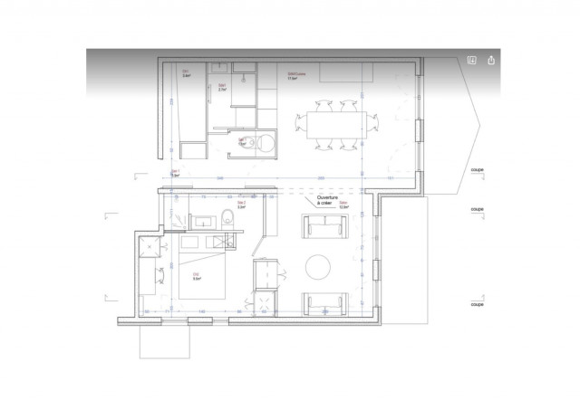
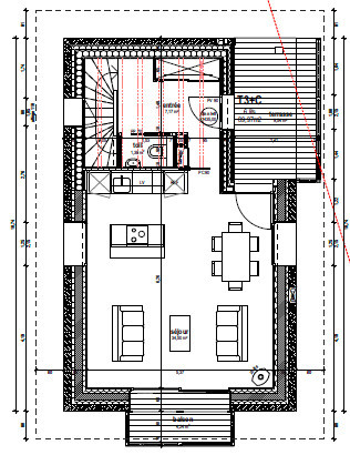
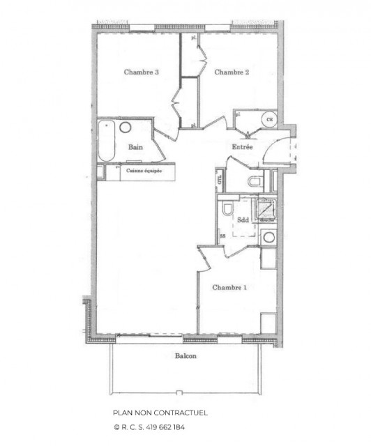
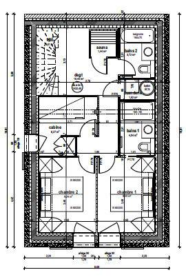
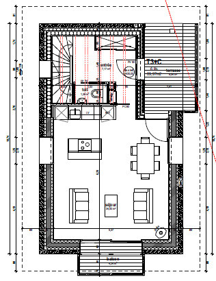
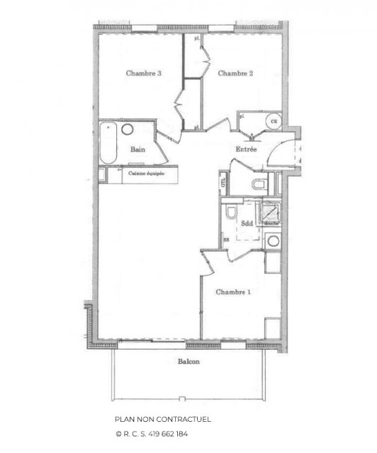
Les Grangeraies 6 personnes 32 m2
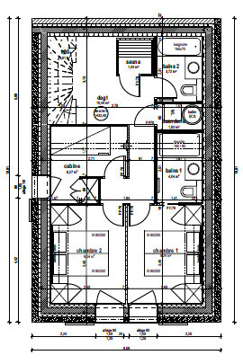
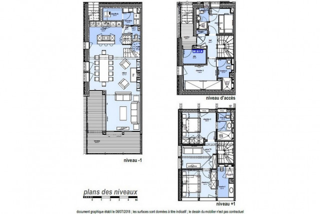
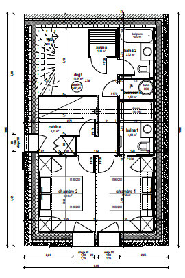
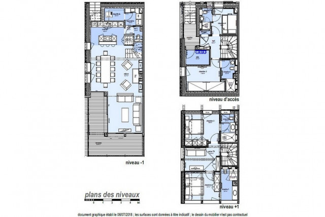
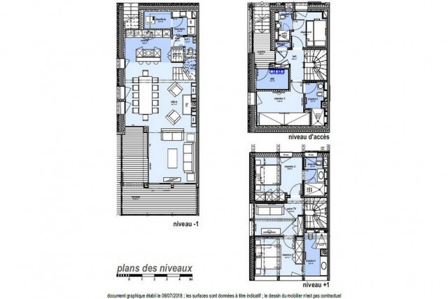
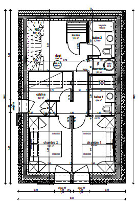
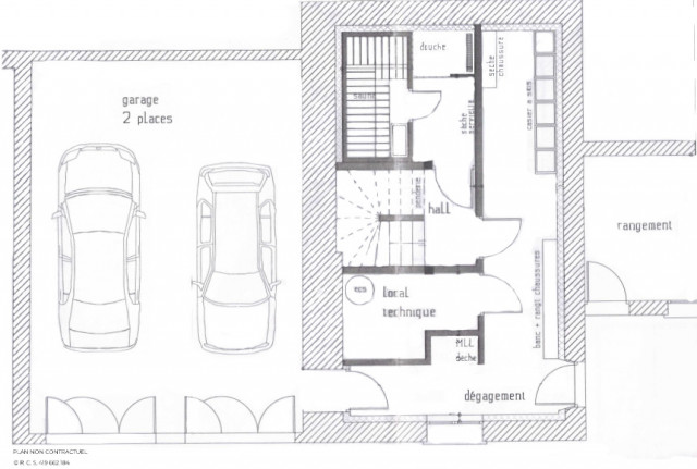
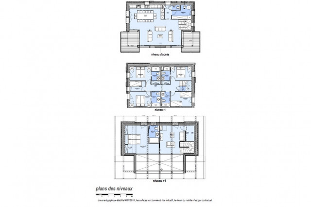
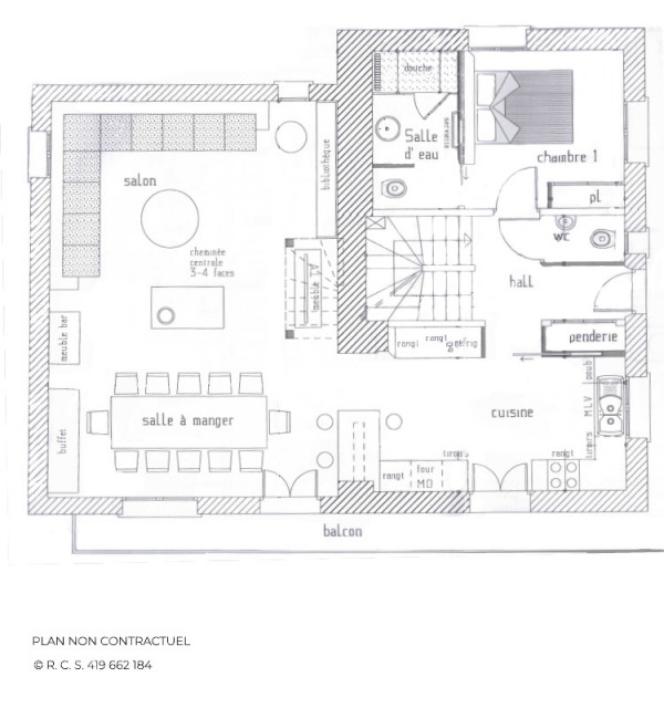
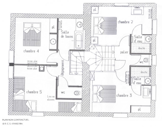
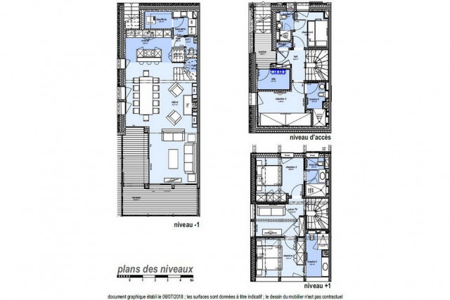
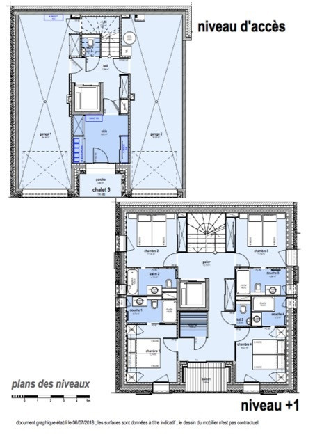
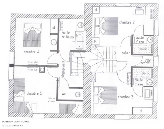
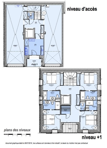
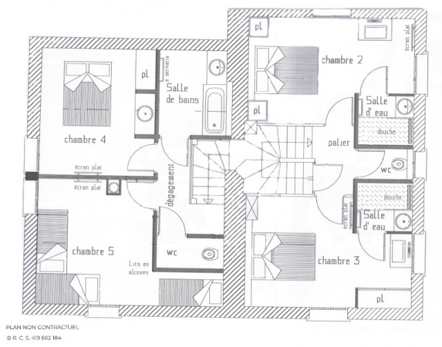
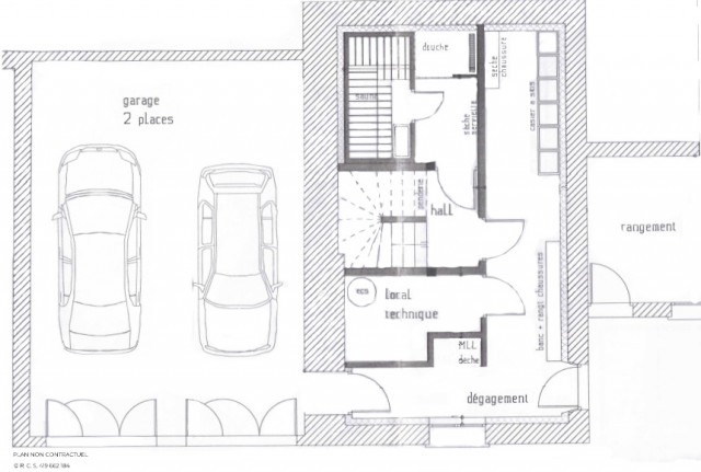
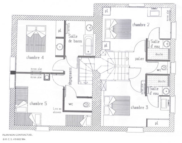
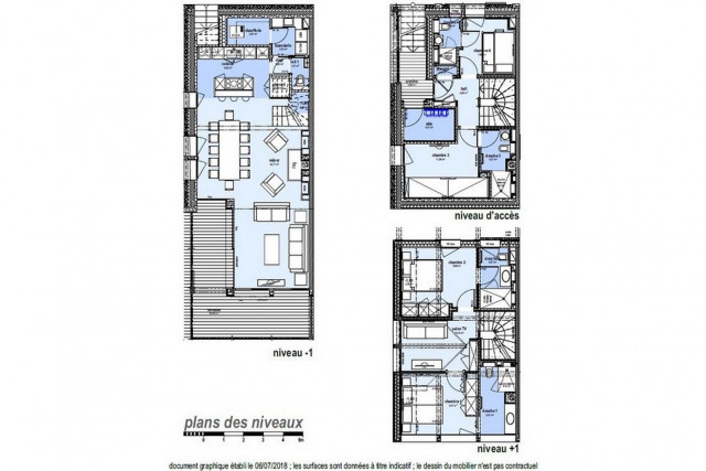
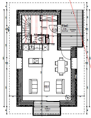
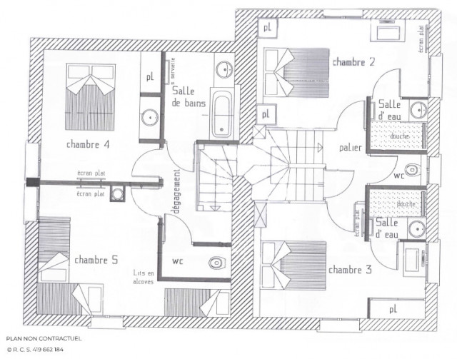
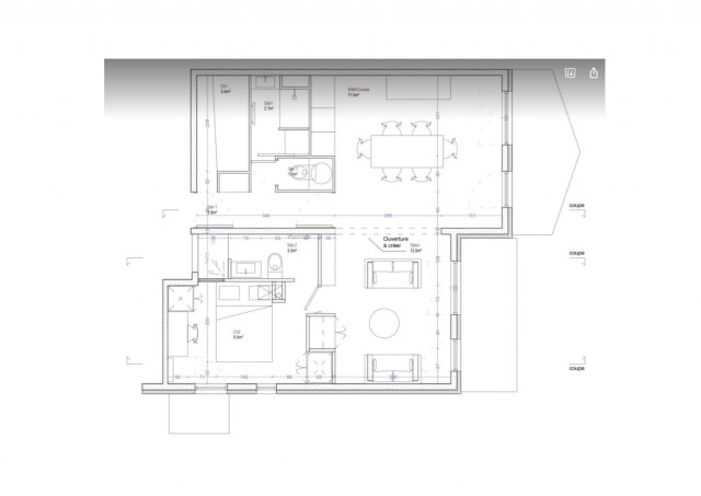
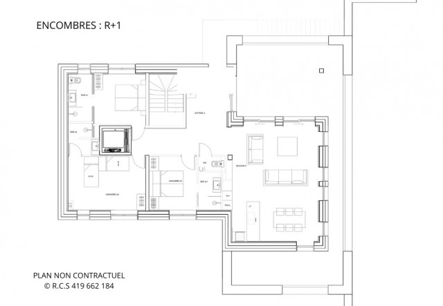
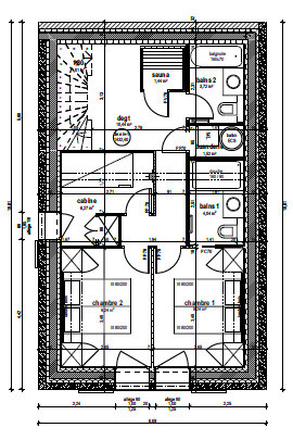
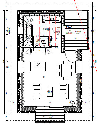
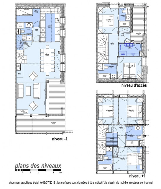
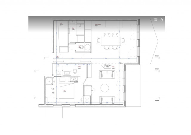
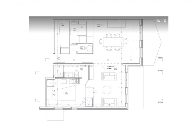
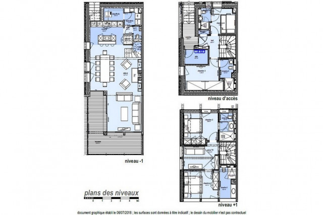
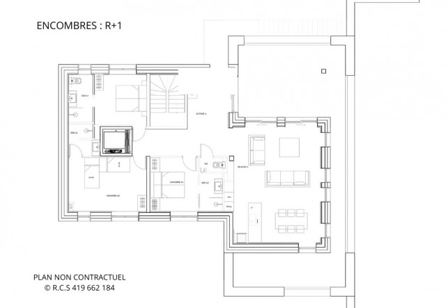
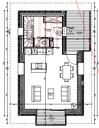
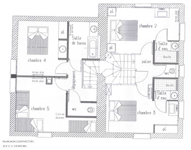
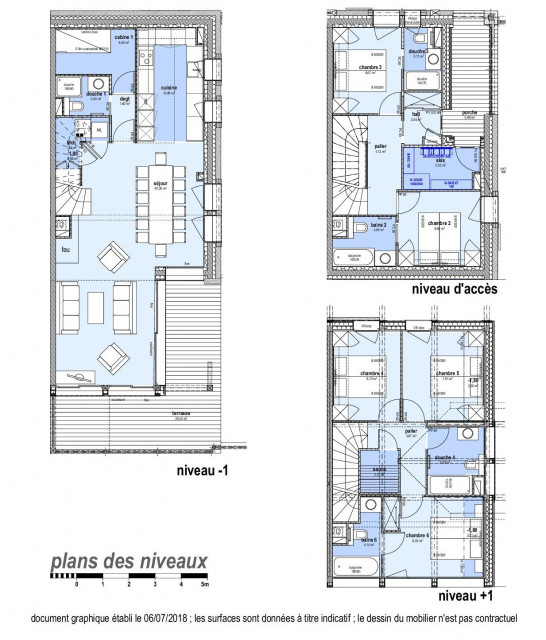
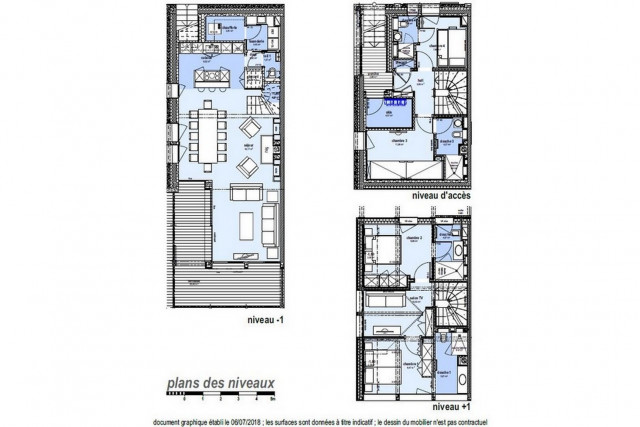
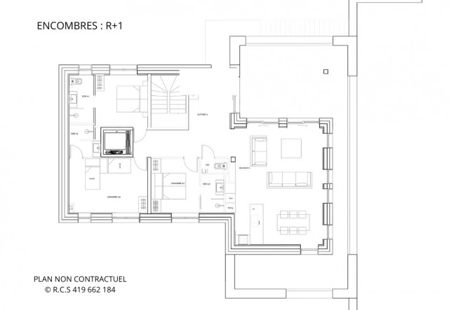
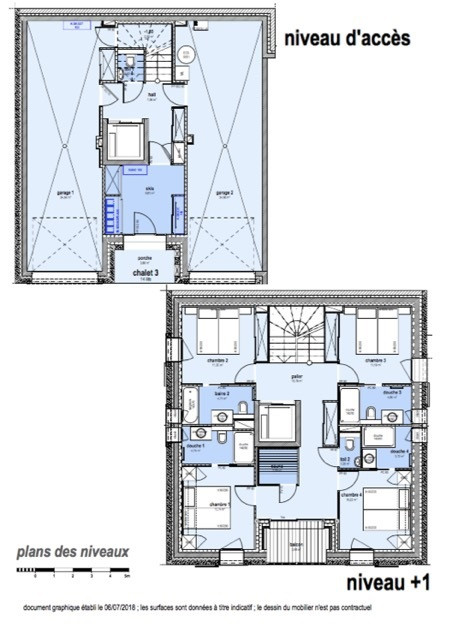
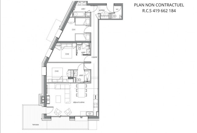
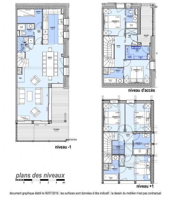
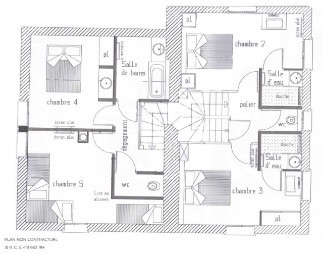
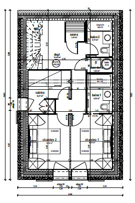
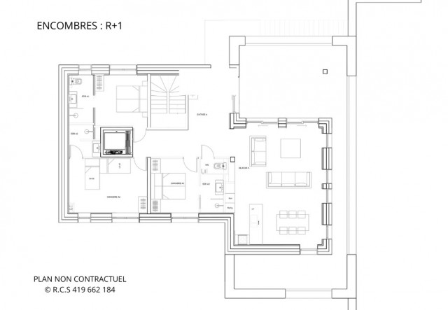
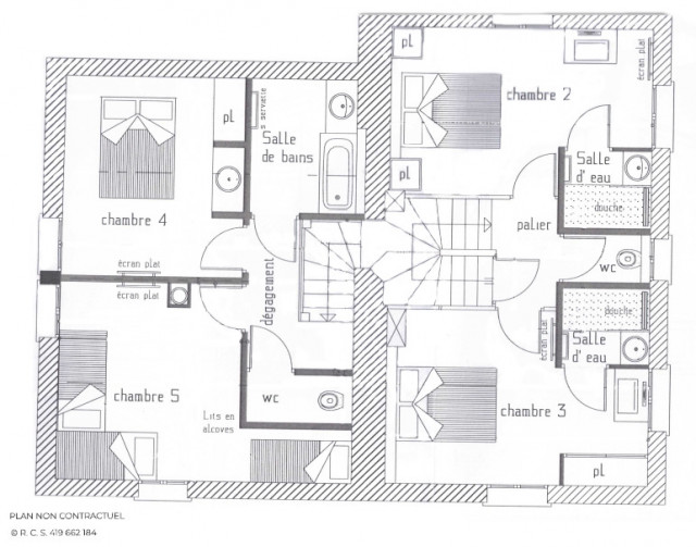
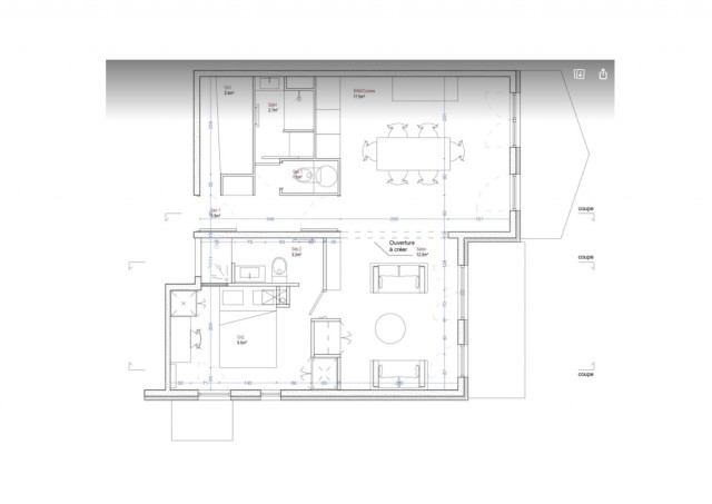
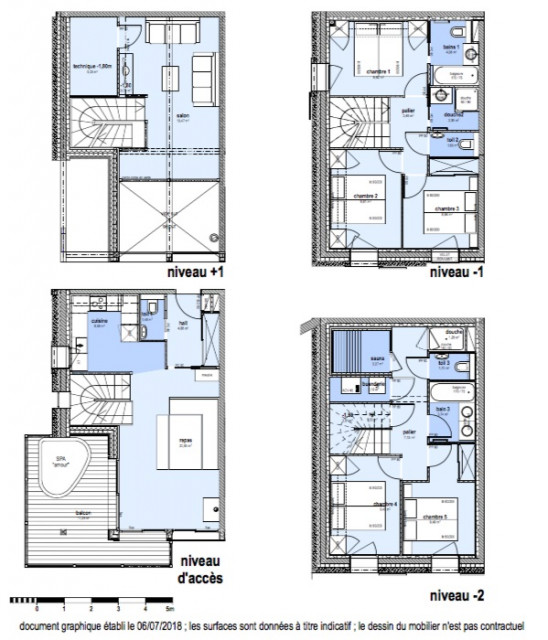
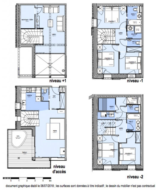
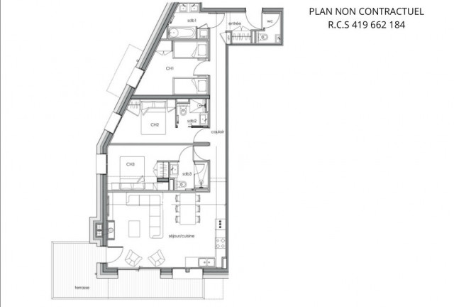
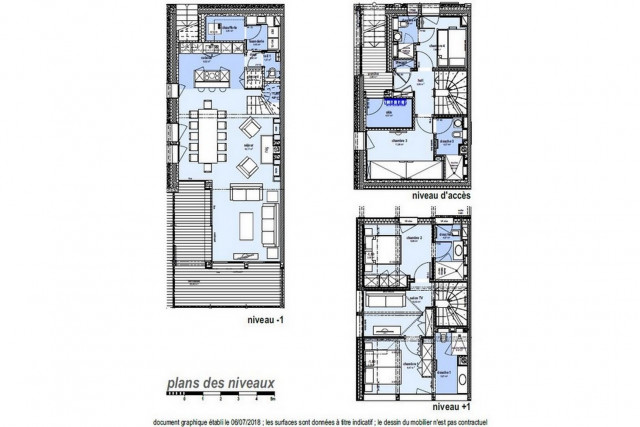
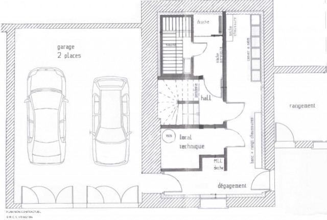
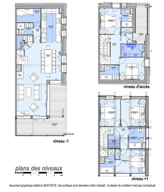
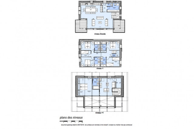
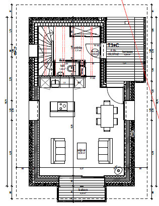
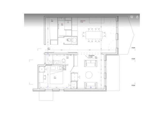
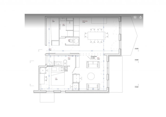
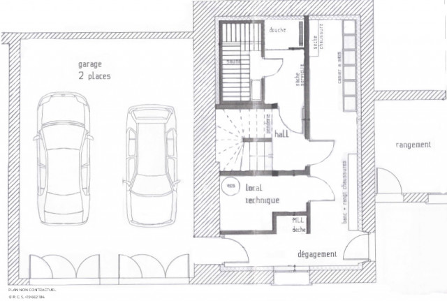
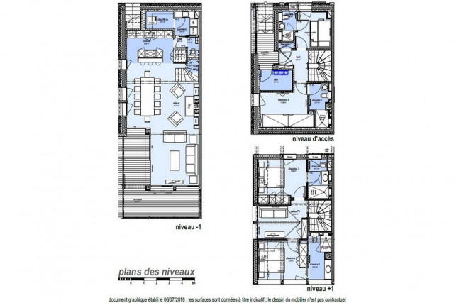
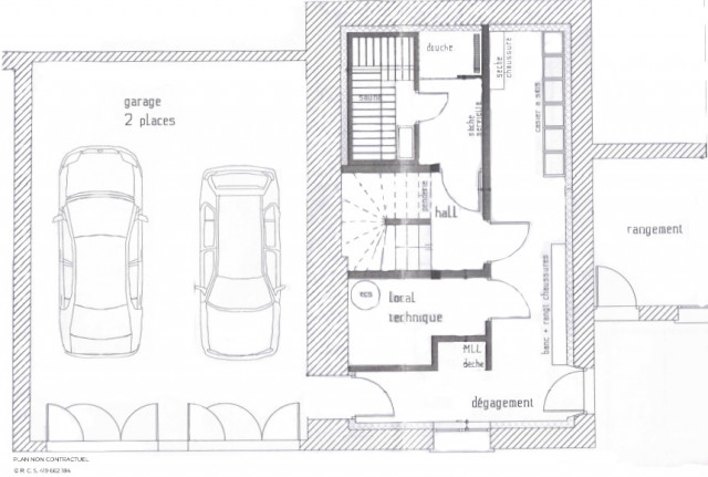
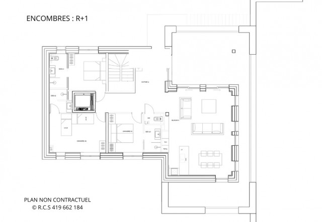
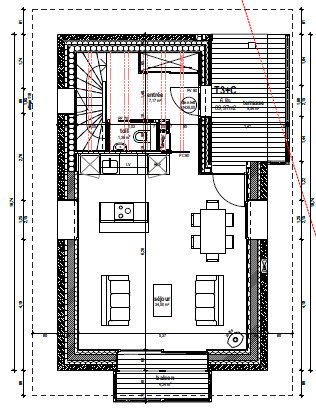
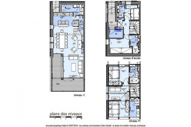
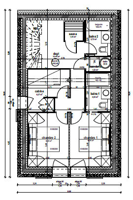
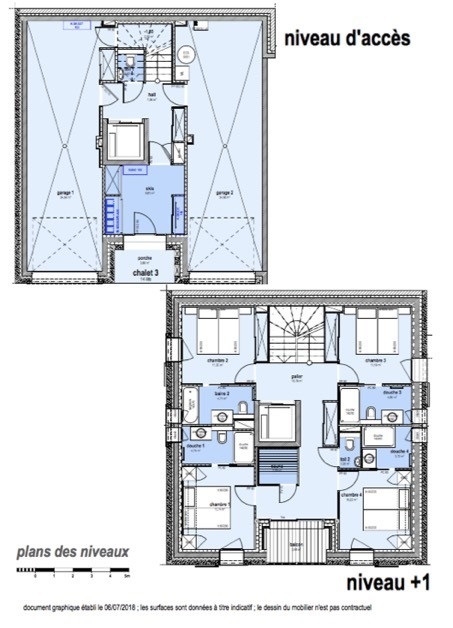
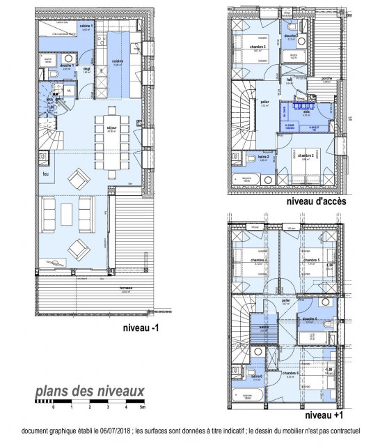
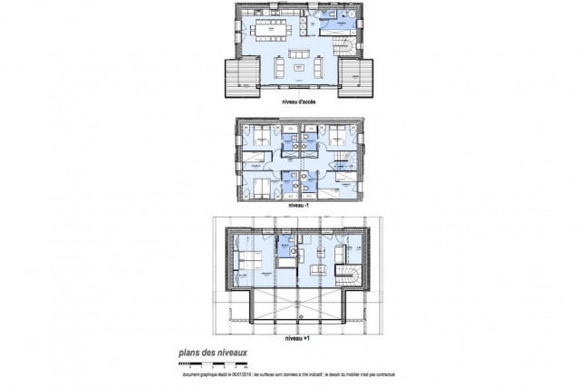
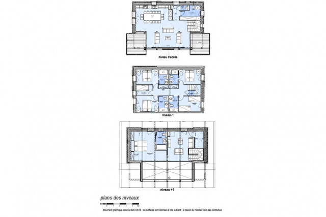
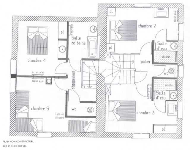
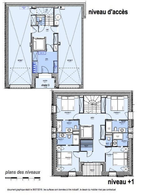
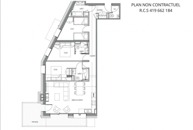
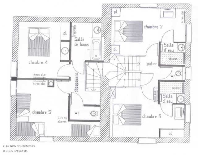
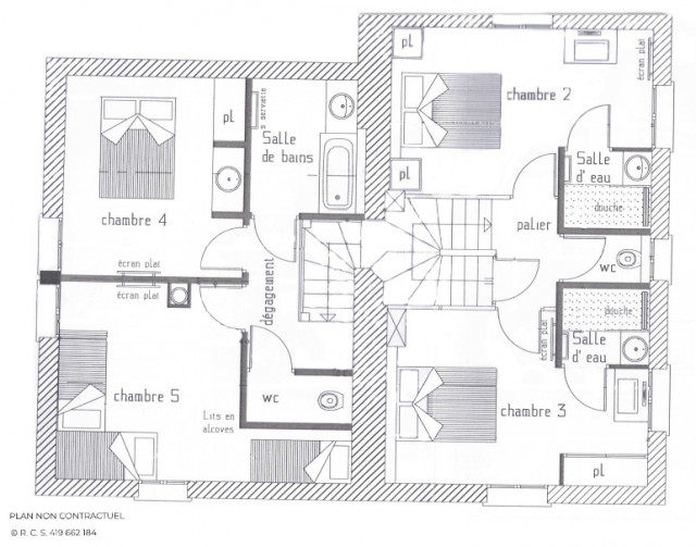
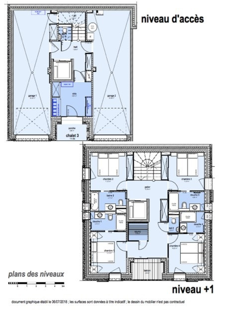
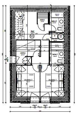
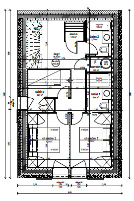
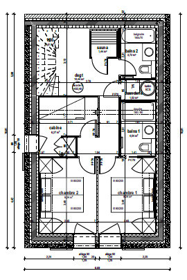
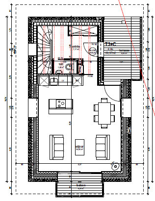
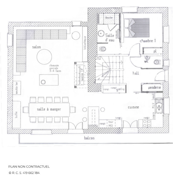
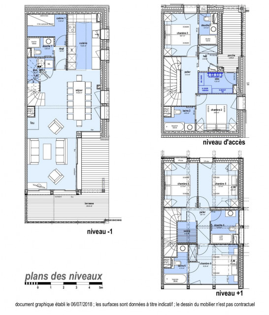
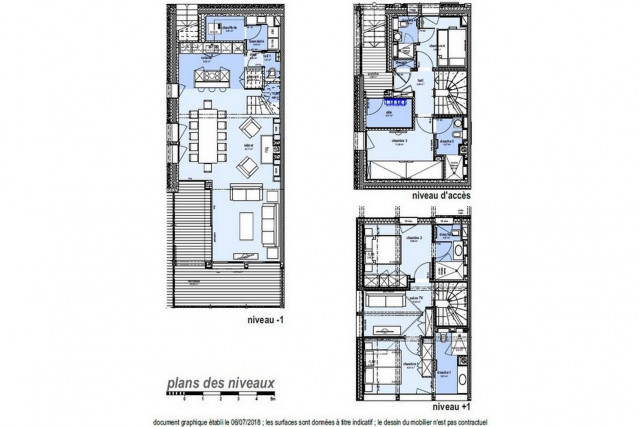
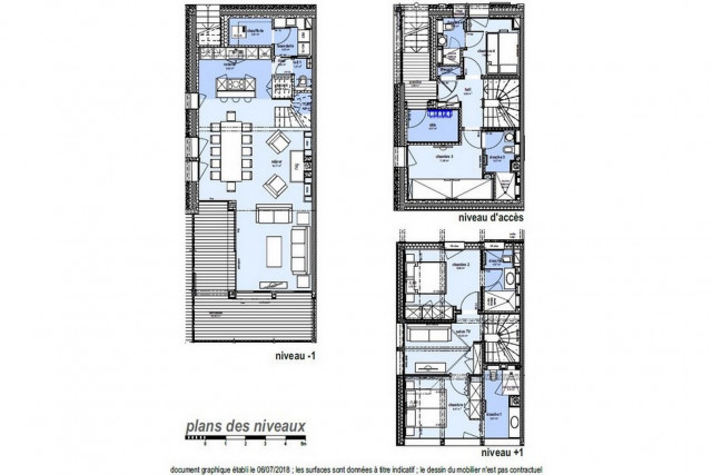
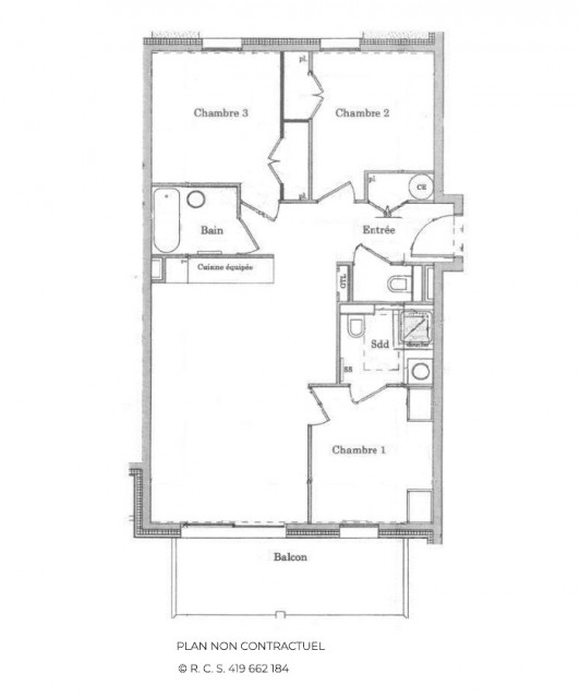
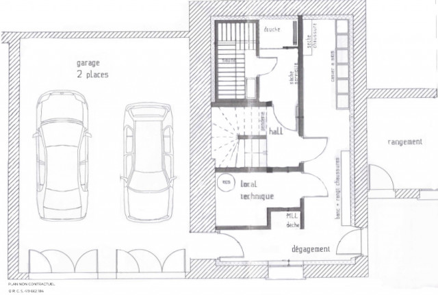
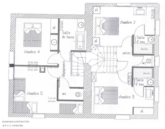
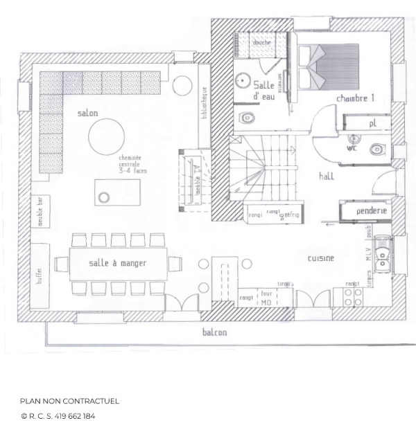
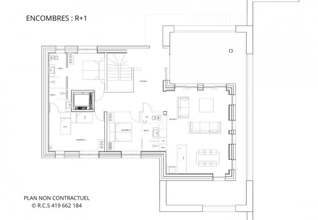
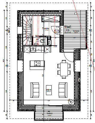
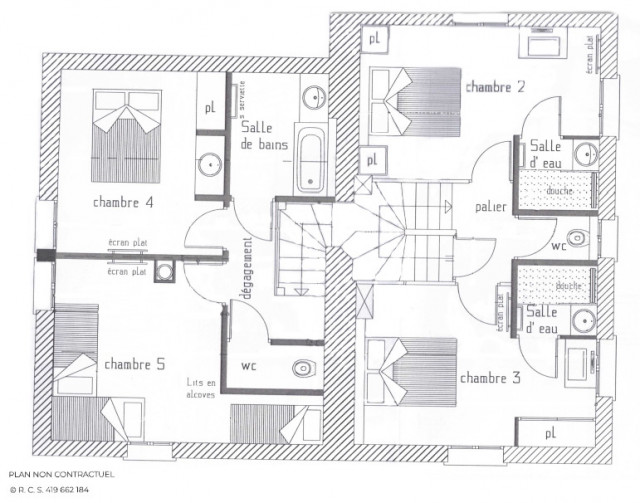
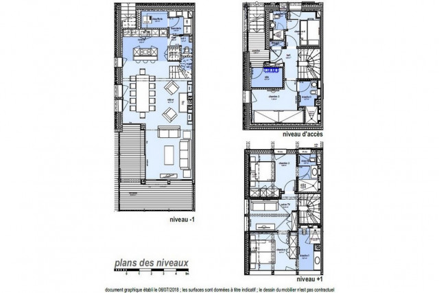
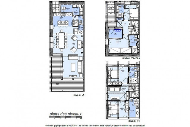
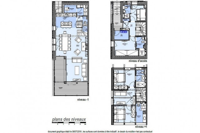
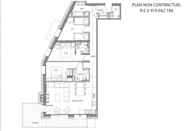
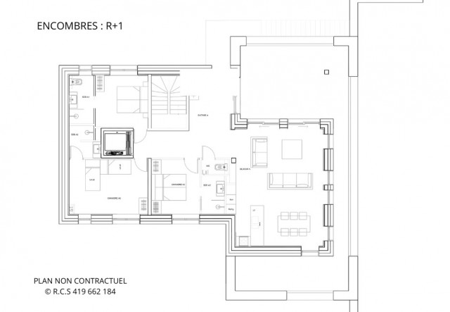
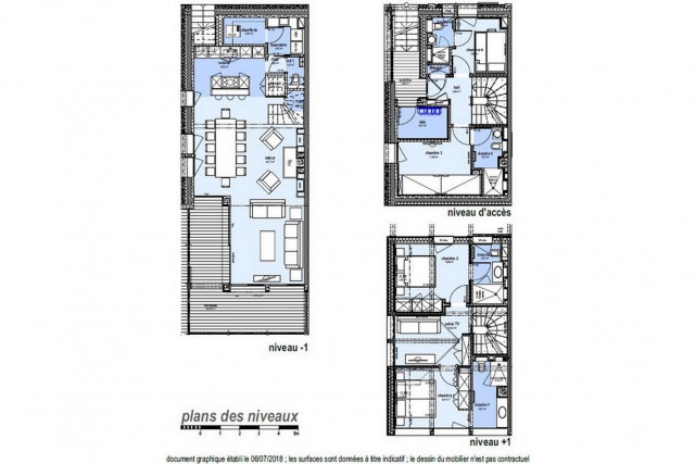
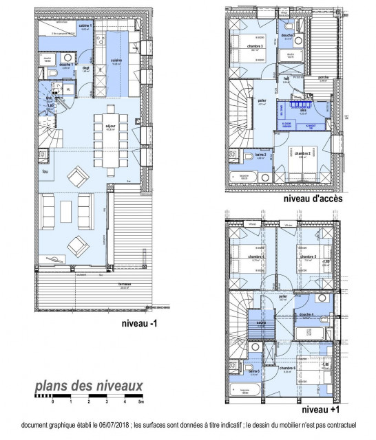
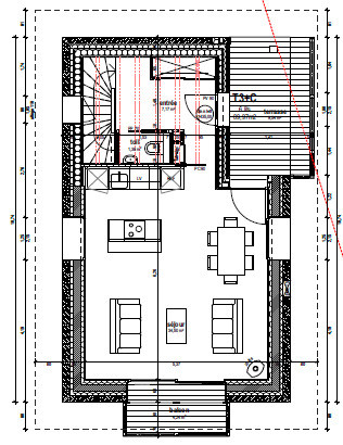
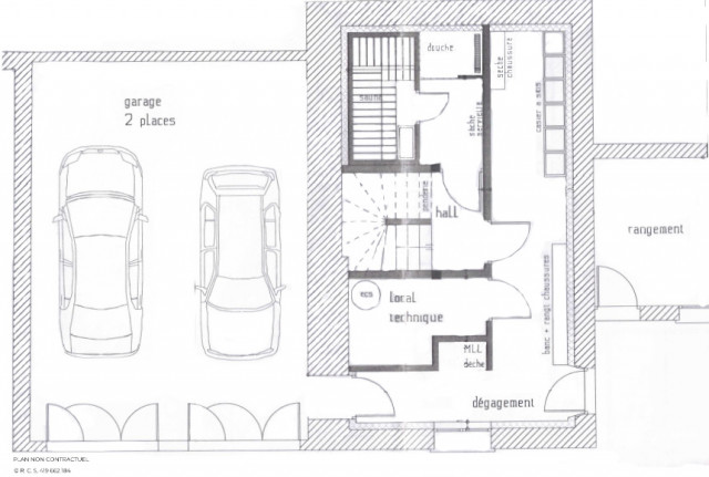
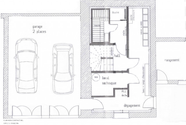
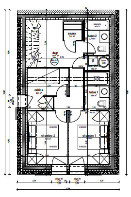
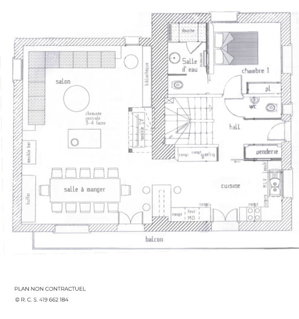
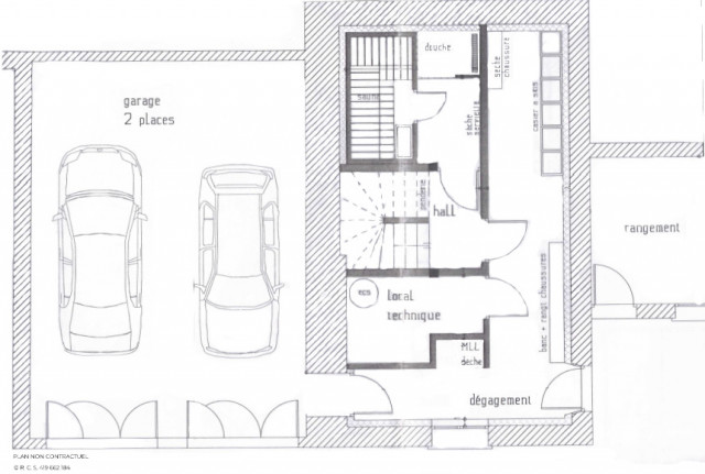
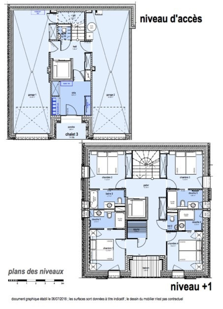
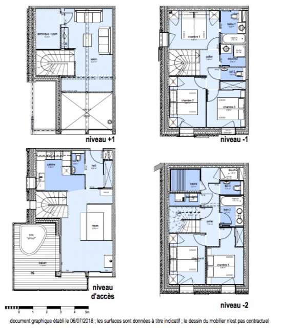
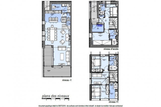
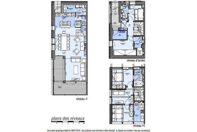
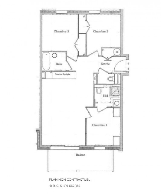
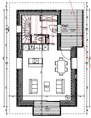
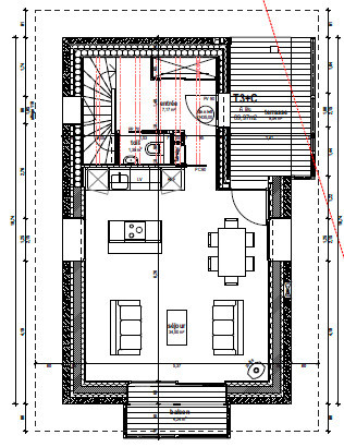
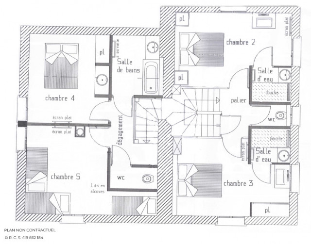
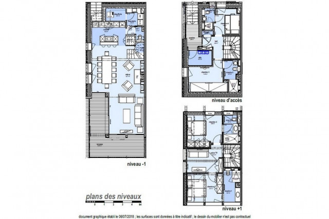
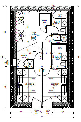
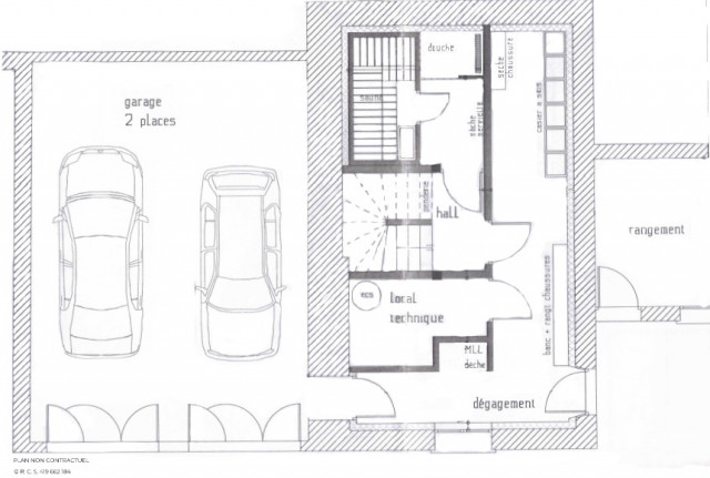
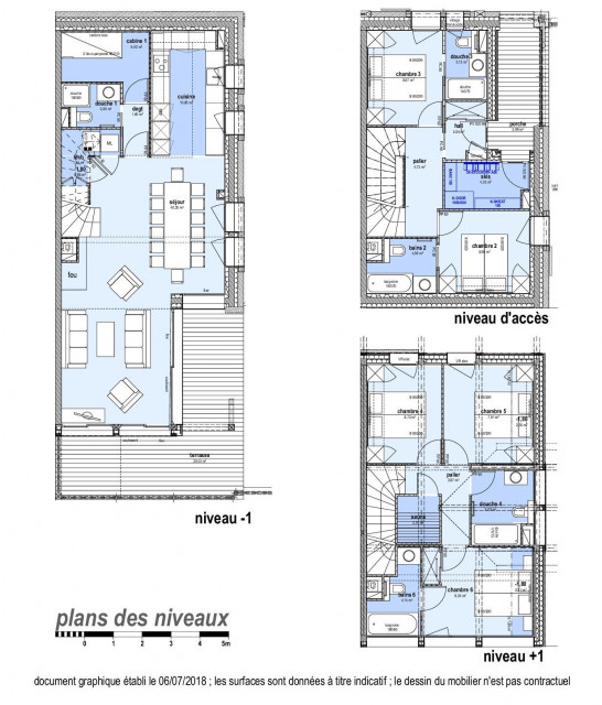
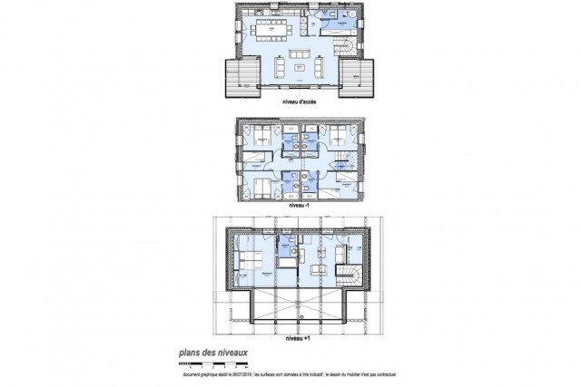
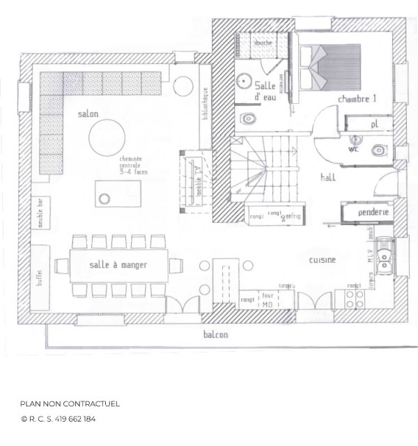
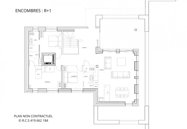
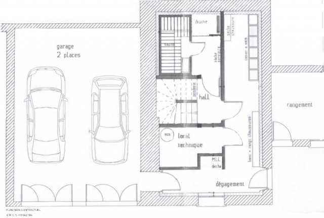
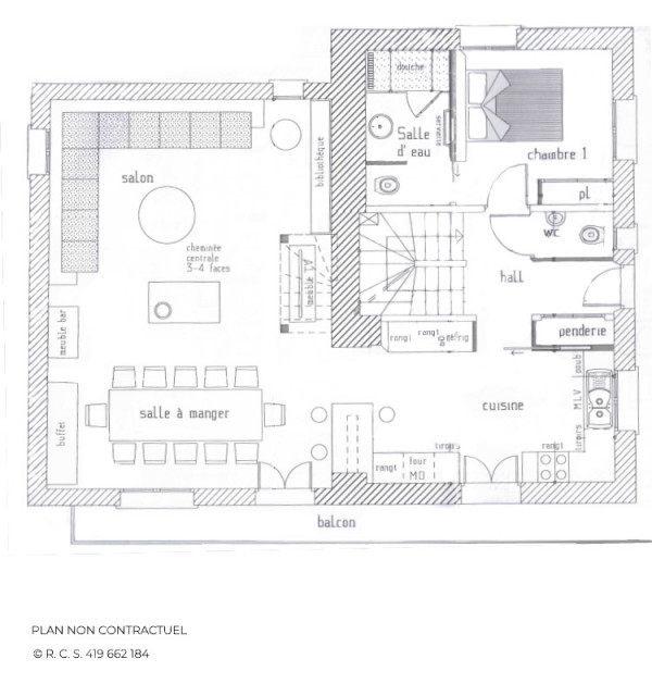
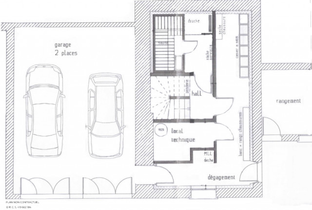
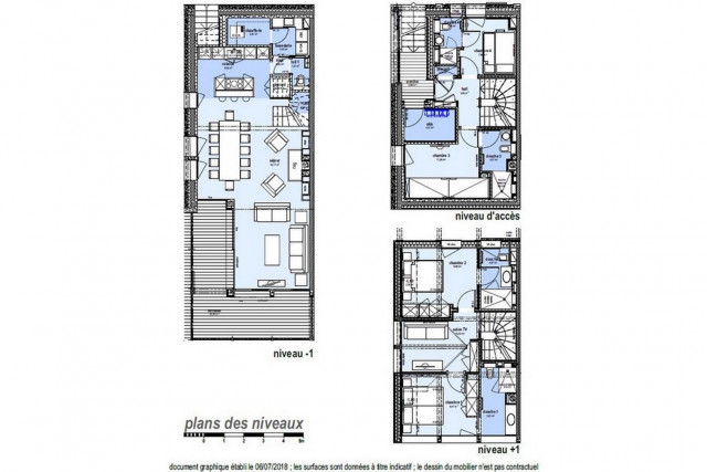
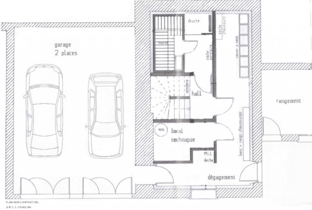
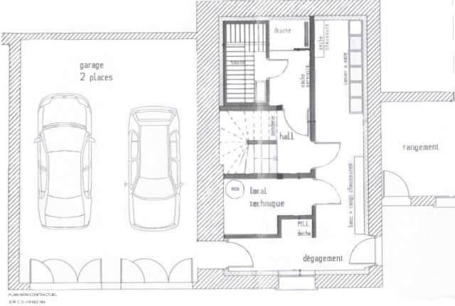
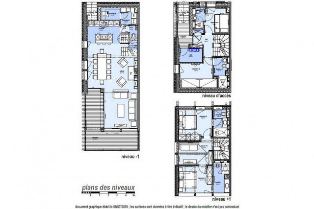
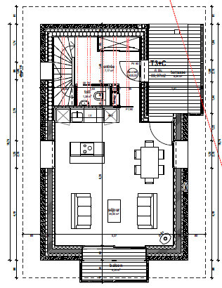
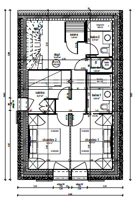
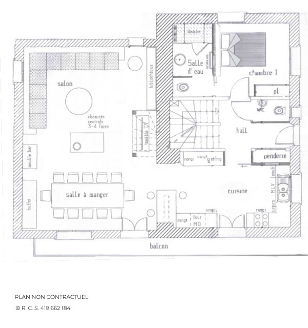
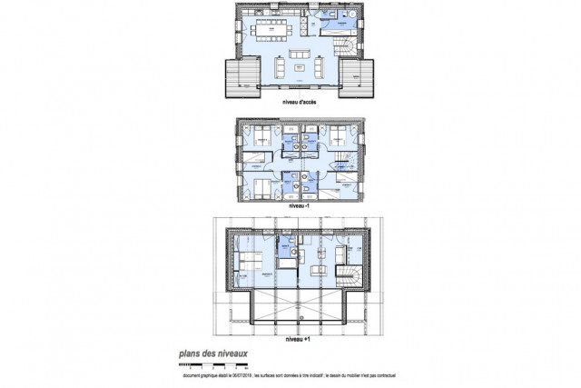
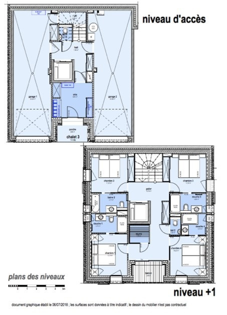
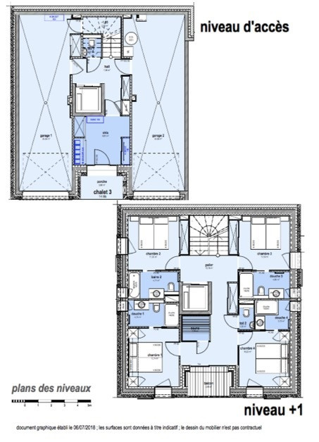
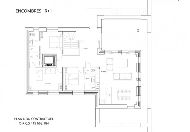
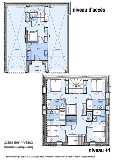
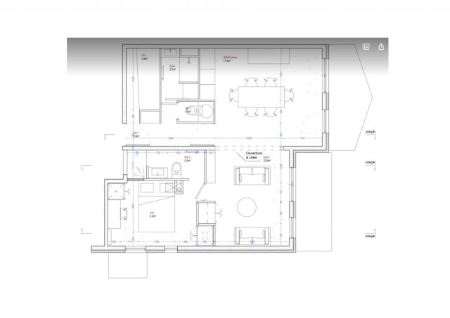
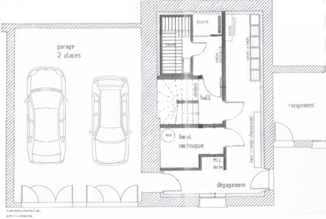
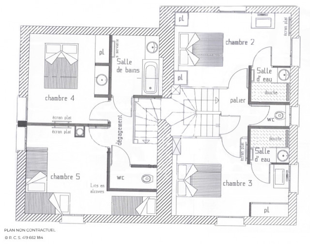
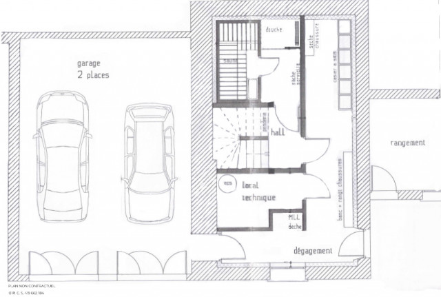
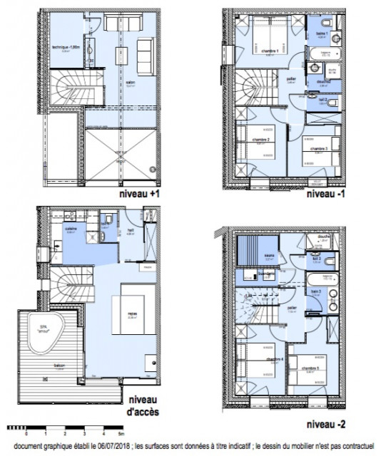
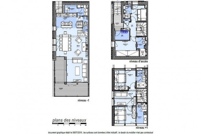
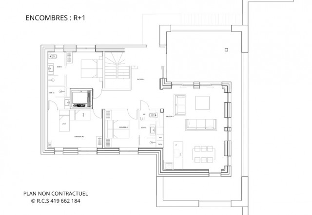
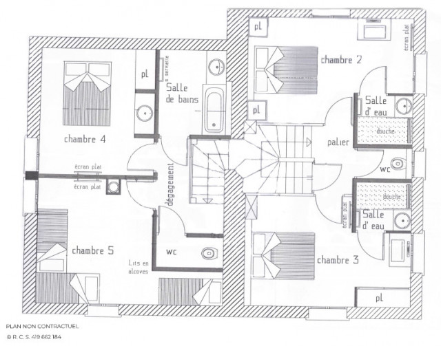
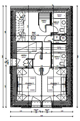
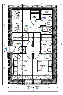
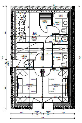
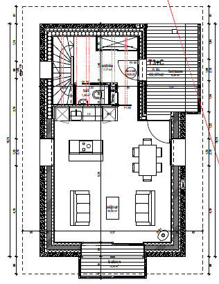
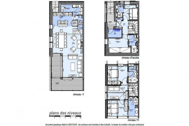
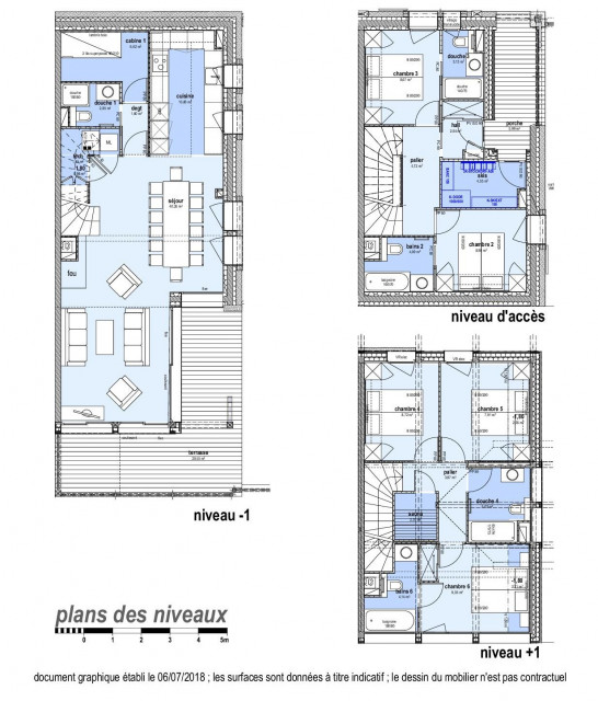
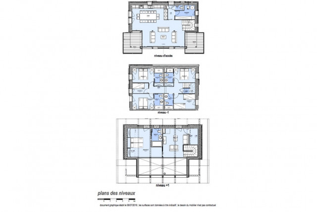
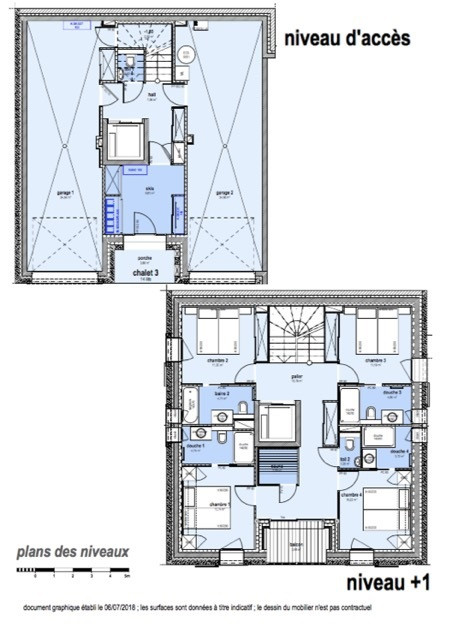
La Villette 10 personnes 200 m2
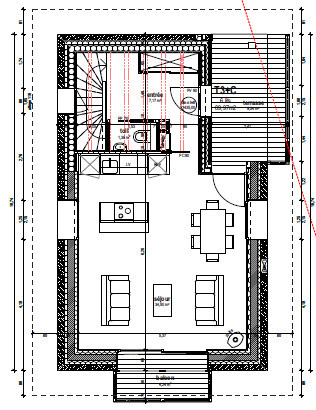
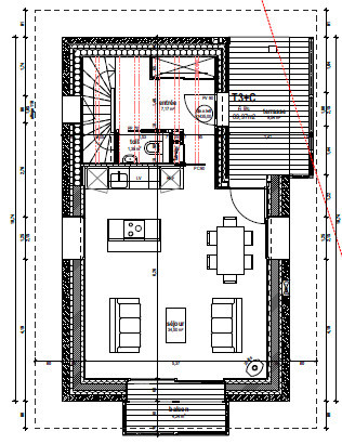
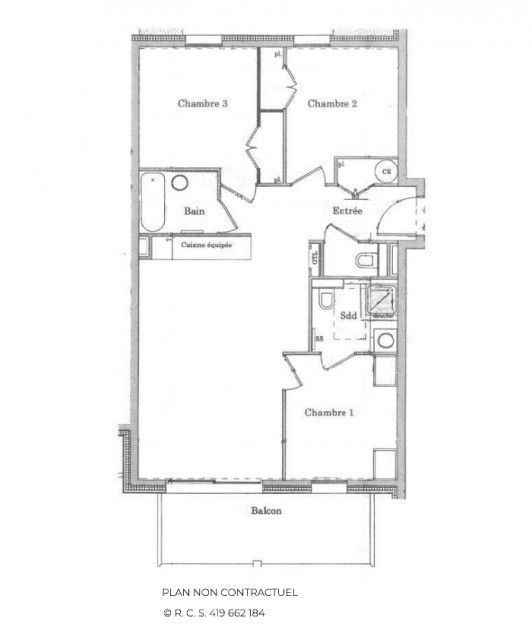
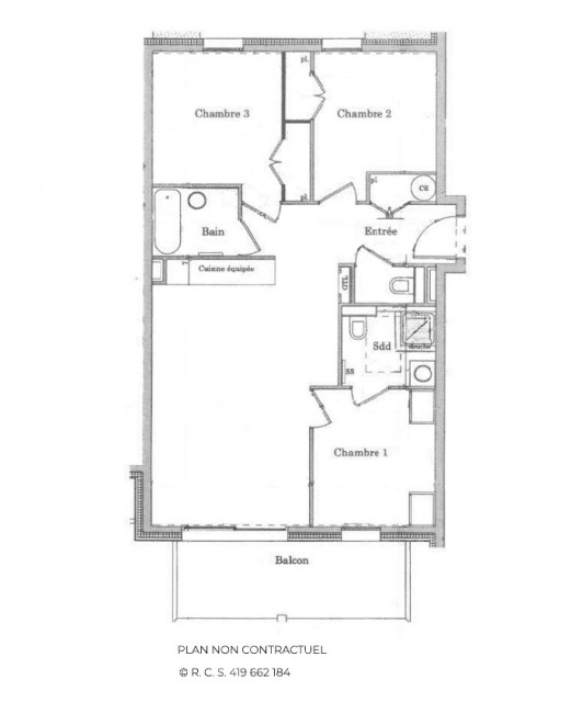
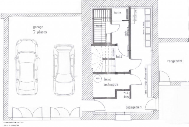
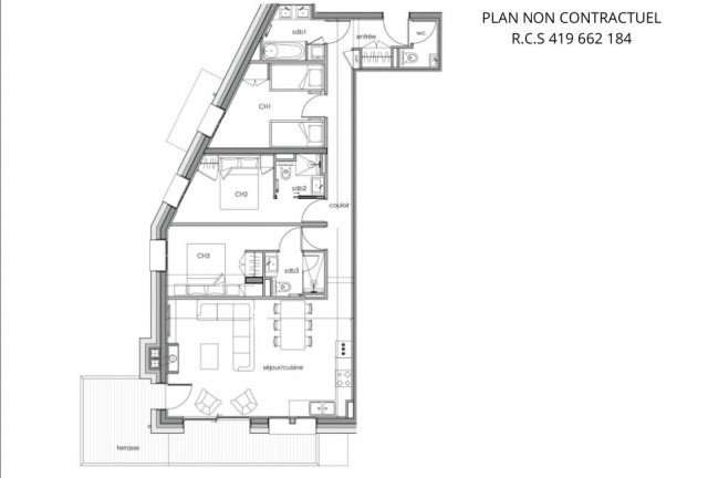
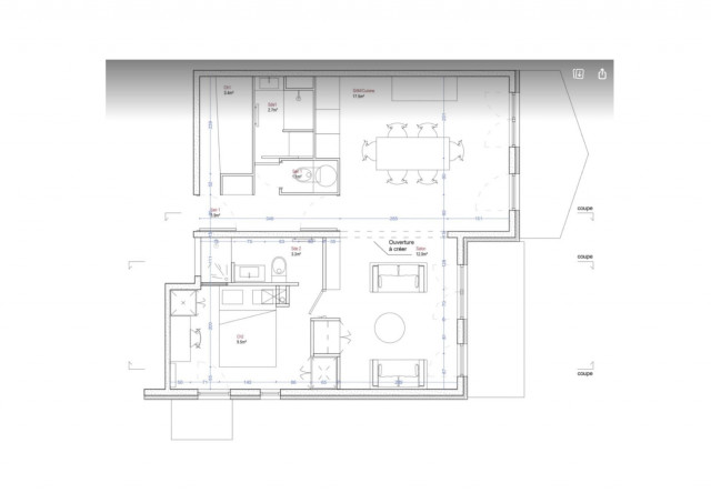
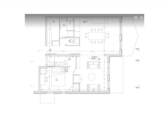
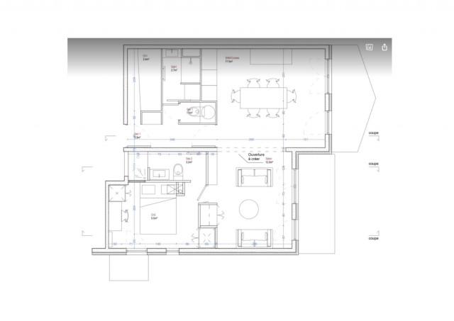
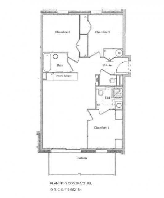
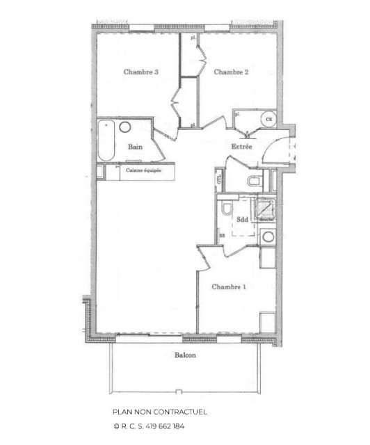
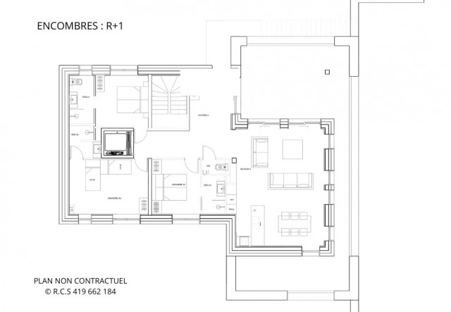
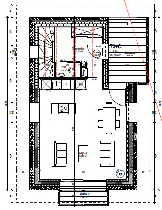
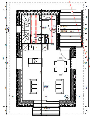
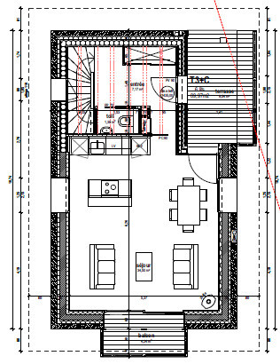
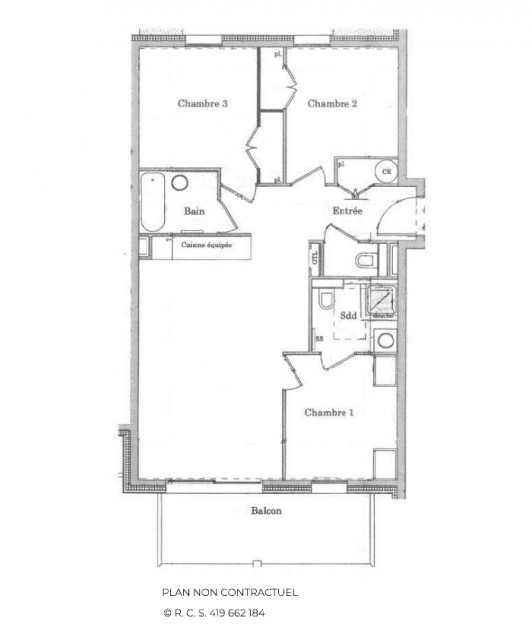
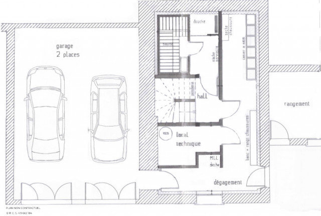
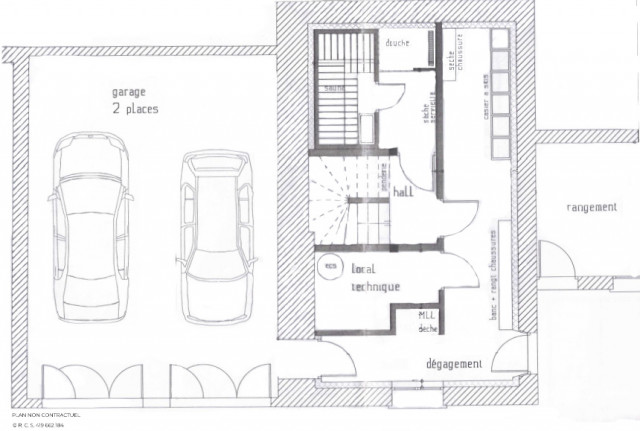
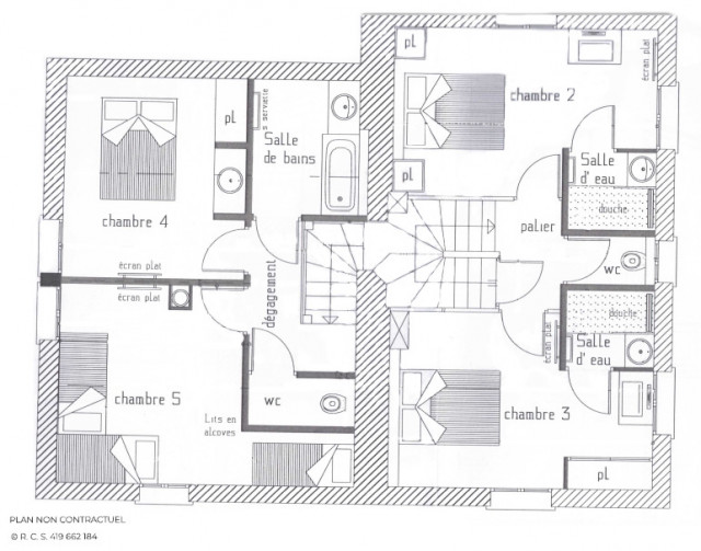
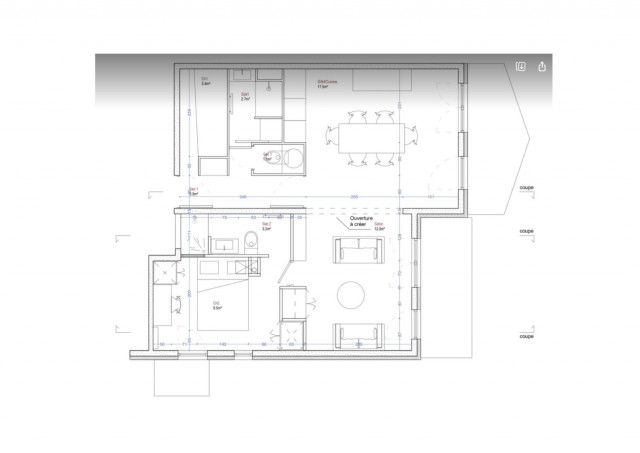
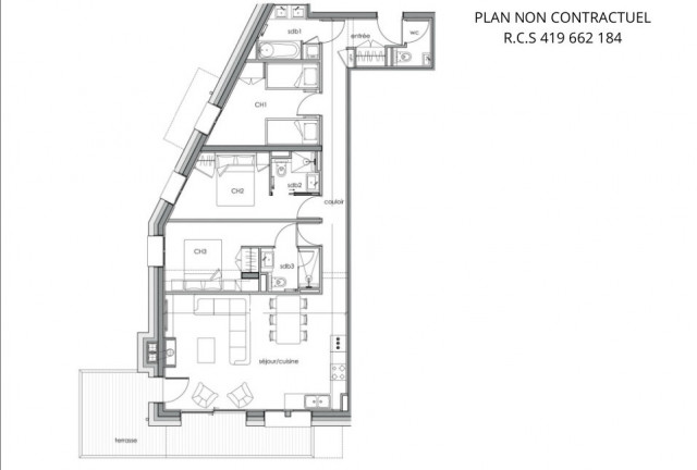
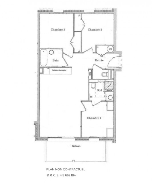
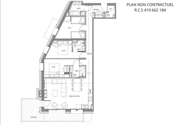
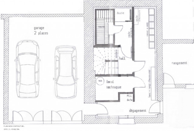
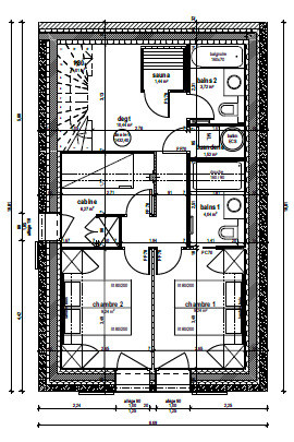
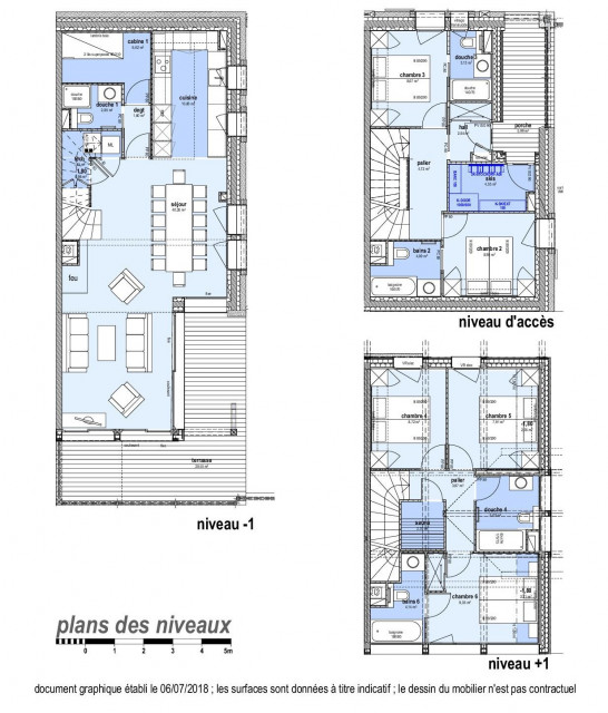
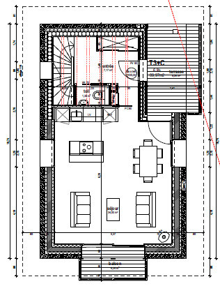
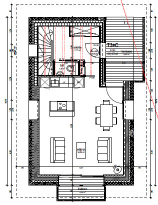
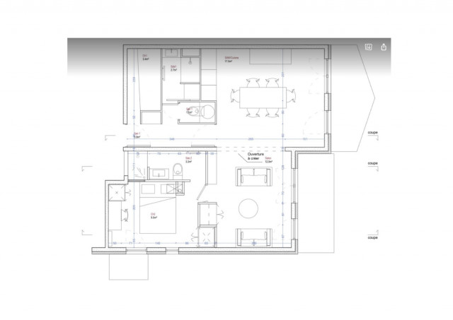
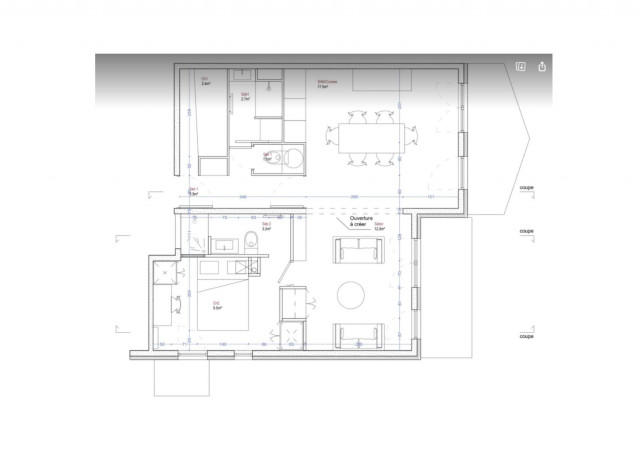
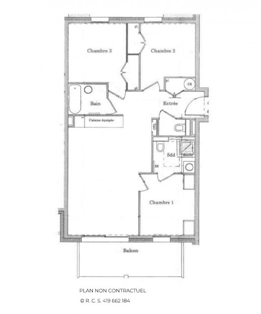
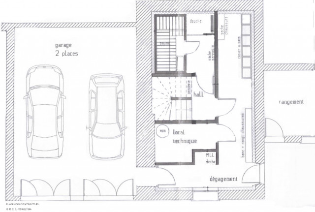
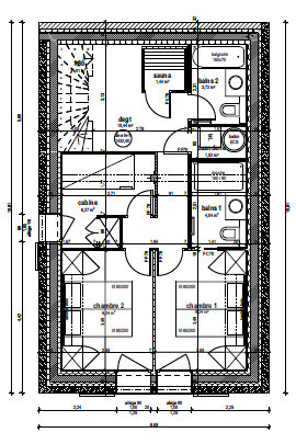
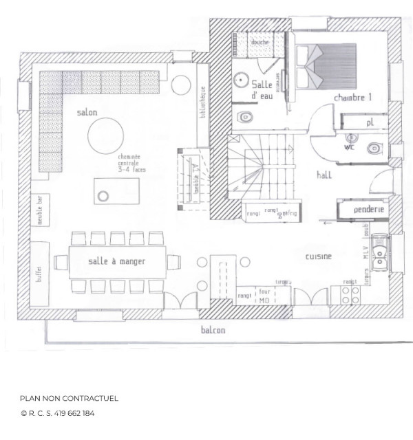
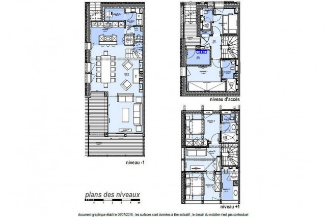
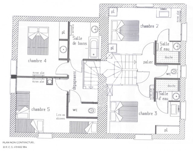
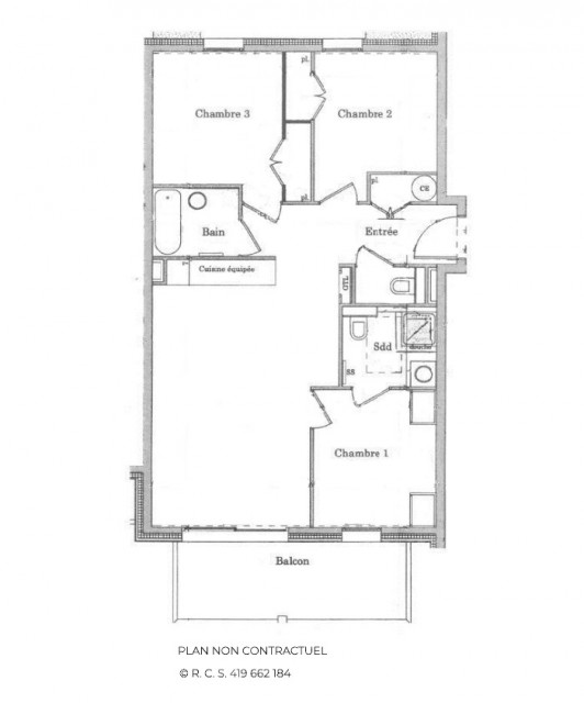
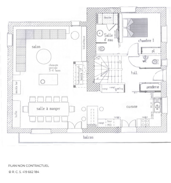
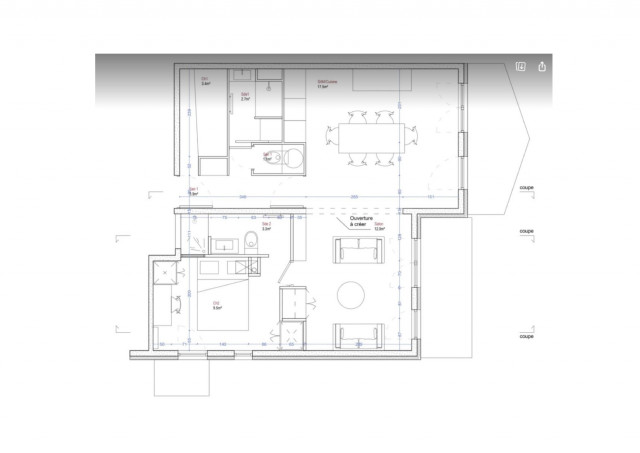
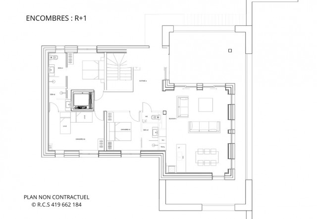
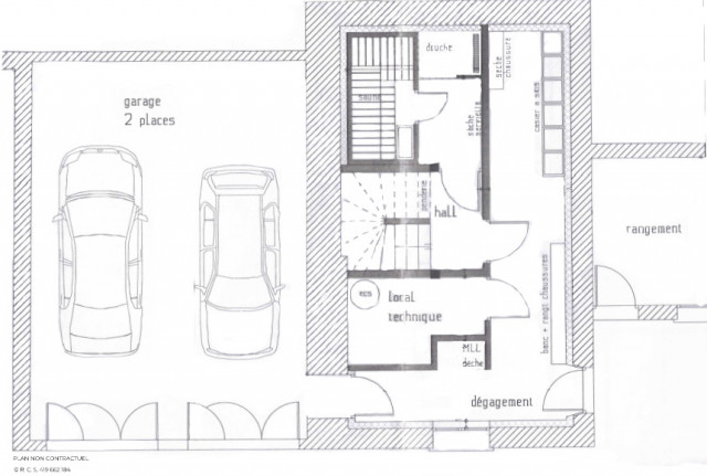
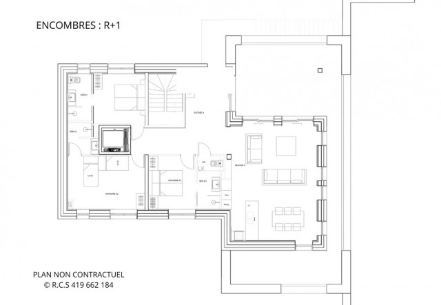
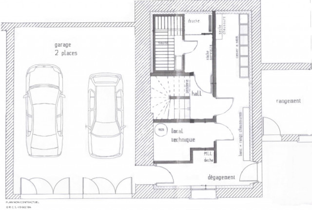
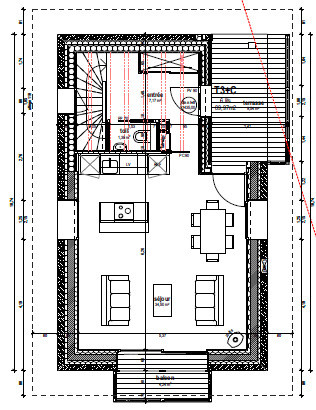
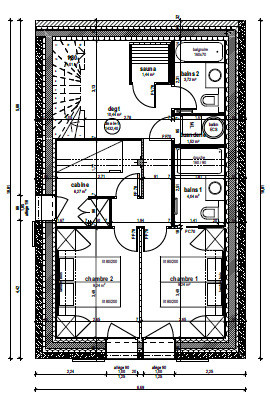
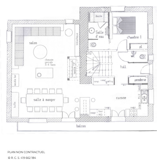
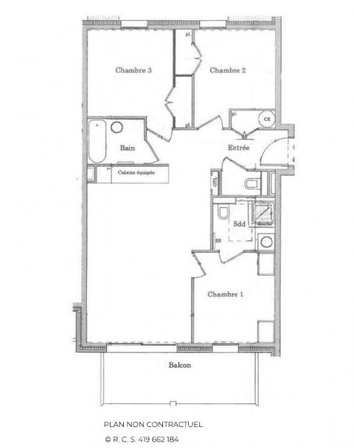
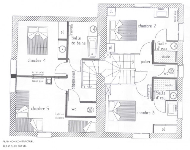
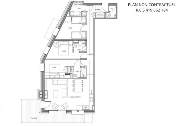
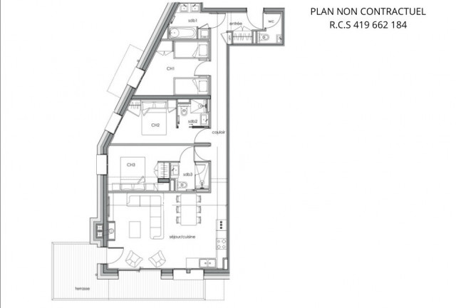
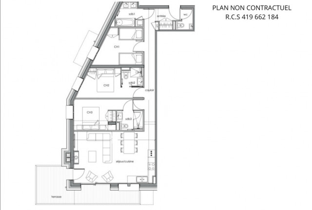
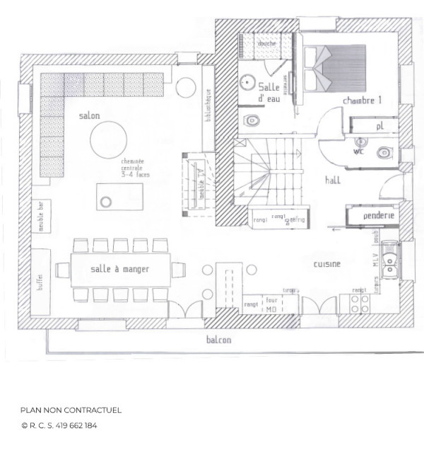
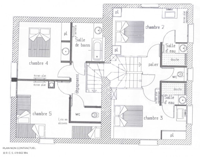
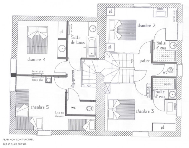
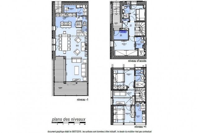
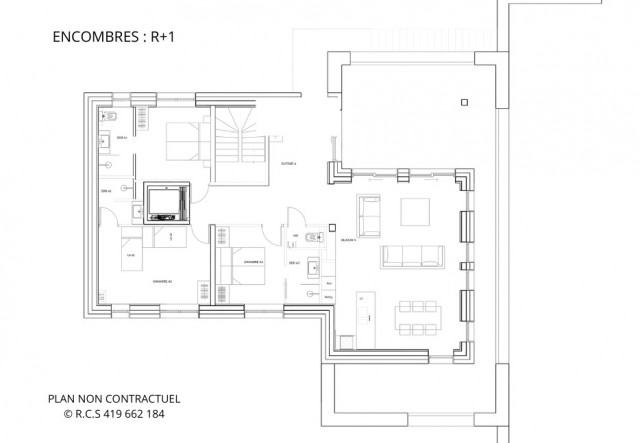
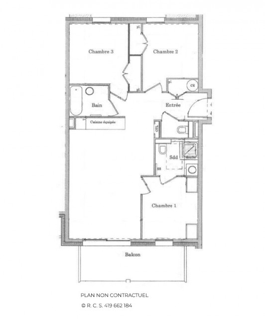
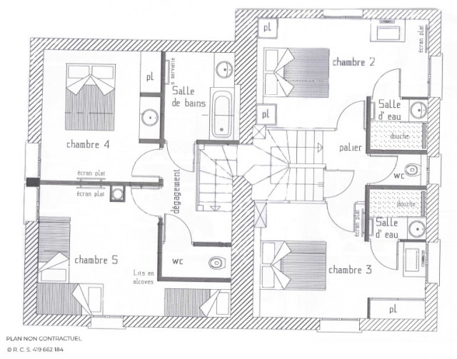
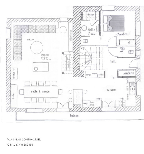
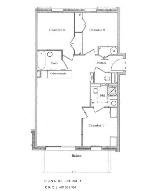
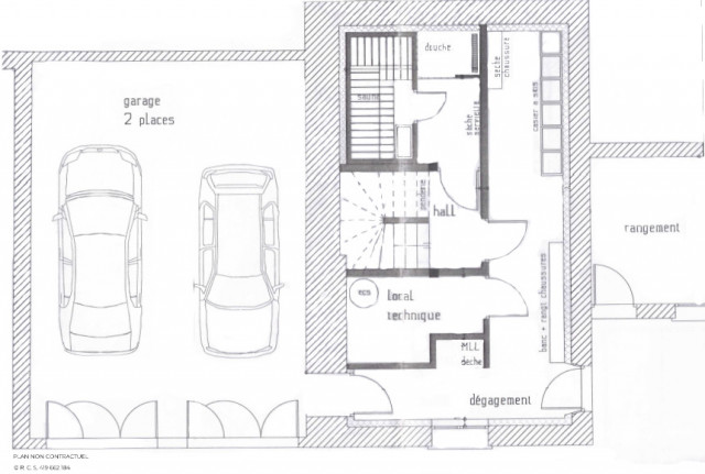
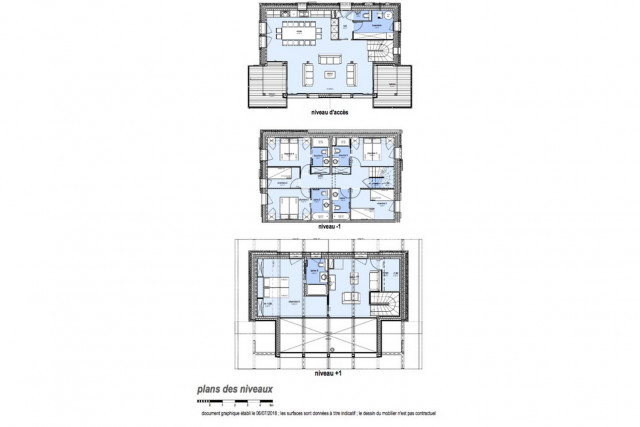
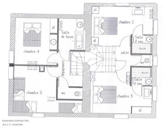
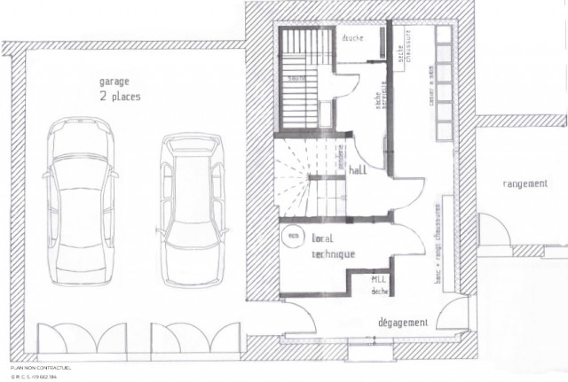
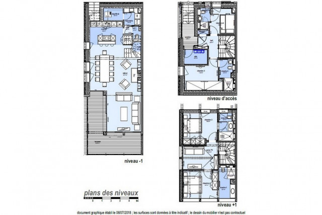
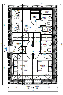
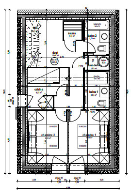
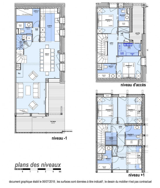
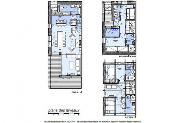
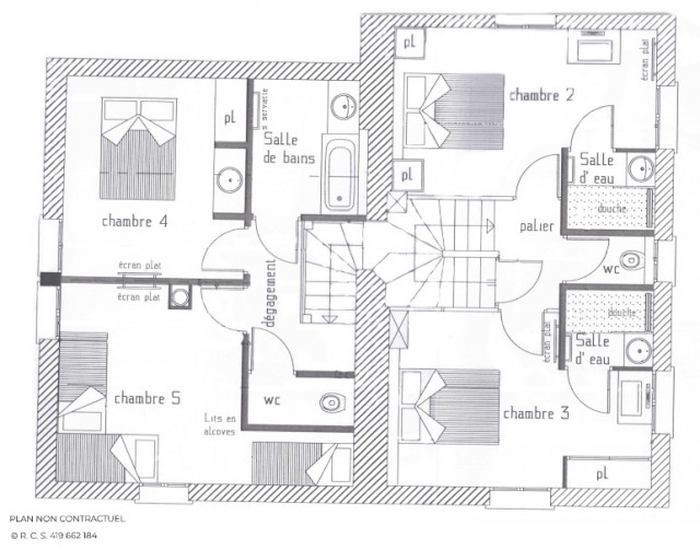
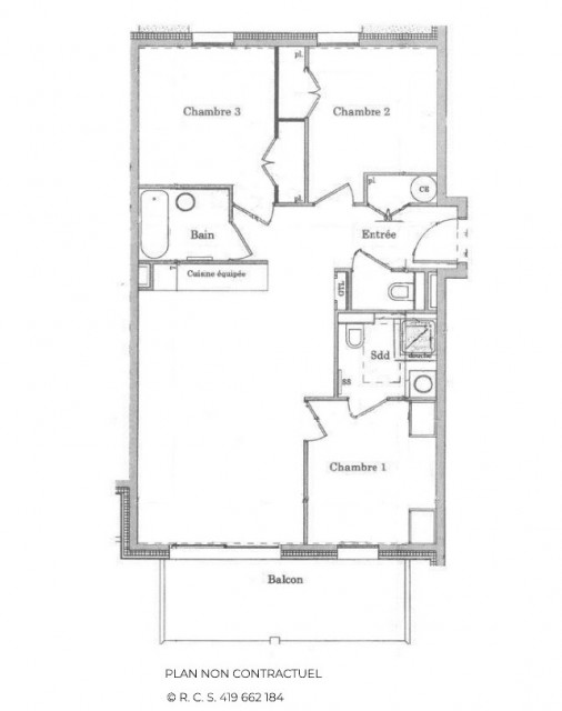
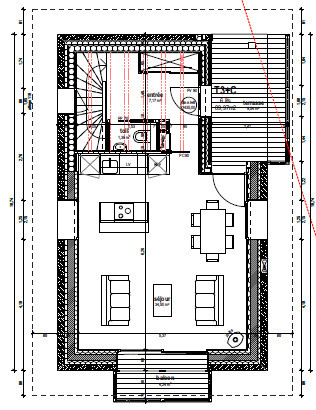
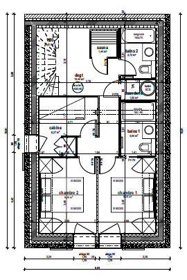
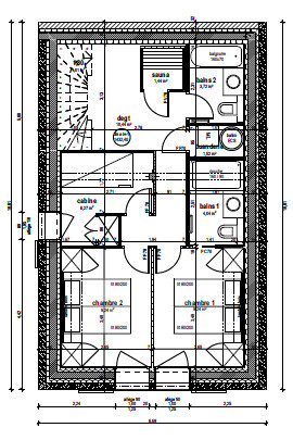
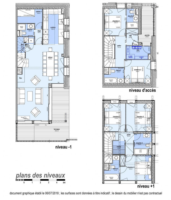
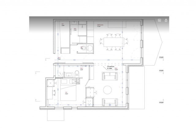
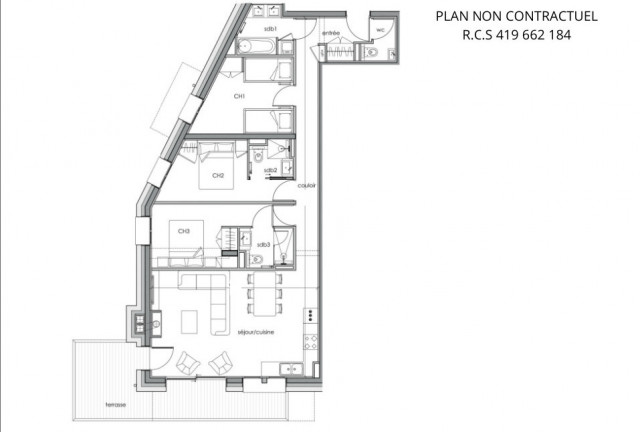
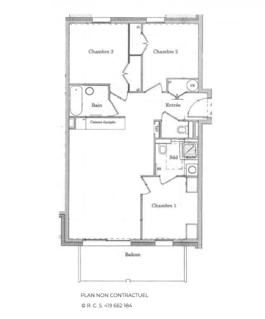
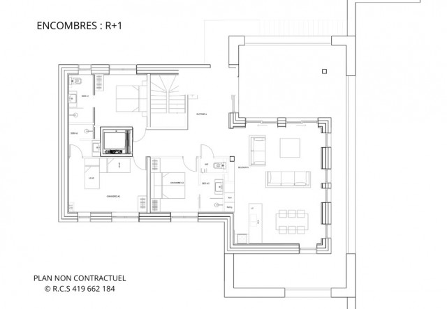
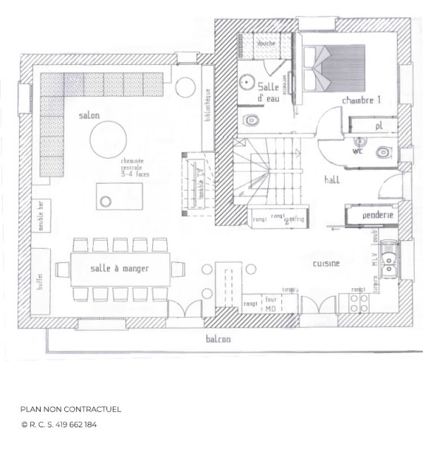
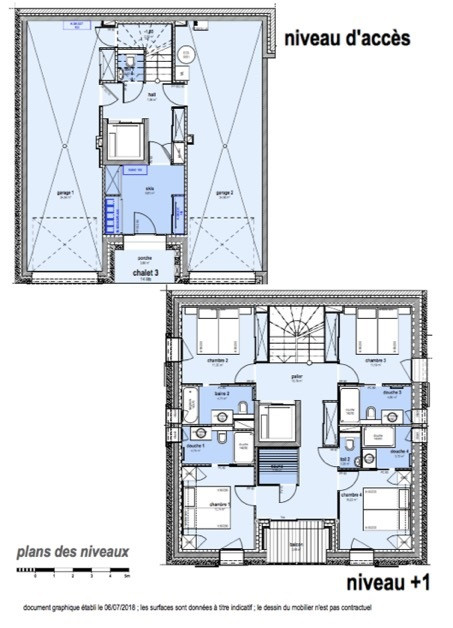
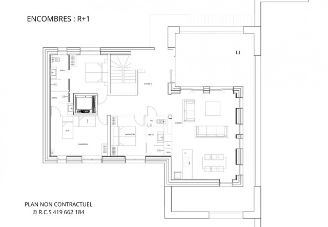
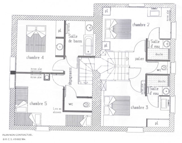
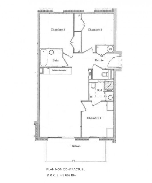
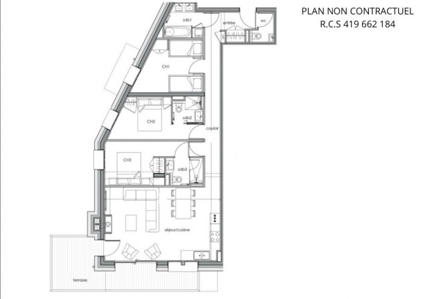
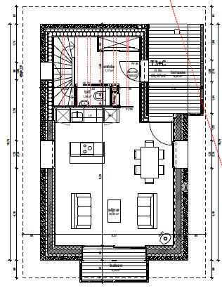
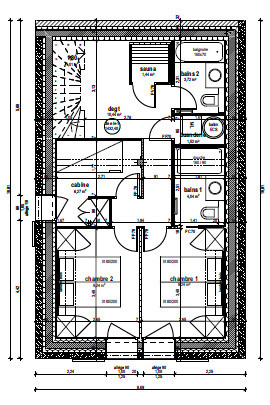
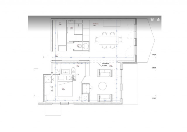
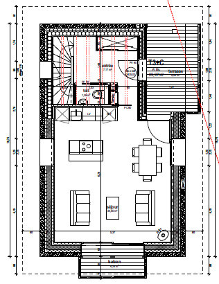
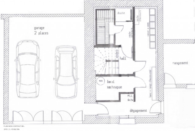
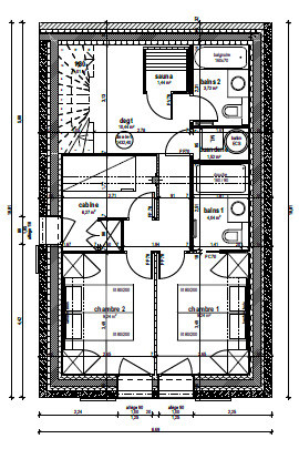
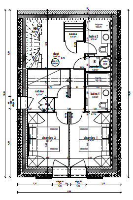
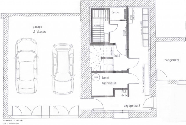
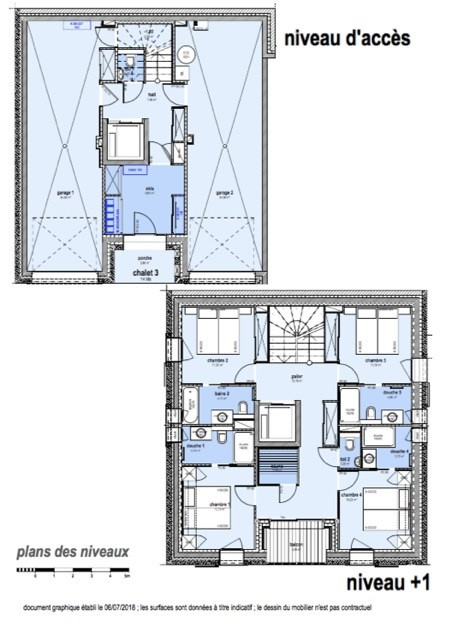
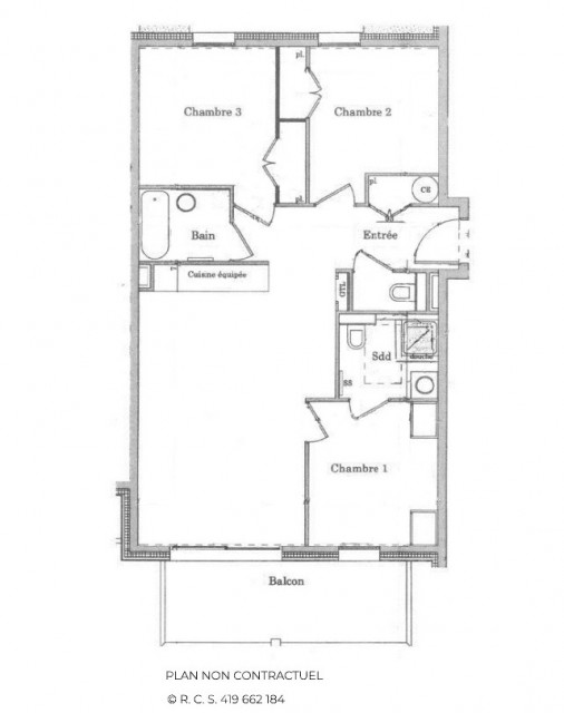
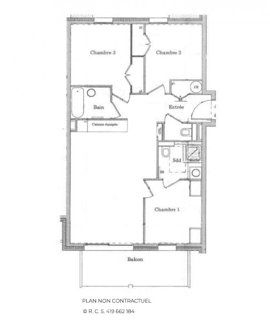
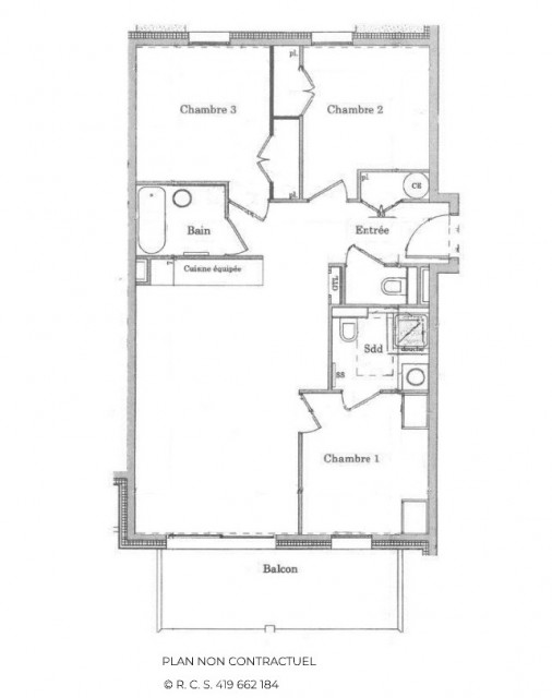
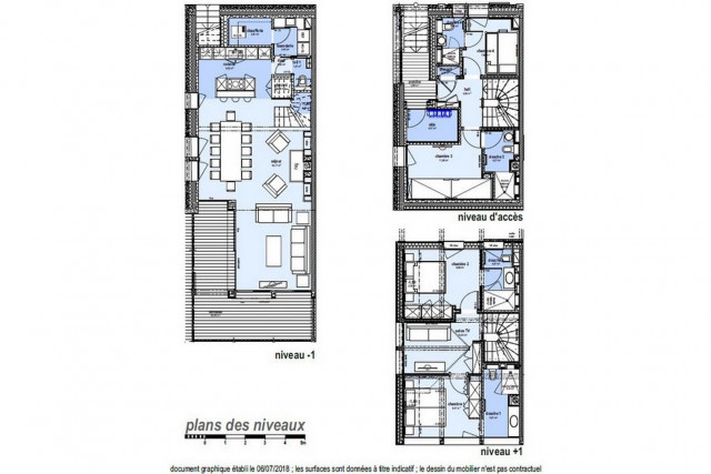
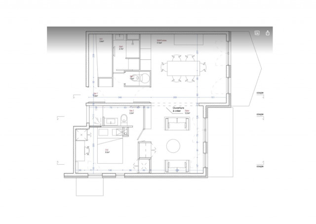
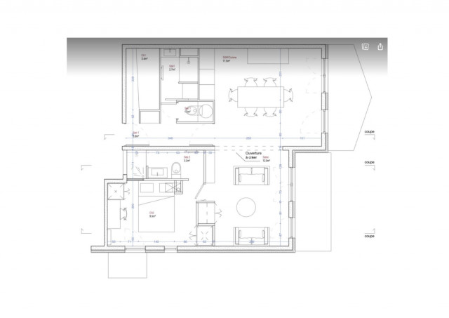
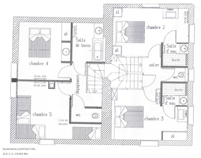
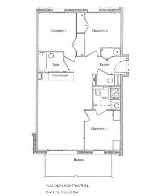
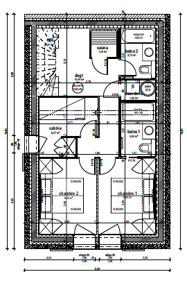
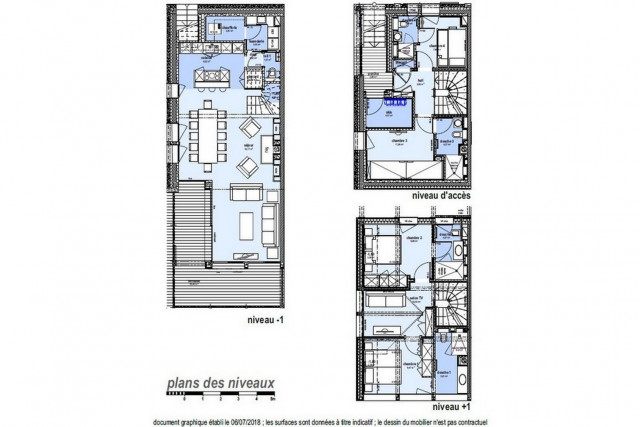
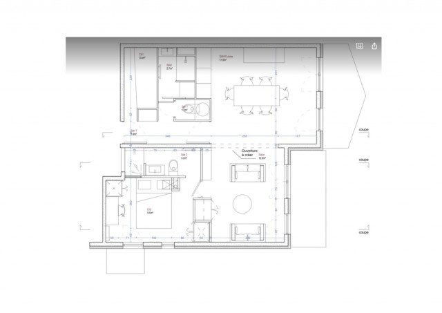
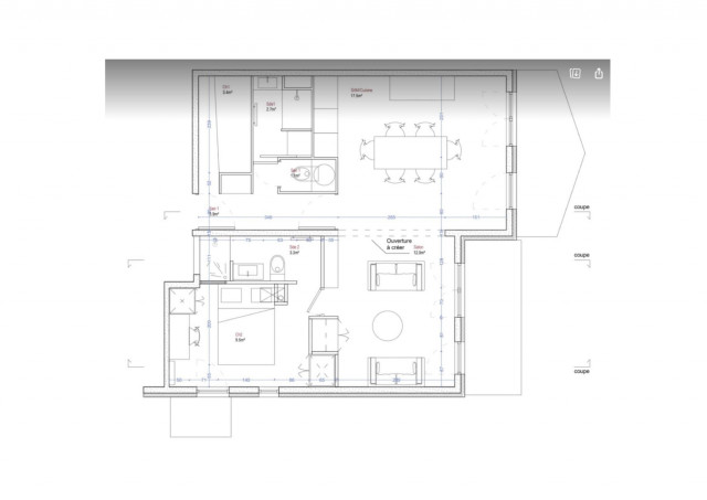
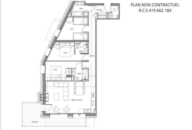
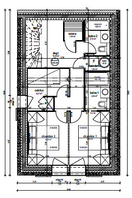
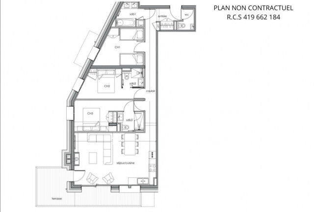
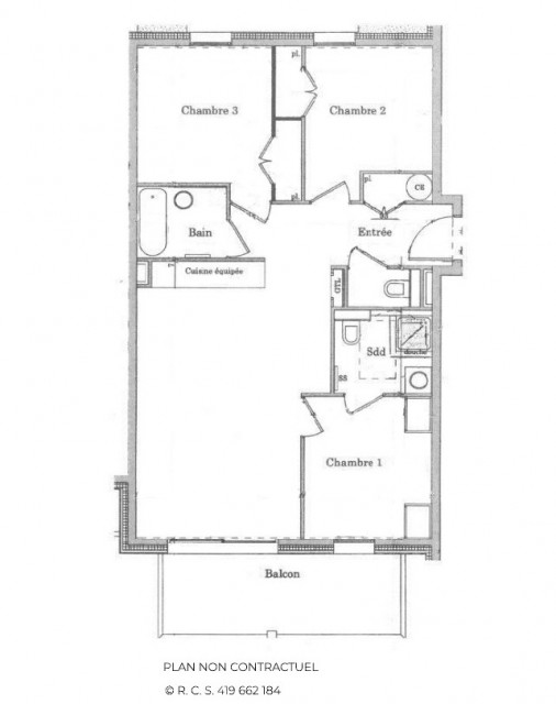
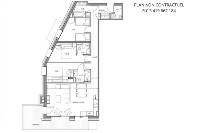
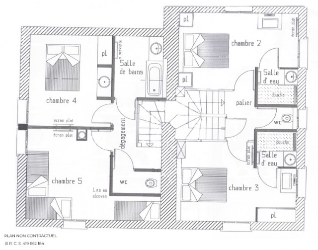
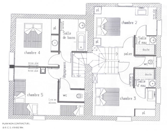
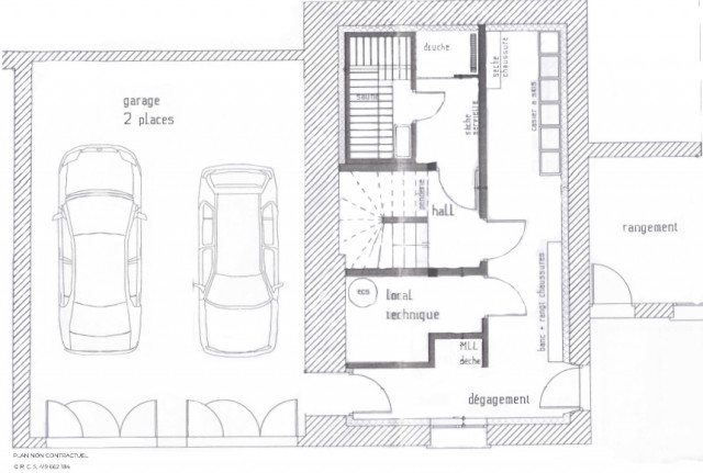
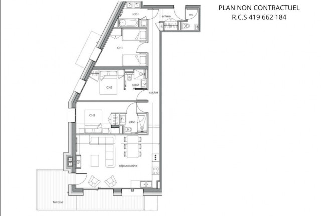
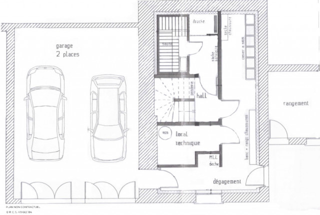
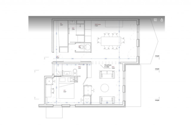
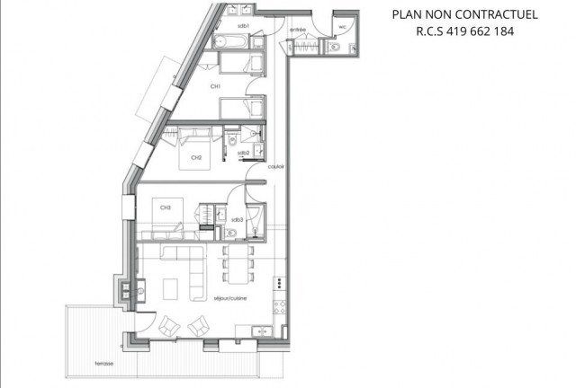
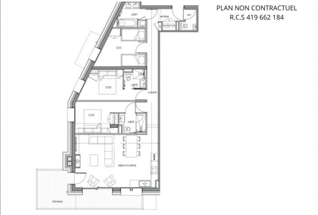
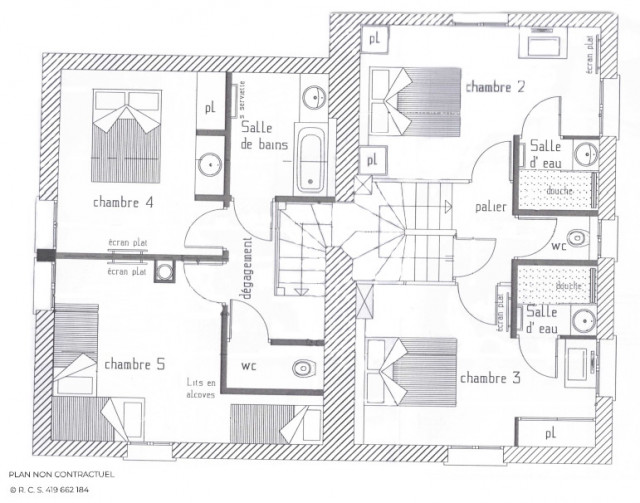
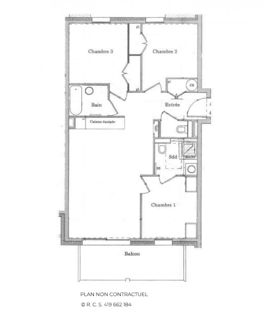
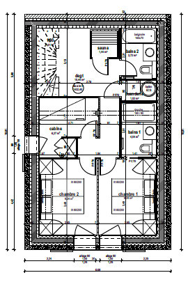
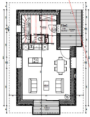
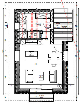
Centre Village Saint-Martin 10 personnes 133 m2





















































































































































































































































































































































































































































































