Appartements & Chalets - Page 4
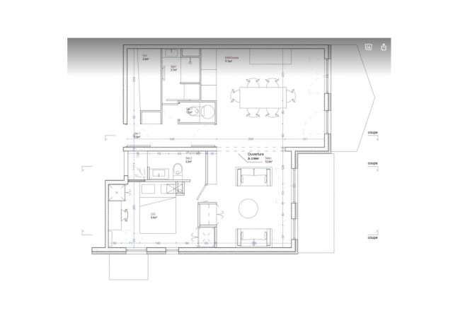
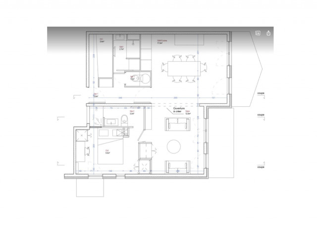
Les Grangeraies 4 personnes 66 m2
-
Nom de Résidence Les Menuires :
- Charmettes
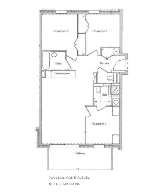
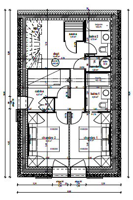
Les Places 6 personnes 85 m2
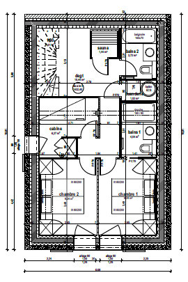
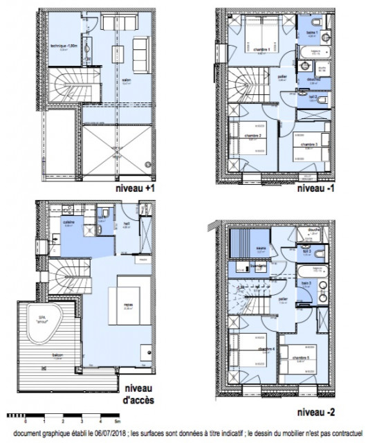
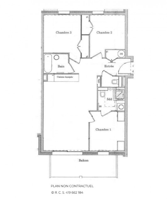
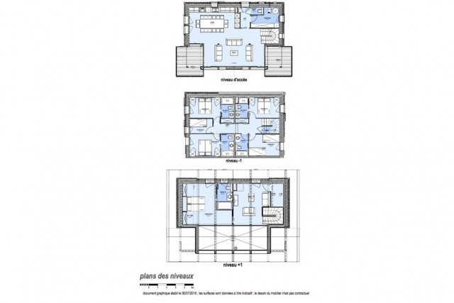
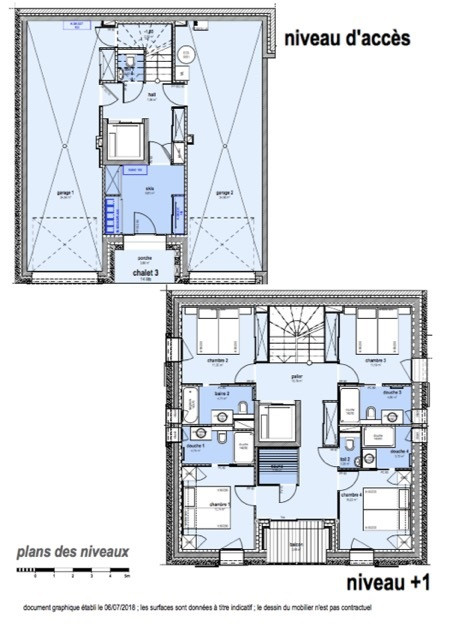
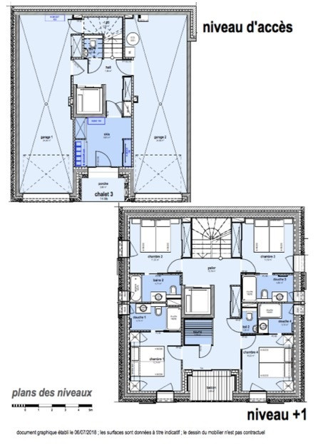
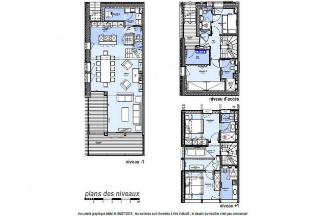
Centre Village Saint-Martin 10 personnes 133 m2
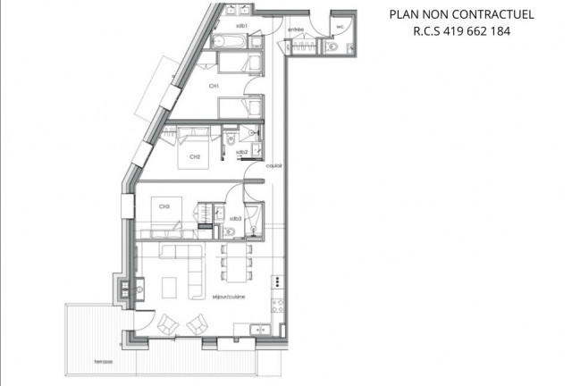
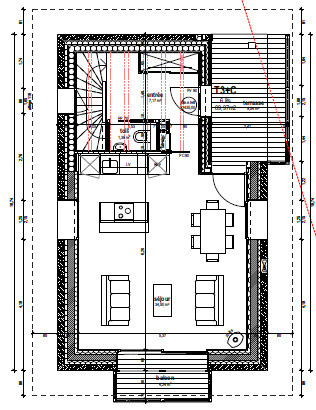
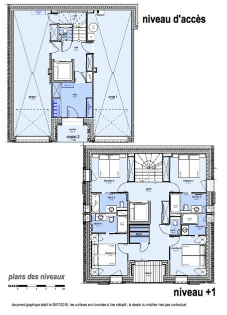
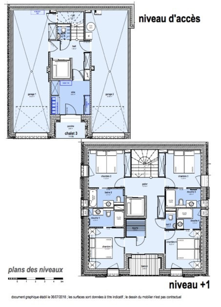
Chalet - LA FERME D'EDOUARD (FERMEDEDOUARD)
- Non classé


































































































































































































































































































































































































































































































