Appartements & Chalets
Nous vous proposons une large gamme d'hébergements tout confort dans le village de Saint-Martin de Belleville, à réserver en ligne pour votre prochain séjour dans les 3 Vallées.
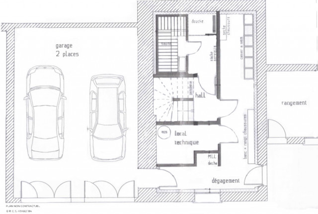
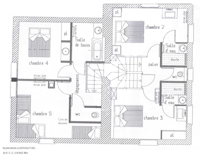
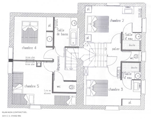
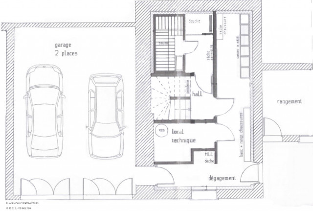
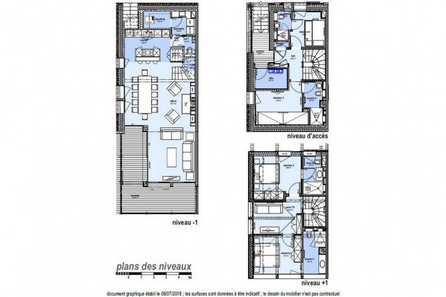
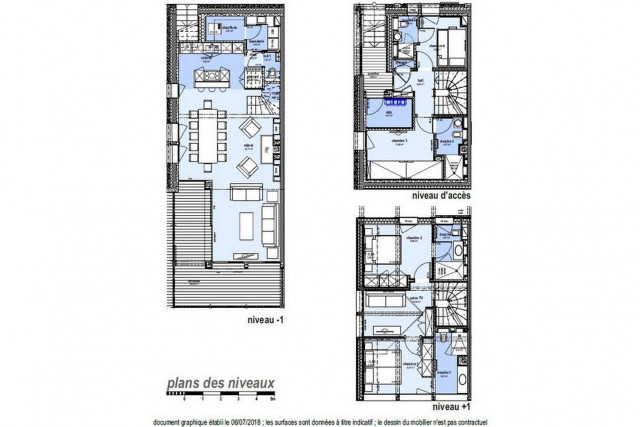
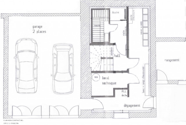
Les Places 280,00 m2
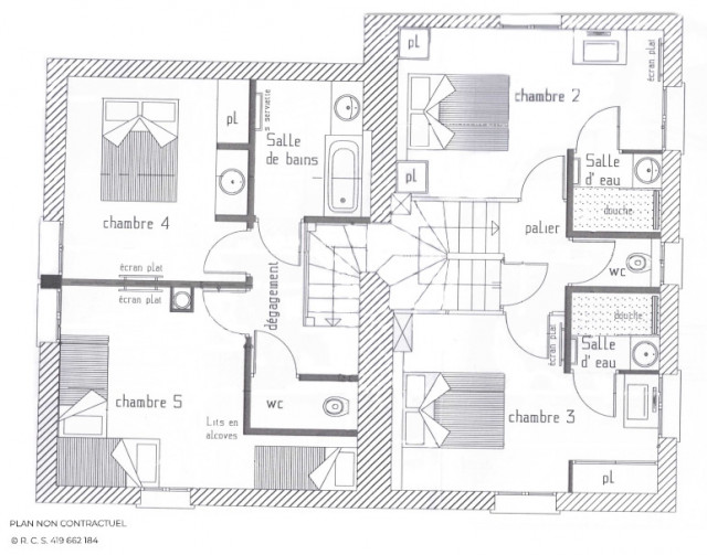
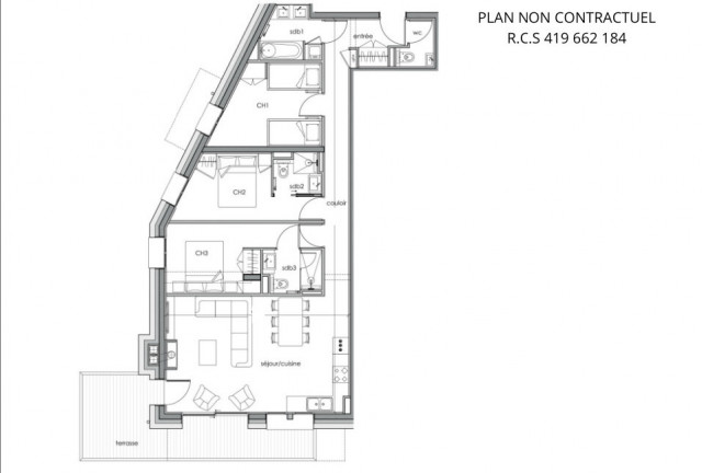
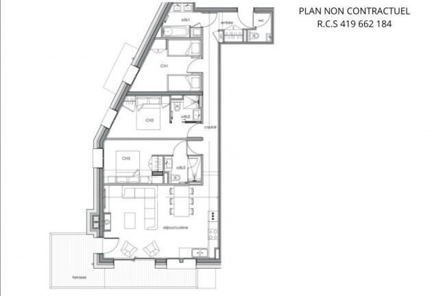
La Villette 10 personnes 200 m2
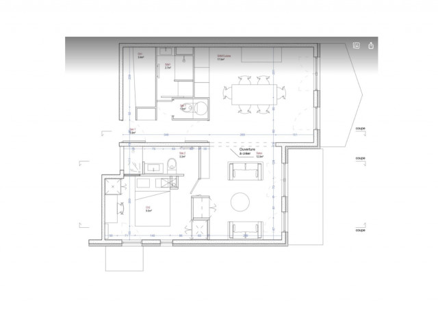
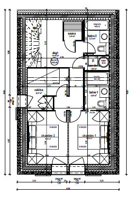
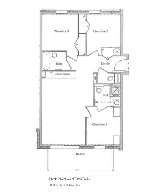
Les Places 6 personnes 85 m2
































































































































































































































































































































































































































































































































