Location Les Grangeraies
Les Grangeraies 6 personnes 32 m2
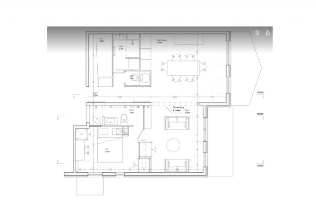
Les Grangeraies 8 personnes 120 m2
-
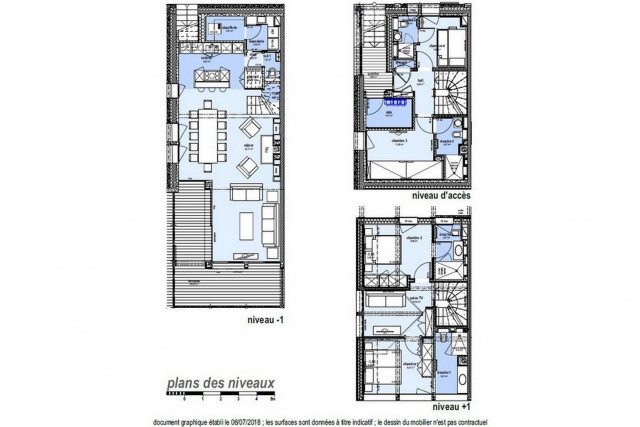
Nom de Résidence Les Menuires :
- Charmettes
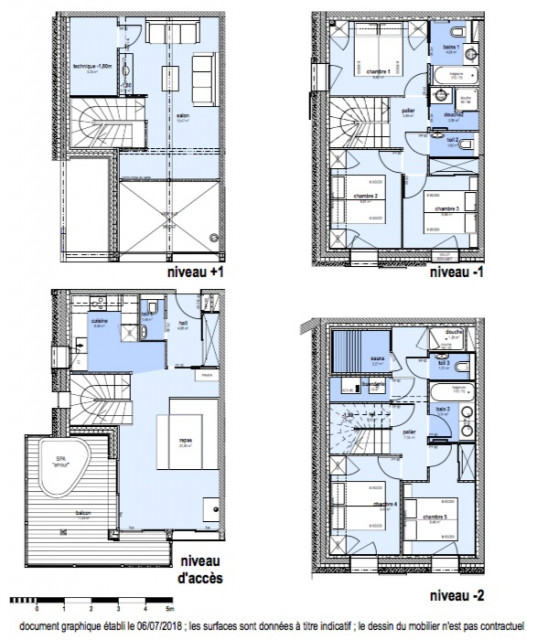
Les Grangeraies 4 personnes 66 m2
-
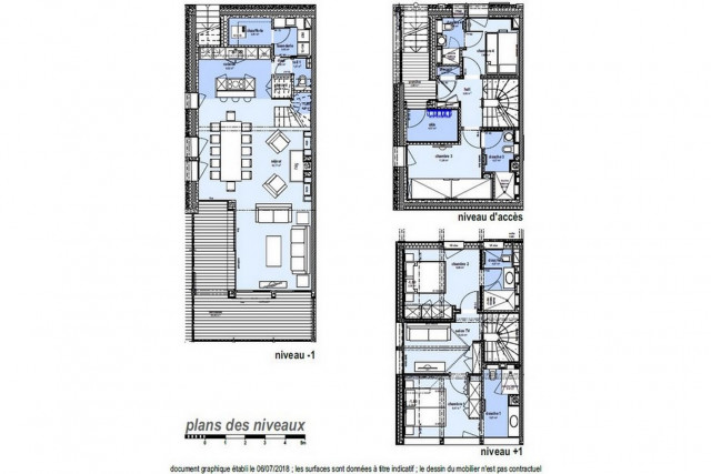
Nom de Résidence Les Menuires :
- Charmettes




























































































































































































































































































































































































































































