Appartements & Chalets
Nous vous proposons une large gamme d'hébergements tout confort dans le village de Saint-Martin de Belleville, à réserver en ligne pour votre prochain séjour dans les 3 Vallées.
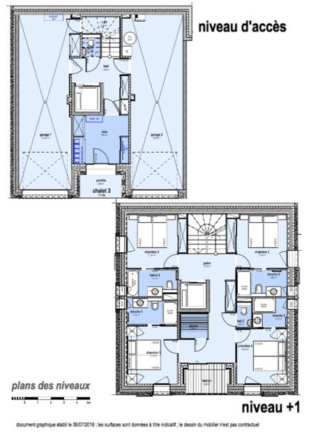
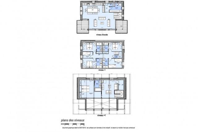
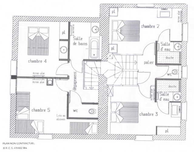
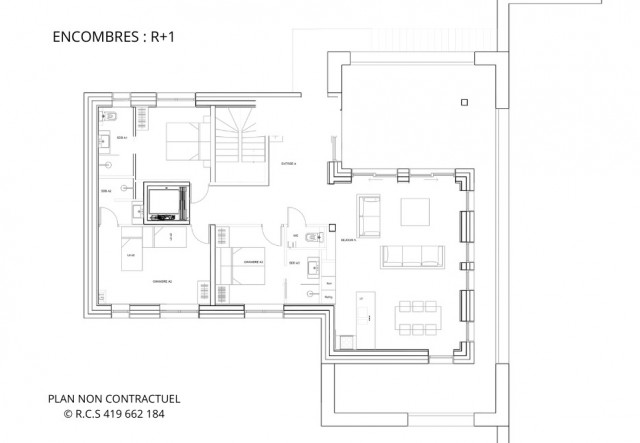
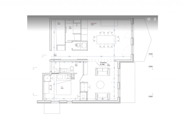
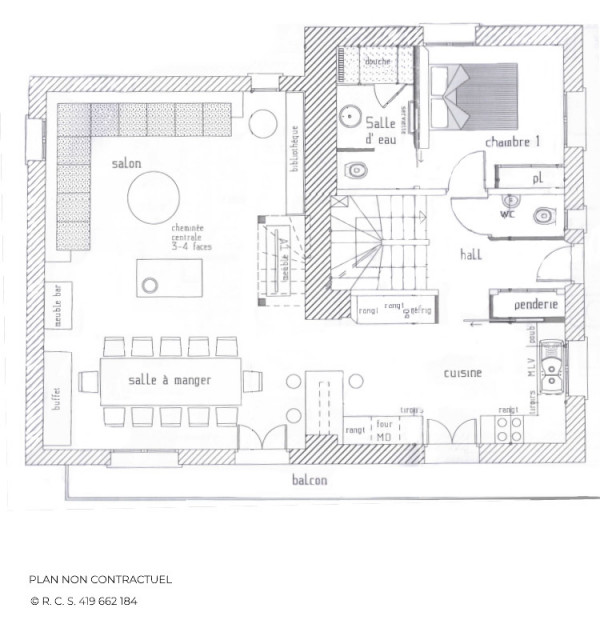
Les Places 8 personnes 125 m2
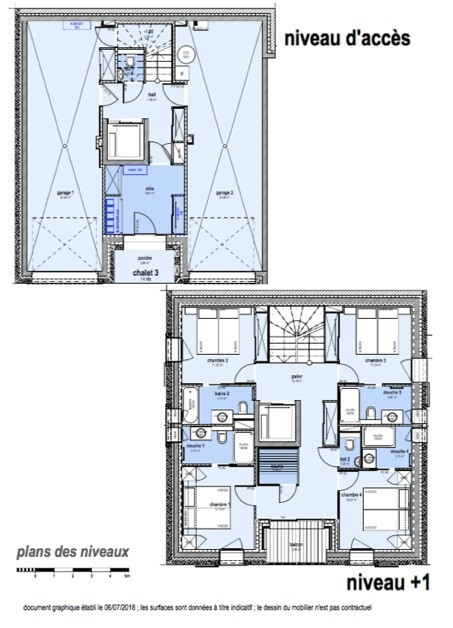
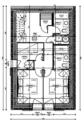
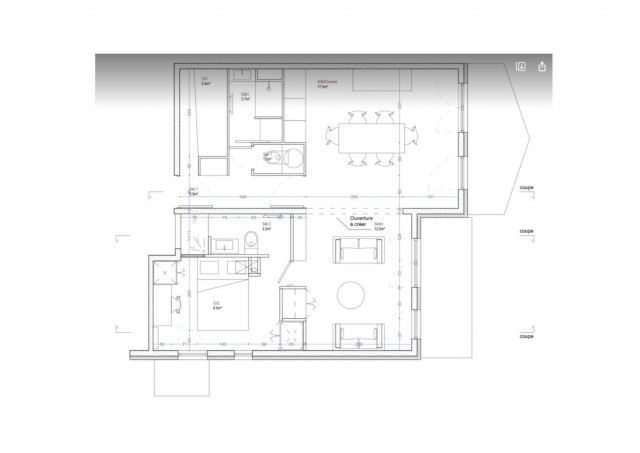
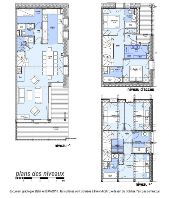
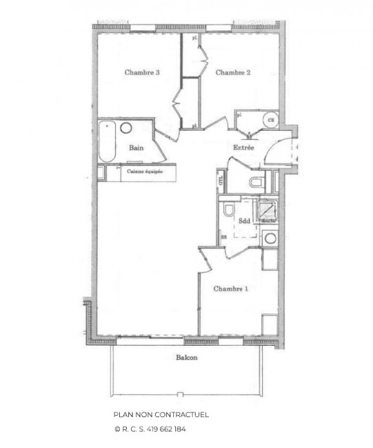
Les Places 6 personnes 85 m2
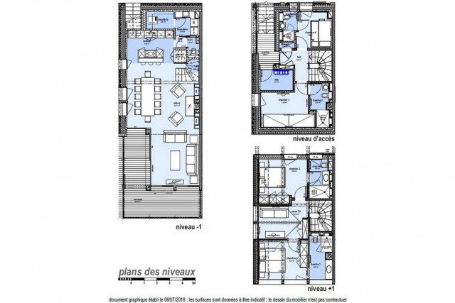
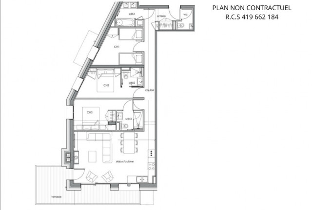
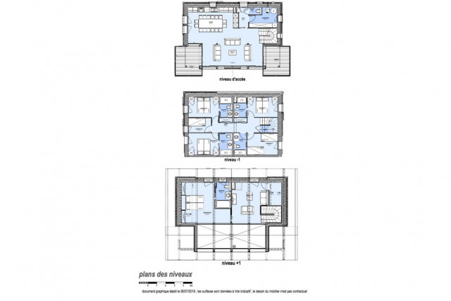
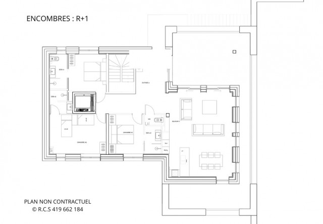
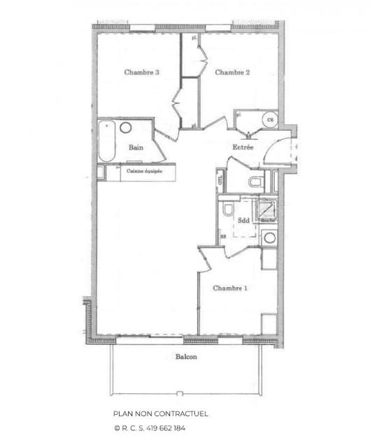
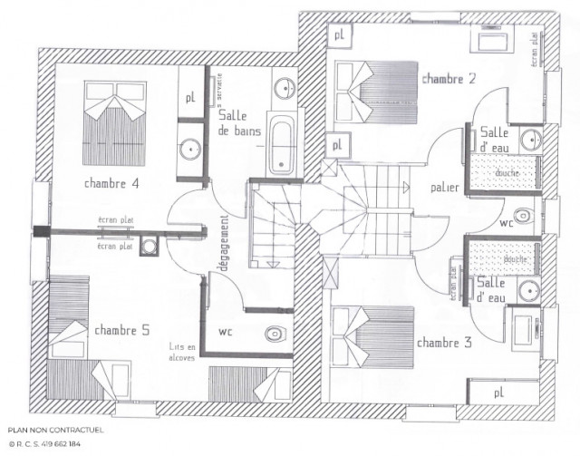
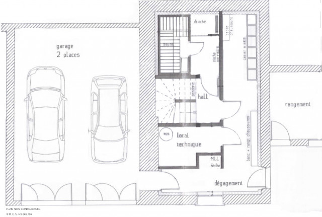
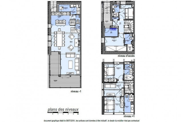
Centre Village Saint-Martin 10 personnes 133 m2

















































































































































































































































































































































































































































































































