Appartements & Chalets
Nous vous proposons une large gamme d'hébergements tout confort dans le village de Saint-Martin de Belleville, à réserver en ligne pour votre prochain séjour dans les 3 Vallées.
Les Grangeraies 6 personnes 32 m2
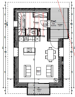
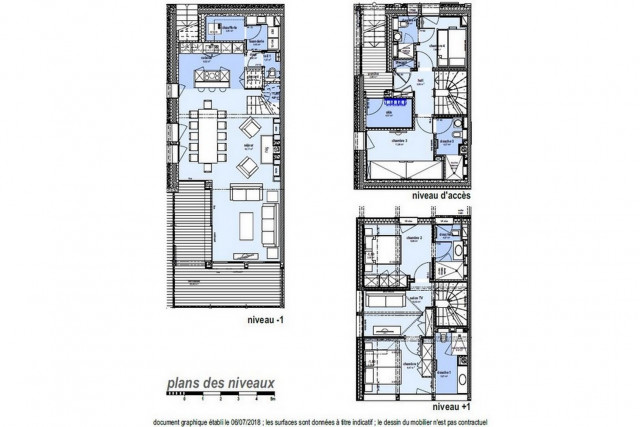
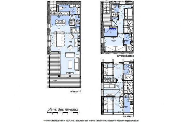
Les Places 8 personnes 125 m2
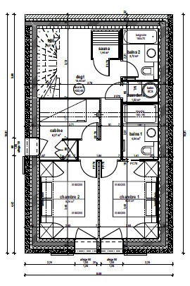
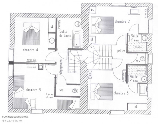
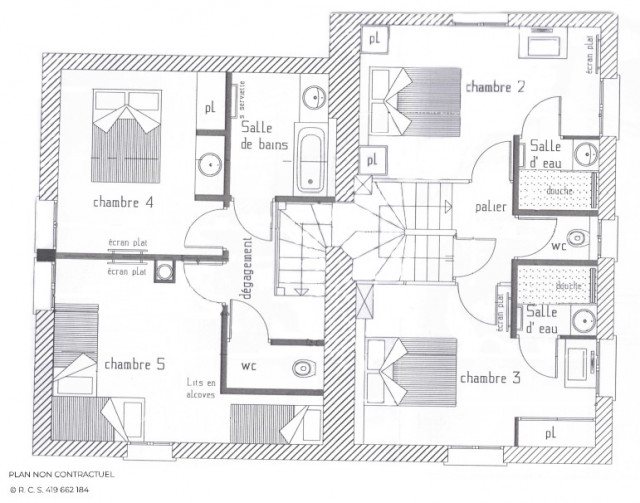
Les Grangeraies 8 personnes 120 m2
-
Nom de Résidence Les Menuires :
- Charmettes
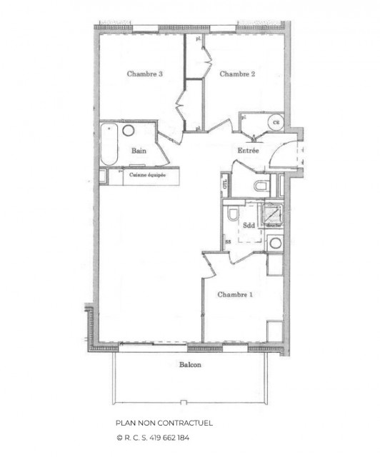
Les Places 8 personnes 98 m2
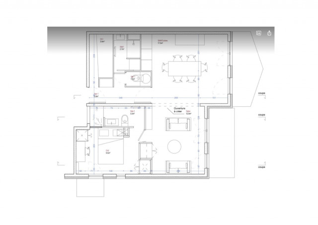
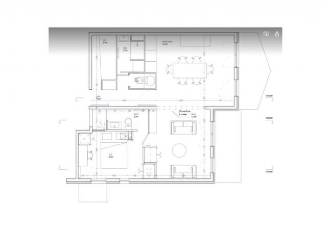
Les Places 6 personnes 70 m2
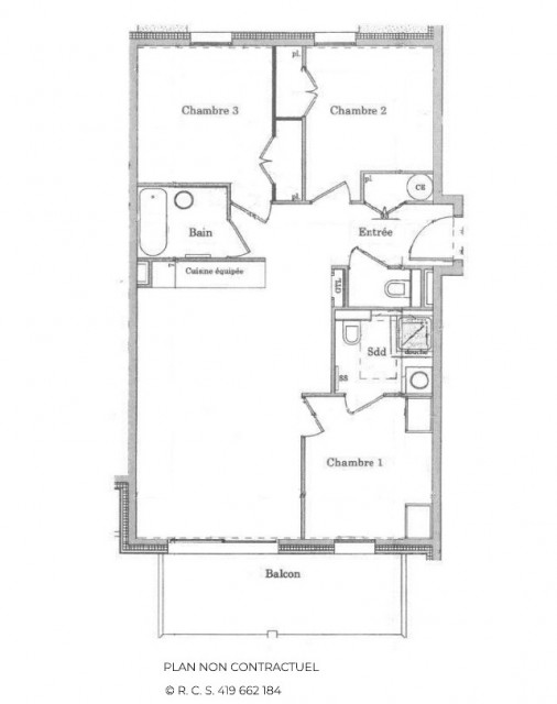
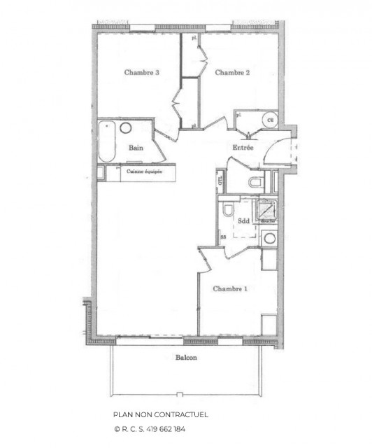
Les Places 6 personnes 85 m2









































































































































































































































































































































































































































































































































































