Appartements & Chalets
Nous vous proposons une large gamme d'hébergements tout confort dans le village de Saint-Martin de Belleville, à réserver en ligne pour votre prochain séjour dans les 3 Vallées.
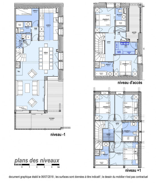
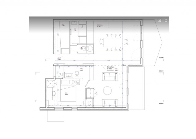
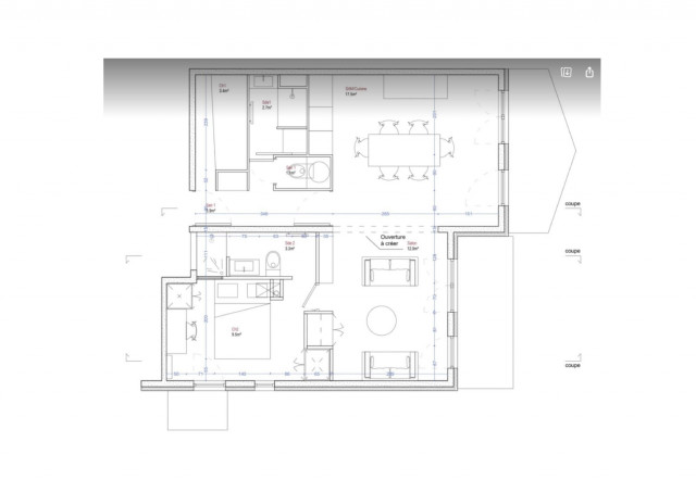
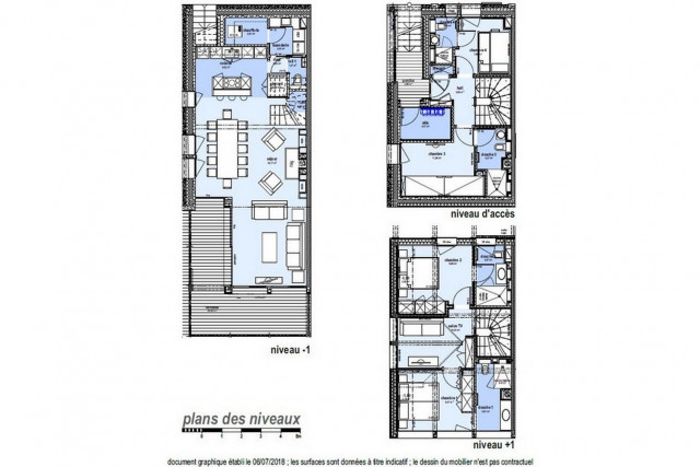
Centre Village Saint-Martin 10 personnes 145 m2
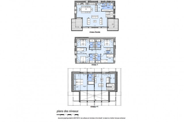
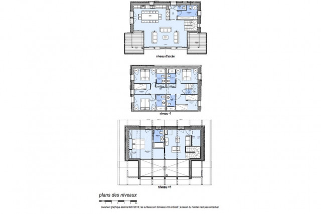
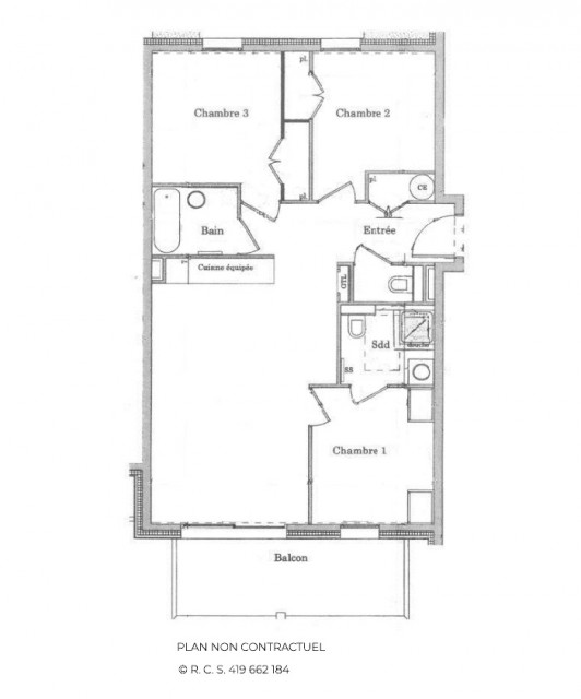
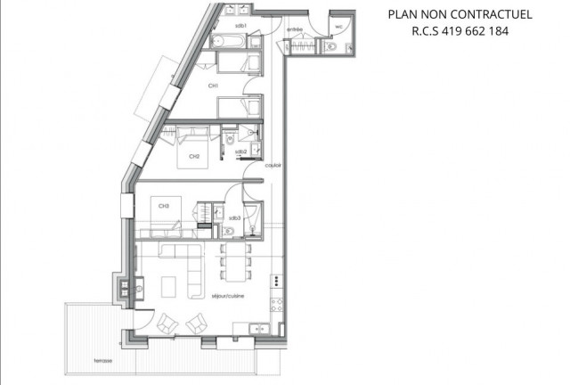
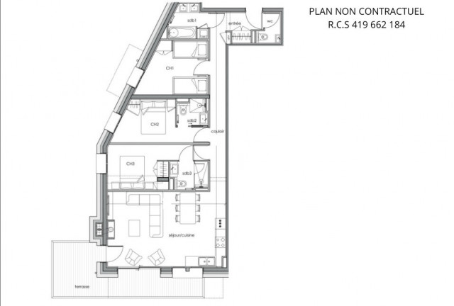
Les Places 8 personnes 98 m2
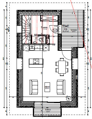
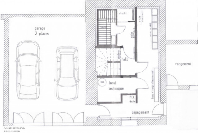
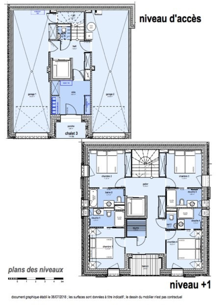
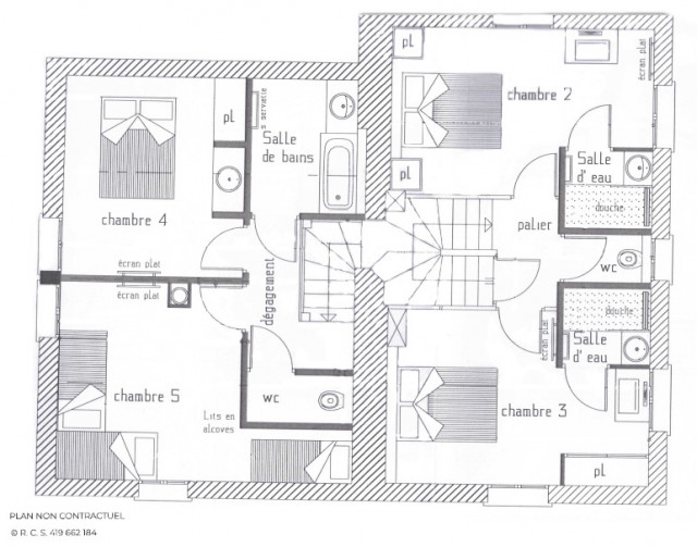
Chalet - LA FERME D'EDOUARD (FERMEDEDOUARD)
- Non classé
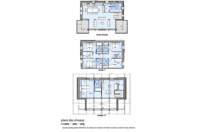
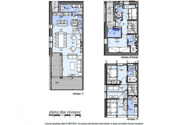
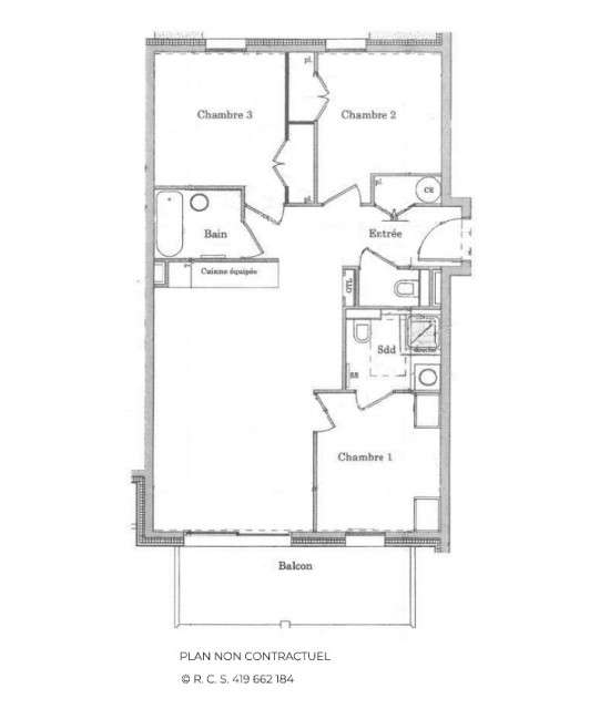
Les Grangeraies 6 personnes 40 m2
Les Grangeraies 6 personnes 32 m2






















































































































































































































































































































































































































































































